306A EGLINTON AVENUE W, Toronto (Yonge-Eglinton), Ontario, M4R1B2
MLS: C12740598 | Retail
$54.50 / monthly
























Property Description
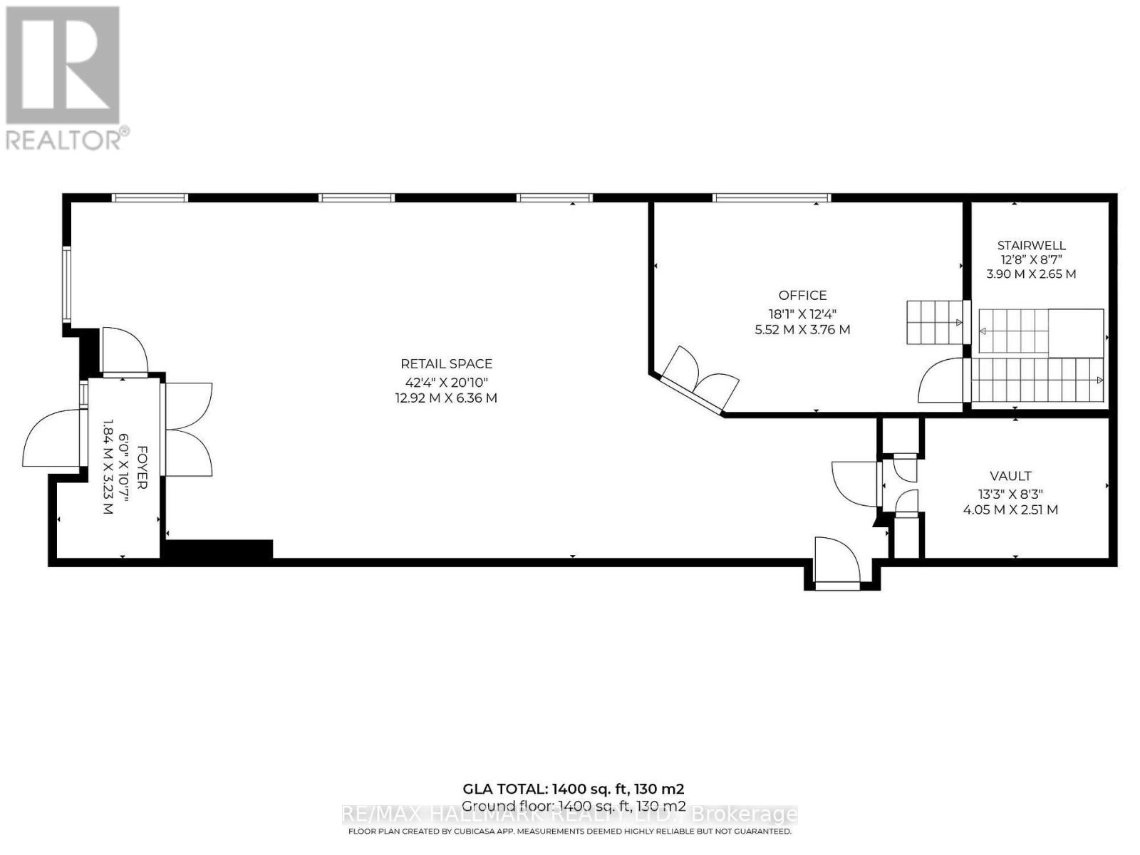
Premier, Main Floor, Commercial, Retail Space, Main Floor of Corner Building With Amazing Exposure At Prominent Intersection, Northeast Corner Of Avenue Rd & Eglinton Ave West. High Vehicular And Foot Traffic Steps From the "NEWLY OPENED CROSSTOW STATION", Retail Shops, Restaurants, Parks, Schools, And Much More! Note: This Listing Is For Approx. 1400 Sq/Ft, *Fronts On Eglinton AND Avenue Rd.* (HST Not Included, Electricity is billed separately) (id:64974)
Quick Facts
- Property Type: Retail
- Bedrooms: None
- Bathrooms: 1
- Living Area: 1,400 sq ft (130.1 m²)
- Frontage: 20 ft (6.1 m)
Costs
- Annual Taxes: $18.50
Listing Provided by: RE/MAX HALLMARK REALTY LTD.
Board: Toronto Regional Real Estate Board
Data provided via CREA DDF®.
Detailed Features
Interior & Systems
- Heating: Hot water radiator heat, Natural gas
- Cooling: Fully air conditioned
Exterior & Construction
- Water: Municipal water
Lot & Land
- Frontage: 20 ft (6.1 m)
- Zoning: Cr3 (C2;R2.5*2233)
Community & Neighbourhood
- Neighbourhood: Yonge-Eglinton
Listing Information
Listing History
Buy/Sell/Terminated/Expired listing history for 306A EGLINTON AVENUE W, Toronto (Yonge-Eglinton), Ontario, M4R1B2
Location & Neighborhood
🚗 Travel times
Neighborhood Walkability
Mortgage & Cost Calculators
Similar Properties
No active comparables found in this area.
Sold Comparables
Access to sold property data requires a registered and verified account with TRREB DDF integration.
Coming SoonRented Comparables
Access to rented property data requires a registered and verified account with TRREB DDF integration.
Coming Soon













