303 PARKIN CIRCLE, Ottawa, Ontario, K1T4G8
MLS: X12954020 | House (Freehold)
$874,900




















































Property Description
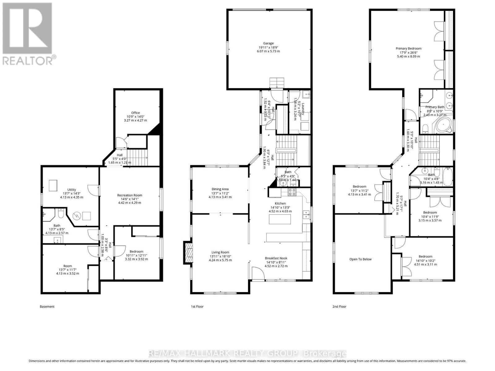
Nestled on a quiet, rarely offered street in Blossom Park, 303 Parkin Circle is a standout home offering nearly 4,000 sq ft of finished living space, including just under 2,800 sq ft above grade plus a finished basement, with a unique and highly functional floor plan that sets it apart from the typical cookie cutter home. Set on a premium corner lot with extra side yard space, a fully hedged yard, and ideal southwest exposure, this home is flooded with natural light through dramatic two storey windows that create a bright, airy feel. The main living space is anchored by soaring ceilings and a stunning wall of windows, seamlessly connected to a spacious kitchen with rich cabinetry, newer appliances, an eat in area, and a large island that is perfect for everyday living and entertaining. A separate formal dining room adds flexibility for hosting, while the overall layout feels cohesive, open, and designed for real life. Upstairs, the primary suite is exceptionally large and privately positioned, featuring cathedral ceilings and a layout that truly feels like its own retreat, while the additional bedrooms are all generously sized and set on the opposite side of the home. The fully finished basement offers incredible additional living space with a large family room, bedroom, full bathroom, and bonus areas for a gym or office. Major updates include a newer roof 2022 and a high efficiency furnace with heat pump/central AC 2025 for year round comfort and efficiency. Across from a park with baseball diamonds, tennis courts, and a skating rink, and with an extensive network of wooded walking paths right outside your front door that connect throughout the neighbourhood, this location offers an unbeatable lifestyle. Enjoy evening unwinding on the front balcony, perfect for taking in the peaceful surroundings and people watching. Surrounded by parks, trails, and a true sense of community, this is a rare opportunity for buyers seeking space, privacy, and something different. (id:64974)
Quick Facts
- Property Type: House (Freehold)
- Bedrooms: 5 (4 above, 1 below)
- Bathrooms: 4 (1 half)
- Ownership: Freehold
- Attached: No
- Fireplaces: 1
- Parking: 4.0 spaces (Attached Garage, Garage, Inside Entry)
- Frontage: 41 ft (12.4 m)
Costs
- Annual Taxes: $6,096.29 (2025)
Listing Provided by: RE/MAX HALLMARK REALTY GROUP
Board: Ottawa Real Estate Board
Data provided via CREA DDF®.
Detailed Features
Interior & Systems
- Heating: Heat Pump, Forced air, Not known, Electric, Natural gas
- Cooling: Central air conditioning
- Basement: Finished, N/A
- Appliances: Washer, Refrigerator, Dishwasher, Stove, Dryer, Hood Fan, Garage door opener remote(s)
- Flooring: Tile, Hardwood, Laminate
Exterior & Construction
- Exterior: Brick, Vinyl siding
- Foundation: Poured Concrete
- Fencing: Fenced yard
- Sewer: Sanitary sewer
- Water: Municipal water
Lot & Land
- Frontage: 41 ft (12.4 m)
- Features: Wooded area
Community & Neighbourhood
- Building: Fireplace(s)
- Neighbourhood: 2605 - Blossom Park/Kemp Park/Findlay Creek
Room Details (13 rooms)
Listing Information
Listing History
MLS listing activity for 303 PARKIN CIRCLE, Ottawa, Ontario, K1T4G8 — dates reflect when changes were recorded in the DDF
🚗 Travel times
Neighborhood Walkability
Mortgage & Cost Calculators
Nearby Homes ?Nearby Homes — Search CriteriaSearch Radius1 kmPrice Range±5%Match BedroomsYesMatch BathroomsYes

145 STEDMAN STREET, Ottawa
House$749,900
$4,192/yr taxListing Courtesy of ROYAL LEPAGE TEAM REALTY

1534 ROSEBELLA AVENUE, Ottawa
House$849,000
$5,148/yr taxListing Courtesy of EXP REALTY

85 - 3180 BANNON WAY, Ottawa
Condo - Row / Townhouse$409,900
$2,415/yr taxListing Courtesy of ROYAL LEPAGE INTEGRITY REALTY

1372 RIDGEDALE STREET, Ottawa
House$659,000
$4,096/yr taxListing Courtesy of ENGEL & VOLKERS OTTAWA

3794 ALBION ROAD, Ottawa
House$1,190,000
$3,469/yr taxListing Courtesy of LPT REALTY

1355 MORY STREET, Ottawa
House$995,000
$7,250/yr taxListing Courtesy of OTTAWA PROPERTY SHOP REALTY INC.

2876 TRESA COURT, Ottawa
House$749,900
$6,722/yr taxListing Courtesy of DETAILS REALTY INC.

G-725 DEARBORN PRIVATE, Ottawa
Condo - Apartment$475,000
$3,173/yr taxListing Courtesy of AKARAT GROUP INC.

528 FAWN VALLEY PRIVATE, Ottawa
Row / Townhouse$699,900
$5,250/yr taxListing Courtesy of EXP REALTY

17 - 3103 ARMADA AVENUE, Ottawa
Condo - Row / Townhouse$429,000
$2,856/yr taxListing Courtesy of CENTURY 21 ACTION POWER TEAM LTD.

52 - 3691 ALBION ROAD, Ottawa
Condo - Row / Townhouse$389,900
$2,857/yr taxListing Courtesy of EXP REALTY

23 - 3691 ALBION ROAD, Ottawa
Single Family$329,900
$2,810/yr taxListing Courtesy of RE/MAX HALLMARK REALTY GROUP

52 - 3691 ALBION ROAD, Ottawa
Condo - Row / Townhouse$2,500/mo
Listing Courtesy of EXP REALTY

32 - 3017 VICTORIA HEIGHTS CRESCENT, Ottawa
Condo - House$675,000
$3,650/yr taxListing Courtesy of RE/MAX HALLMARK REALTY GROUP

72 - 2976 OLYMPIC WAY, Ottawa
Condo - Row / Townhouse$369,900
$2,415/yr taxListing Courtesy of CENTURY 21 SYNERGY REALTY INC
Similar Homes ?Similar Homes — Search CriteriaSearch Radius5 kmPrice Range±5%Match Home TypeYesMatch BedroomsYes

19 HACKETT STREET, Ottawa
House$915,000
$7,029/yr taxListing Courtesy of ROYAL LEPAGE TEAM REALTY

14 ESCARPMENT Drive, Stoney Creek
House$874,900
$5,220/yr taxListing Courtesy of Easy List Realty Ltd.

321 HEPATICA WAY, Ottawa
House$874,900
$5,814/yr taxListing Courtesy of RE/MAX HALLMARK REALTY GROUP

23473 WONDERLAND ROAD N, Middlesex Centre
House$874,900
$5,637/yr taxListing Courtesy of THE REALTY FIRM PRESTIGE BROKERAGE INC.

50 BELLEVIEW DRIVE, Kingsville
House$874,900
Listing Courtesy of REALTY ONE GROUP ICONIC BROKERAGE

1010 KILMARNOCK ROAD S, Merrickville-Wolford
House$874,900
$7,468/yr taxListing Courtesy of QUEENSWOOD NATIONAL REAL ESTATE LTD

2365 CROSS STREET, Fort Erie (Ridgeway)
House$874,900
$655/yr taxListing Courtesy of RE/MAX NIAGARA REALTY LTD, BROKERAGE

25 WOODLAND ST, Kingsville
House$874,900
Listing Courtesy of REMAX CAPITAL DIAMOND REALTY

199 LIEBLER STREET, East Zorra-Tavistock (Tavistock)
House$874,900
$4,378/yr taxListing Courtesy of RE/MAX A-B Realty Ltd

102 KING STREET W, Kawartha Lakes (Emily)
House$874,900
$3,657/yr taxListing Courtesy of CENTURY 21 UNITED REALTY INC.

56 MUIRLANDS DRIVE, Toronto (Milliken)
House$874,900
$4,532/yr taxListing Courtesy of ROYAL LEPAGE SIGNATURE REALTY

605 WILLOWICK DRIVE, Newmarket (Stonehaven-Wyndham)
House$874,900
$4,298/yr taxListing Courtesy of RIGHT AT HOME REALTY

166 LAMPLIGHTERS DRIVE, Ottawa
House$874,900
$5,740/yr taxListing Courtesy of RE/MAX HALLMARK REALTY GROUP

C319 - 301 SEA RAY AVENUE, Innisfil
Condo - Apartment$874,900
$5,498/yr taxListing Courtesy of LPT Realty

47 BLACKWELL CRESCENT, Bradford West Gwillimbury (Bradford)
Row / Townhouse$874,900
$4,801/yr taxListing Courtesy of REMAX YOUR COMMUNITY REALTY
Similar Properties ?Active Comparables — Search CriteriaSearch Radius2 kmPrice Range±5%Match Home TypeYesMatch BedroomsYes
No active comparables found in this area.
No rental comparables found in this area.
Sold Comparables
Access to sold property data requires a registered and verified account with TRREB DDF integration.
Coming SoonRented Comparables
Access to rented property data requires a registered and verified account with TRREB DDF integration.
Coming SoonBook a Viewing
303 PARKIN CIRCLE, Ottawa, Ontario, K1T4G8
