302 - 8 HARRIS STREET, Cambridge, Ontario, N1R8R1
MLS: X12830898 | Apartment (Condo)
$329,900






























Property Description
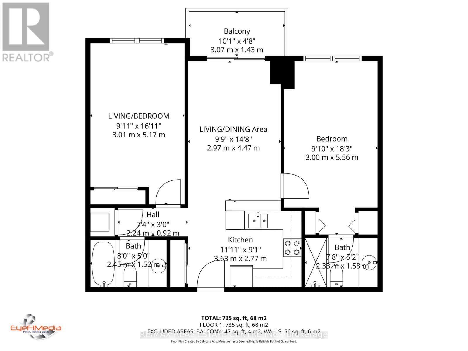
Perfectly situated just minutes from Cambridge's vibrant Gaslight District and the historic downtown core of Galt, this well-maintained condo offers exceptional value in a highly walkable location. Enjoy the convenience of shopping, public transit, churches, restaurants, cafés, the Cambridge library, arts centre, gyms, and everyday essentials - all just steps from your door. This bright and functional unit features an open-concept layout with 2 bedrooms and 2 full bathrooms - a rare find at this price point. The spacious primary bedroom includes its own private ensuite, while the second bedroom and full bathroom are ideally positioned for guests, family, or a home office. The kitchen offers generous counter space and ample cabinetry, perfect for everyday living and entertaining. Step out onto your private balcony to enjoy your morning coffee or unwind in the evening. Building amenities include a gym, party room, and outdoor BBQ area. For a second parking space, additional parking spaces are often available for residents through the building bulletin. An excellent opportunity for first-time buyers, downsizers, or investors seeking affordability, convenience, and low-maintenance living in a central location. Two bedrooms and two full bathrooms at this price are rarely available. (id:64974)
Quick Facts
- Property Type: Apartment (Condo)
- Bedrooms: 2 (2 above)
- Bathrooms: 2
- Ownership: Condo/Strata
- Attached: Yes
- Parking: 1 space (Garage)
Costs
- Annual Taxes: $2,636.00
- Condo/HOA Fee: $743.83 / monthly
- Corp: Sanderson Management
- Includes: Common Area Maintenance, Heat, Water, Insurance
Listing Provided by: RE/MAX REAL ESTATE CENTRE INC.
Board: Toronto Regional Real Estate Board
Data provided via CREA DDF®.
Detailed Features
Interior & Systems
- Heating: Forced air, Natural gas
- Cooling: Central air conditioning
- Basement: None
- Appliances: Washer, Refrigerator, Intercom, Dishwasher, Stove, Dryer, Microwave, Hood Fan, Window Coverings
Exterior & Construction
- Exterior: Brick
Lot & Land
- Features: Balcony, In suite Laundry
Community & Neighbourhood
- Community: Pets Allowed With Restrictions
Room Details (1 rooms)
Listing Information
Listing History
Buy/Sell/Terminated/Expired listing history for 302 - 8 HARRIS STREET, Cambridge, Ontario, N1R8R1
Location & Neighborhood
🚗 Travel times
Neighborhood Walkability
Mortgage & Cost Calculators
Nearby Homes (Within 2km)
Similar Homes
Similar Properties
No rental comparables found in this area.
Sold Comparables
Access to sold property data requires a registered and verified account with TRREB DDF integration.
Coming SoonRented Comparables
Access to rented property data requires a registered and verified account with TRREB DDF integration.
Coming Soon


















