300 - 152 BAYFIELD STREET, Barrie (City Centre), Ontario, L4M3B5
MLS: S12603626 | Offices
$14.00 / square feet















Property Description
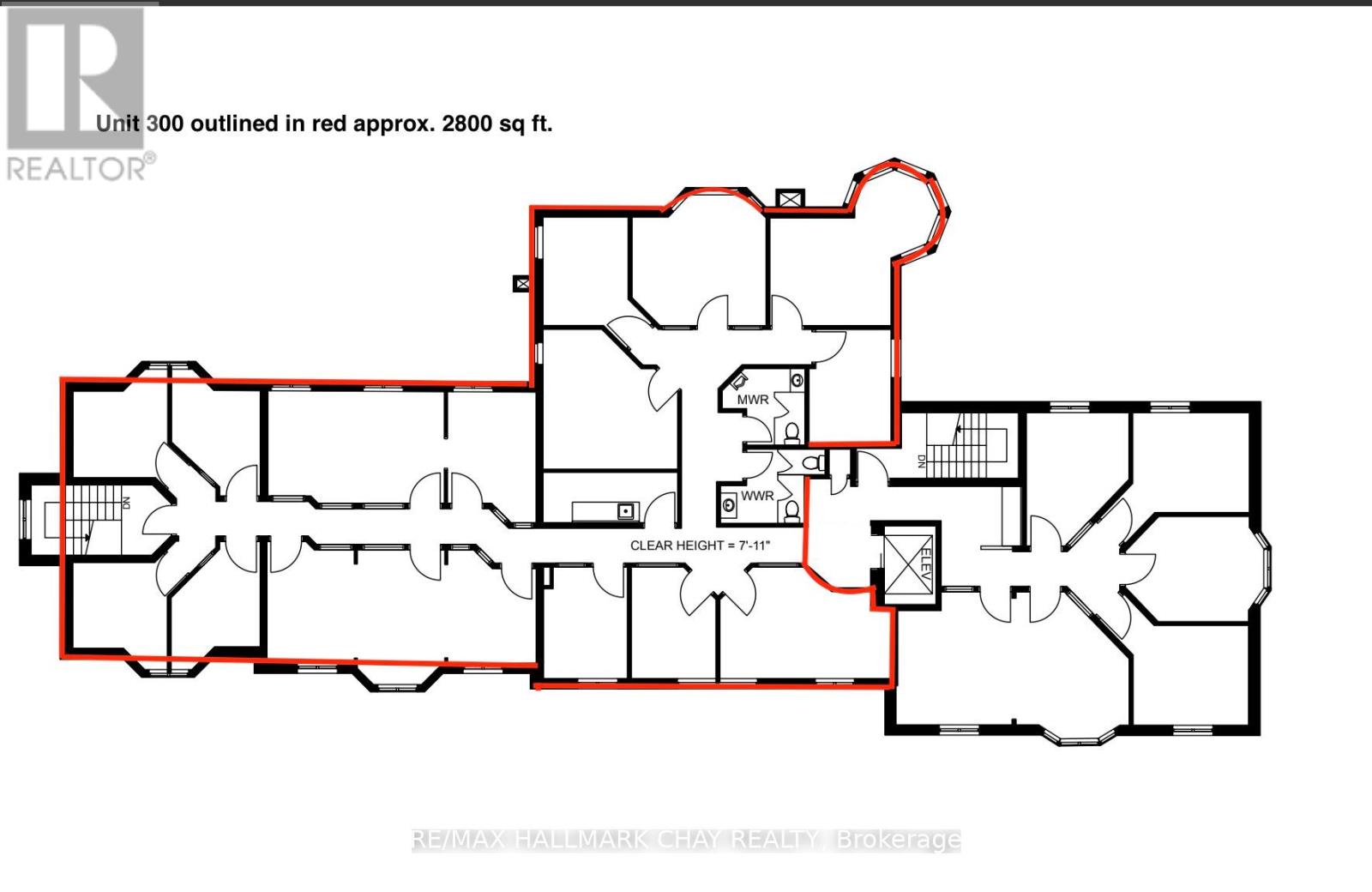
Approx. 2800 Sq Ft available on the top floor of this attractive Professional Office building. Located within close proximity to Downtown Barrie. Several private offices/meeting rooms all with an abundance of natural light. Area can be opened up to create larger work spaces. Includes a kitchen area and two washrooms. Elevator access. Parking available on site. Centrally located to Downtown Barrie's amenities as well as public transportation options and easy access to Hwy. 400. TMI $10.13 includes utilities. (id:65010)
Quick Facts
- Property Type: Offices
- Bedrooms: None
- Bathrooms: None
Listing Provided by: CREA DDF® Member Brokerage
Data provided via CREA DDF®.
Detailed Features
Listing Information
Location & Neighborhood
🚗 Travel times
Neighborhood Walkability
Mortgage & Cost Calculators
Similar Properties
No active comparables found in this area.
Sold Comparables
Access to sold property data requires a registered and verified account with TRREB DDF integration.
Coming SoonRented Comparables
Access to rented property data requires a registered and verified account with TRREB DDF integration.
Coming Soon














