30 SHELDABREN STREET, North Middlesex, Ontario, N0M1A0
MLS: X12980580 | House (Freehold)
$640,619






Property Description
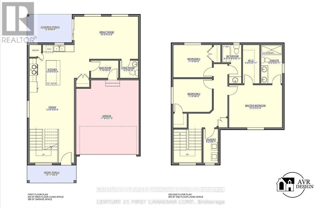
PRICE REFLECTS THE PROPOSED HST REBATE. UNDER CONSTRUCTION- Introducing the Lyla model, a stunning to-be-built 2-storey home by Morrison Homes, in the charming community of Ailsa Craig. Thoughtfully designed with modern living in mind, this 3-bedroom, 3-bathroom home offers 1,750 sq. ft. of beautifully finished space -perfect for families, professionals, or anyone seeking comfort and style. Step inside to an inviting open-concept main floor featuring luxury vinyl flooring, oversized windows, and a bright, seamless flow between the living, dining, and kitchen areas. The kitchen provides the ideal space to cook, gather, and entertain, with direct access to a covered back patio-perfect for year-round enjoyment. Convenience is built into every corner of this home, including a practical mud room off the garage for easy everyday entry. Upstairs, you'll find all three spacious bedrooms, including a well-appointed primary suite, along with the added luxury of second-floor laundry. With its clean modern layout, quality finishes, and thoughtful details throughout, this to-be-built home delivers exceptional value in one of the area's most welcoming communities. Your next chapter begins at 30 Sheldabren St. Crafted for comfort, style, and modern living. Note: Rendition is for illustration purposes only. Some finishes and/or upgrades shown may not be included in standard specs. Taxes and assessed value yet to be determined. List price reflects the anticipated benefit of a proposed Government HST rebate (not yet enacted). HST included with all applicable rebates assigned to the Builder. Price is contingent on Buyer eligibility and rebate implementation. (id:64974)
Quick Facts
- Property Type: House (Freehold)
- Bedrooms: 3 (3 above)
- Bathrooms: 3 (1 half)
- Ownership: Freehold
- Attached: No
- Parking: 3.0 spaces (Attached Garage, Garage)
- Frontage: 40 ft (12.2 m)
Listing Provided by: CENTURY 21 FIRST CANADIAN CORP.
Board: London and St. Thomas Association of REALTORS®
Data provided via CREA DDF®.
Detailed Features
Interior & Systems
- Heating: Forced air, Natural gas
- Cooling: Central air conditioning
- Basement: Unfinished, N/A
- Appliances: Garage door opener remote(s), Water Heater - Tankless
Exterior & Construction
- Exterior: Brick, Hardboard
- Foundation: Poured Concrete
- Sewer: Sanitary sewer
- Water: Municipal water
Lot & Land
- Frontage: 40 ft (12.2 m)
- Features: Conservation/green belt, Sump Pump
Community & Neighbourhood
- Community: Community Centre
- Neighbourhood: Rural North Middlesex
Room Details (10 rooms)
Listing Information
Listing History
MLS listing activity for 30 SHELDABREN STREET, North Middlesex, Ontario, N0M1A0 — dates reflect when changes were recorded in the DDF
🚗 Travel times
Neighborhood Walkability
Mortgage & Cost Calculators
Nearby Homes ?Nearby Homes — Search CriteriaSearch Radius1 kmPrice Range±5%Match BedroomsYesMatch BathroomsYes

5 DOERR COURT, North Middlesex (Ailsa Craig)
House$640,620
Listing Courtesy of CENTURY 21 FIRST CANADIAN CORP.

6 SHELDABREN STREET, North Middlesex (Ailsa Craig)
House$614,900
$4,425/yr taxListing Courtesy of CENTURY 21 FIRST CANADIAN CORP.

21 HAMILTON STREET, North Middlesex (Ailsa Craig)
House$667,169
Listing Courtesy of CENTURY 21 FIRST CANADIAN CORP.

8 - 32 POSTMA CRESCENT, North Middlesex (Ailsa Craig)
Row / Townhouse$654,900
Listing Courtesy of CENTURY 21 FIRST CANADIAN CORP.

27 SHELDABREN STREET, North Middlesex (Ailsa Craig)
House$552,500
Listing Courtesy of CENTURY 21 FIRST CANADIAN CORP.

24 SHELDABREN STREET, North Middlesex (Ailsa Craig)
House$729,115
Listing Courtesy of CENTURY 21 FIRST CANADIAN CORP.

11 SHELDABREN STREET, North Middlesex (Ailsa Craig)
House$645,044
Listing Courtesy of CENTURY 21 FIRST CANADIAN CORP.

29 SHELDABREN STREET, North Middlesex (Ailsa Craig)
House$596,460
Listing Courtesy of CENTURY 21 FIRST CANADIAN CORP.

11 POSTMA CRESCENT, North Middlesex (Ailsa Craig)
House$596,372
Listing Courtesy of CENTURY 21 FIRST CANADIAN CORP.

9 POSTMA CRESCENT, North Middlesex (Ailsa Craig)
House$583,098
Listing Courtesy of CENTURY 21 FIRST CANADIAN CORP.

56 POSTMA CRESCENT, North Middlesex (Ailsa Craig)
House$552,124
Listing Courtesy of CENTURY 21 FIRST CANADIAN CORP.

34 POSTMA CRESCENT, North Middlesex (Ailsa Craig)
House$596,372
Listing Courtesy of CENTURY 21 FIRST CANADIAN CORP.

64 POSTMA CRESCENT, North Middlesex (Ailsa Craig)
House$574,248
Listing Courtesy of CENTURY 21 FIRST CANADIAN CORP.

10 - 32 POSTMA CRESCENT, North Middlesex (Ailsa Craig)
Row / Townhouse$584,900
Listing Courtesy of CENTURY 21 FIRST CANADIAN CORP.

32 ROBIN STREET, North Middlesex (Ailsa Craig)
House$439,900
$2,336/yr taxListing Courtesy of SUTTON GROUP - SELECT REALTY
Similar Homes ?Similar Homes — Search CriteriaSearch Radius5 kmPrice Range±5%Match Home TypeYesMatch BedroomsYes

5 DOERR COURT, North Middlesex (Ailsa Craig)
House$640,620
Listing Courtesy of CENTURY 21 FIRST CANADIAN CORP.

8 - 32 POSTMA CRESCENT, North Middlesex (Ailsa Craig)
Row / Townhouse$654,900
Listing Courtesy of CENTURY 21 FIRST CANADIAN CORP.

6 SHELDABREN STREET, North Middlesex (Ailsa Craig)
House$614,900
$4,425/yr taxListing Courtesy of CENTURY 21 FIRST CANADIAN CORP.

21 HAMILTON STREET, North Middlesex (Ailsa Craig)
House$667,169
Listing Courtesy of CENTURY 21 FIRST CANADIAN CORP.
Similar Properties ?Active Comparables — Search CriteriaSearch Radius2 kmPrice Range±5%Match Home TypeYesMatch BedroomsYes

5 DOERR COURT, North Middlesex (Ailsa Craig)
House$640,620
Listing Courtesy of CENTURY 21 FIRST CANADIAN CORP.

8 - 32 POSTMA CRESCENT, North Middlesex (Ailsa Craig)
Row / Townhouse$654,900
Listing Courtesy of CENTURY 21 FIRST CANADIAN CORP.

6 SHELDABREN STREET, North Middlesex (Ailsa Craig)
House$614,900
$4,425/yr taxListing Courtesy of CENTURY 21 FIRST CANADIAN CORP.

21 HAMILTON STREET, North Middlesex (Ailsa Craig)
House$667,169
Listing Courtesy of CENTURY 21 FIRST CANADIAN CORP.
No rental comparables found in this area.
Sold Comparables
Access to sold property data requires a registered and verified account with TRREB DDF integration.
Coming SoonRented Comparables
Access to rented property data requires a registered and verified account with TRREB DDF integration.
Coming SoonBook a Viewing
30 SHELDABREN STREET, North Middlesex, Ontario, N0M1A0
