3 POSTANS PATH, Hamilton (Ancaster), Ontario, L9G3P8
MLS: X12950662 | House (Freehold)
$1,395,000













































Property Description
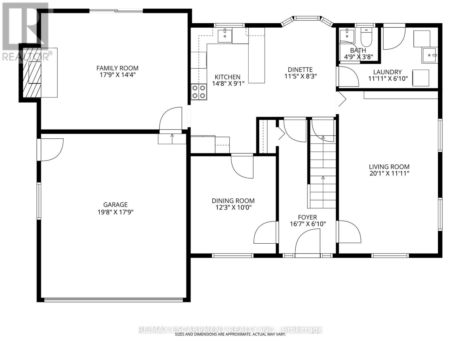
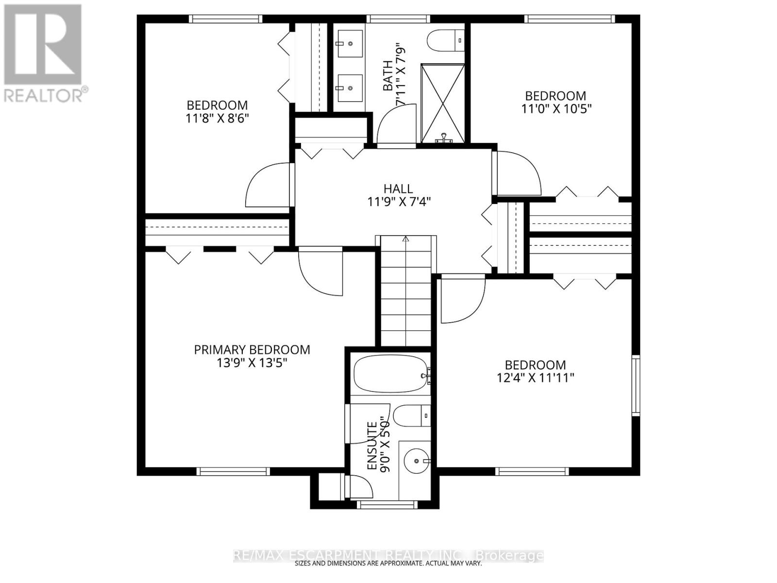
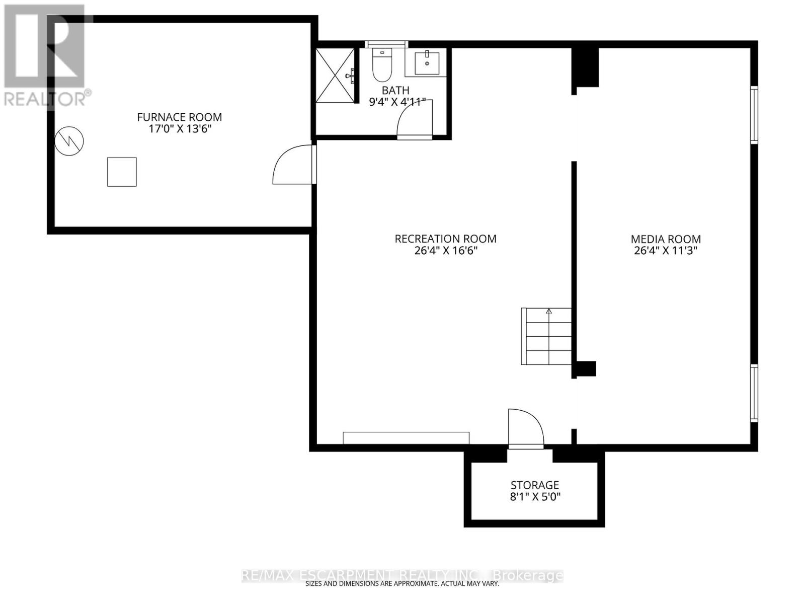
Welcome to 3 Postan's Path in desirable Old Ancaster-an exceptional family home that has been immaculately cared for and showcases a complete interior refresh with upscale finishes throughout. Set on a generous 95.54' wide lot, the home features spacious principal rooms ideal for both everyday living and entertaining. Offering an elegant, symmetrical floor plan, this classic 4-bedroom residence blends timeless design with thoughtful modern updates, including engineered hardwood floors and a beautifully renovated kitchen with quartz countertops and stainless appliances that anchors the home with style and function. The main floor boasts a spacious living room, breakfast-dinette off the kitchen, separate dining room, and a warm, inviting family room with a gas fireplace and walkout to a private, oversized deck-perfect for gathering with family and friends. Upstairs is complemented by a primary suite with wall-to-wall closets and a 4-piece ensuite, three additional well-appointed bedrooms and an updated main bath provide comfort for the whole family. The fully finished basement adds incredible versatility with a large rec room, games area, and full bathroom, creating the perfect space for relaxation, play, or hosting guests. Additional conveniences include main floor laundry with direct access to the rear yard, powder room and inside entry from the double garage. Ideally located in one of Ancaster's most sought-after neighbourhoods, this home is close to top-rated schools, parks, shopping, and conservation trails, with easy access to McMaster University, Hillfield Strathallan College, Mohawk College, and the Hamilton Golf & Country Club. A truly turnkey property where pride of ownership is evident at every turn-ready to welcome its next family. (id:64974)
Quick Facts
- Property Type: House (Freehold)
- Bedrooms: 4 (4 above)
- Bathrooms: 4 (1 half)
- Ownership: Freehold
- Attached: No
- Fireplaces: 1
- Parking: 8.0 spaces (Attached Garage, Garage, Inside Entry)
- Frontage: 96 ft (29.1 m)
Costs
- Annual Taxes: $7,964.15
Listing Provided by: RE/MAX ESCARPMENT REALTY INC.
Board: Toronto Regional Real Estate Board
Data provided via CREA DDF®.
Detailed Features
Interior & Systems
- Heating: Forced air, Natural gas
- Cooling: Central air conditioning
- Basement: Finished, Full
- Appliances: Washer, Refrigerator, Water meter, Central Vacuum, Dishwasher, Stove, Dryer, Microwave, Window Coverings, Garage door opener, Water Heater
- Utilities: Sewer, Electricity, Cable
- Security: Alarm system, Smoke Detectors
Exterior & Construction
- Exterior: Brick, Aluminum siding
- Foundation: Block
- Sewer: Sanitary sewer
- Water: Municipal water
Lot & Land
- Frontage: 96 ft (29.1 m)
- Features: Wooded area, Flat site, Dry
Community & Neighbourhood
- Community: School Bus, Community Centre
- Building: Fireplace(s)
- Neighbourhood: Ancaster
Room Details (18 rooms)
Listing Information
Listing History
MLS listing activity for 3 POSTANS PATH, Hamilton (Ancaster), Ontario, L9G3P8 — dates reflect when changes were recorded in the DDF
🚗 Travel times
Neighborhood Walkability
Mortgage & Cost Calculators
Nearby Homes ?Nearby Homes — Search CriteriaSearch Radius1 kmPrice Range±5%Match BedroomsYesMatch BathroomsYes

3 POSTANS Path, Ancaster
House$1,395,000
$7,964/yr taxListing Courtesy of RE/MAX Escarpment Realty Inc.

60 PARKER Avenue, Ancaster
House$2,695,000
$13,492/yr taxListing Courtesy of Coldwell Banker Community Professionals

38 PARKER AVENUE, Hamilton (Ancaster)
House$1,149,900
$6,704/yr taxListing Courtesy of RE/MAX ESCARPMENT REALTY INC.

60 PARKER AVENUE, Hamilton (Ancaster)
House$2,695,000
$13,492/yr taxListing Courtesy of COLDWELL BANKER COMMUNITY PROFESSIONALS

38 PARKER Avenue, Ancaster
House$1,149,900
$6,704/yr taxListing Courtesy of RE/MAX Escarpment Realty Inc.

98 HADLEY Drive, Ancaster
House$1,370,000
$7,719/yr taxListing Courtesy of RE/MAX Escarpment Golfi Realty Inc.

27 LOVERS Lane, Ancaster
House$2,299,900
$10,068/yr taxListing Courtesy of Real Broker Ontario Ltd.

95 WILSON Street W Unit# 106, Hamilton
Condo - Apartment$2,250/mo
Listing Courtesy of Sutton Group Innovative Realty Inc.

105 WILSON Street W Unit# 20, Ancaster
Condo - Row / Townhouse$669,900
$4,014/yr taxListing Courtesy of Royal LePage Burloak Real Estate Services

126 MCGREGOR Crescent, Ancaster
House$3,988,000
$27,545/yr taxListing Courtesy of Royal LePage State Realty Inc.

108 LLOYMINN AVENUE, Hamilton (Ancaster)
House$1,295,000
$6,648/yr taxListing Courtesy of ROYAL LEPAGE REAL ESTATE SERVICES LTD.

108 LLOYMINN AVENUE, Hamilton (Ancaster)
House$3,995/mo
Listing Courtesy of ROYAL LEPAGE REAL ESTATE SERVICES LTD.

65 JERSEYVILLE Road E, Ancaster
House$1,325,000
$9,461/yr taxListing Courtesy of RE/MAX Escarpment Realty Inc.

65 JERSEYVILLE ROAD E, Hamilton (Ancaster)
House$1,325,000
$9,461/yr taxListing Courtesy of RE/MAX ESCARPMENT REALTY INC.

57 MCGREGOR CRESCENT, Hamilton (Ancaster)
House$1,699,500
$10,055/yr taxListing Courtesy of KELLER WILLIAMS REFERRED URBAN REALTY
Similar Homes ?Similar Homes — Search CriteriaSearch Radius5 kmPrice Range±5%Match Home TypeYesMatch BedroomsYes

3 POSTANS Path, Ancaster
House$1,395,000
$7,964/yr taxListing Courtesy of RE/MAX Escarpment Realty Inc.

132 GRANDELL Drive, Ancaster
House$1,399,000
$8,352/yr taxListing Courtesy of Royal LePage Macro Realty

22 ROSELAWN Avenue, Ancaster
House$1,385,000
$1/yr taxListing Courtesy of Royal LePage Macro Realty

87 JEROME PARK Drive, Dundas
House$1,380,000
$7,583/yr taxListing Courtesy of Com/Choice Realty

66 CESAR Place, Ancaster
House$1,379,888
$8,752/yr taxListing Courtesy of Royal LePage State Realty Inc.

66 CESAR PLACE, Hamilton (Ancaster)
House$1,379,888
$8,752/yr taxListing Courtesy of ROYAL LEPAGE STATE REALTY

31 PEER COURT, Hamilton (Meadowlands)
House$1,378,800
$8,509/yr taxListing Courtesy of ROYAL LEPAGE CERTIFIED REALTY

98 HADLEY Drive, Ancaster
House$1,370,000
$7,719/yr taxListing Courtesy of RE/MAX Escarpment Golfi Realty Inc.

23 KELLOGG Avenue, Hamilton
House$1,359,900
$7,481/yr taxListing Courtesy of Royal LePage State Realty Inc.

435 KLEIN Circle, Ancaster
House$1,449,990
Listing Courtesy of Royal LePage Macro Realty

51 WEAVER Drive, Ancaster
House$1,450,000
$8,591/yr taxListing Courtesy of Coldwell Banker Community Professionals

389 CLARENDON Drive, Ancaster
House$1,450,000
$7,048/yr taxListing Courtesy of Coldwell Banker Community Professionals

3 GRANDELL Drive, Ancaster
House$1,450,000
$8,648/yr taxListing Courtesy of Royal LePage Macro Realty

91 ABBEY Close, Ancaster
House$1,329,000
$7,564/yr taxListing Courtesy of Re/Max Twin City Realty Inc

91 ABBEY CLOSE, Hamilton (Ancaster)
House$1,329,000
$7,564/yr taxListing Courtesy of RE/MAX TWIN CITY REALTY INC.
Similar Properties ?Active Comparables — Search CriteriaSearch Radius2 kmPrice Range±5%Match Home TypeYesMatch BedroomsYes

3 POSTANS Path, Ancaster
House$1,395,000
$7,964/yr taxListing Courtesy of RE/MAX Escarpment Realty Inc.

22 ROSELAWN Avenue, Ancaster
House$1,385,000
$1/yr taxListing Courtesy of Royal LePage Macro Realty

66 CESAR Place, Ancaster
House$1,379,888
$8,752/yr taxListing Courtesy of Royal LePage State Realty Inc.

66 CESAR PLACE, Hamilton (Ancaster)
House$1,379,888
$8,752/yr taxListing Courtesy of ROYAL LEPAGE STATE REALTY

98 HADLEY Drive, Ancaster
House$1,370,000
$7,719/yr taxListing Courtesy of RE/MAX Escarpment Golfi Realty Inc.

389 CLARENDON Drive, Ancaster
House$1,450,000
$7,048/yr taxListing Courtesy of Coldwell Banker Community Professionals

91 ABBEY Close, Ancaster
House$1,329,000
$7,564/yr taxListing Courtesy of Re/Max Twin City Realty Inc

91 ABBEY CLOSE, Hamilton (Ancaster)
House$1,329,000
$7,564/yr taxListing Courtesy of RE/MAX TWIN CITY REALTY INC.

456 VALRIDGE DRIVE, Hamilton (Ancaster)
House$4,500/mo
Listing Courtesy of RIGHT AT HOME REALTY

456 VALRIDGE Drive, Ancaster
House$4,500/mo
Listing Courtesy of RIGHT AT HOME REALTY BROKERAGE
Sold Comparables
Access to sold property data requires a registered and verified account with TRREB DDF integration.
Coming SoonRented Comparables
Access to rented property data requires a registered and verified account with TRREB DDF integration.
Coming SoonBook a Viewing
3 POSTANS PATH, Hamilton (Ancaster), Ontario, L9G3P8
