3 NORTHLAND ROAD, Midland, Ontario, L4R0B9
MLS: S12839994 | Mobile Home (Leasehold)
$289,900






















Property Description
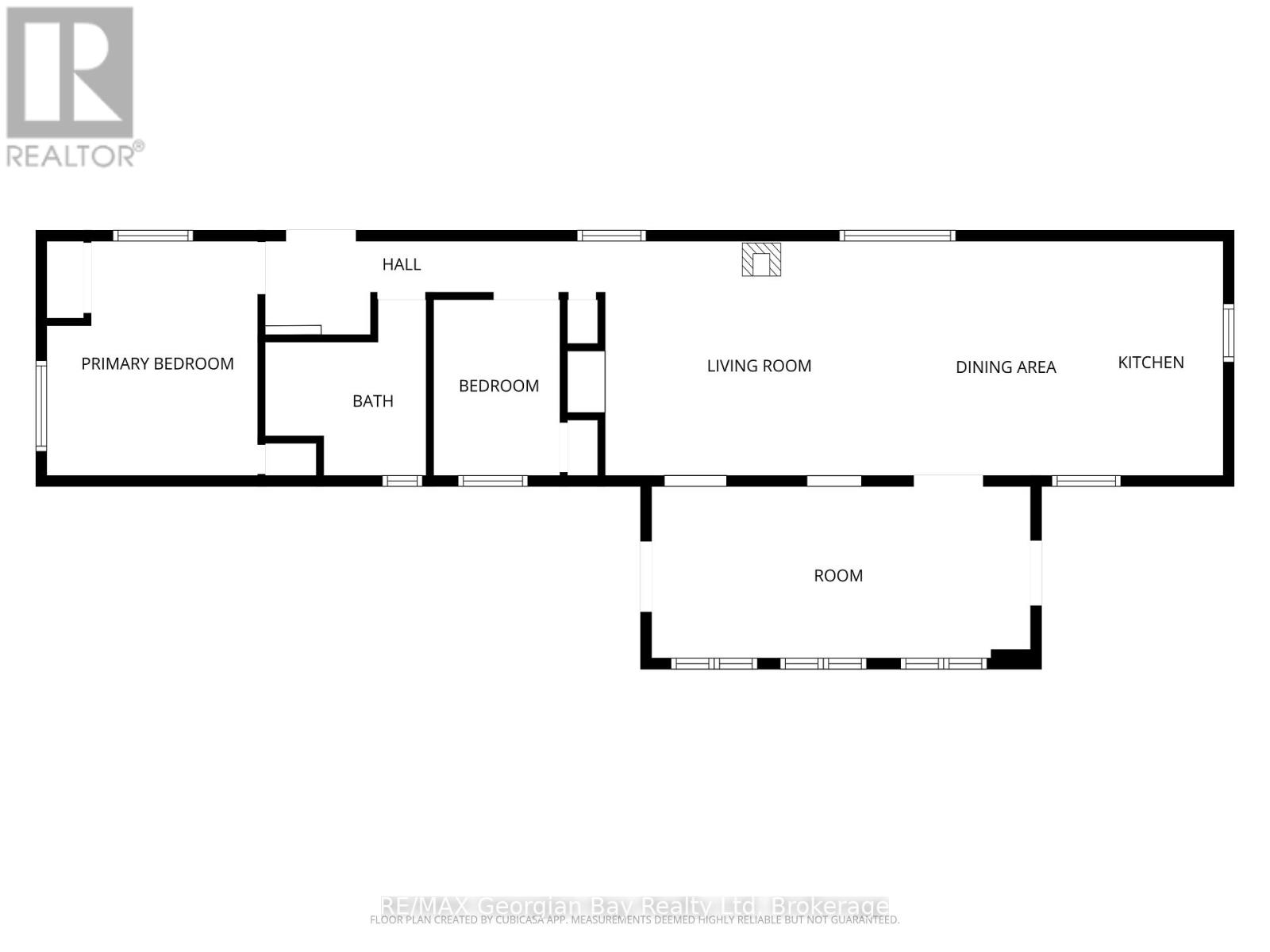
Affordable Living with Great Amenities! Looking for an affordable home with extras you don't usually get at this price? This charming 2-bedroom, 1-bath home is located in the welcoming community of Smith's Camp and offers comfort, convenience, and value! Features Include 2 Bedrooms, 1 Bathroom, Sunroom, Access to Community Pool and no neighbours across the road. Enjoy the benefits of community living while still having your own space - Single car garage with hydro, new vinyl plank flooring and most windows replaced in last 5 years all a rare find at this price point! Low-maintenance living at it's best!Perfect for first-time buyers, downsizers, or anyone looking for a budget-friendly option without sacrificing amenities. (id:64974)
Quick Facts
- Property Type: Mobile Home (Leasehold)
- Bedrooms: 2 (2 above)
- Bathrooms: 1
- Ownership: Leasehold
- Fireplaces: Yes
- Parking: 5 spaces (Detached Garage, Garage)
Costs
- Annual Taxes: $685.00
Listing Provided by: RE/MAX Georgian Bay Realty Ltd
Board: OnePoint Association of REALTORS®
Data provided via CREA DDF®.
Detailed Features
Interior & Systems
- Heating: Forced air, Natural gas
- Cooling: Central air conditioning
- Basement: None
- Appliances: Washer, Refrigerator, Stove, Dryer, Window Coverings, Water Heater
Exterior & Construction
- Exterior: Vinyl siding
- Foundation: Wood/Piers
- Sewer: Sanitary sewer
- Water: Municipal water
Community & Neighbourhood
- Building: Fireplace(s)
- Neighbourhood: Midland
Room Details (5 rooms)
Listing Information
Listing History
Buy/Sell/Terminated/Expired listing history for 3 NORTHLAND ROAD, Midland, Ontario, L4R0B9
Location & Neighborhood
🚗 Travel times
Neighborhood Walkability
Mortgage & Cost Calculators
Nearby Homes (Within 2km)
Similar Homes
Similar Properties
No rental comparables found in this area.
Sold Comparables
Access to sold property data requires a registered and verified account with TRREB DDF integration.
Coming SoonRented Comparables
Access to rented property data requires a registered and verified account with TRREB DDF integration.
Coming Soon

























