3 - 18279 YONGE STREET, East Gwillimbury, Ontario, L9N0A2
MLS: N12669886 | Business
$428,800








































Property Description
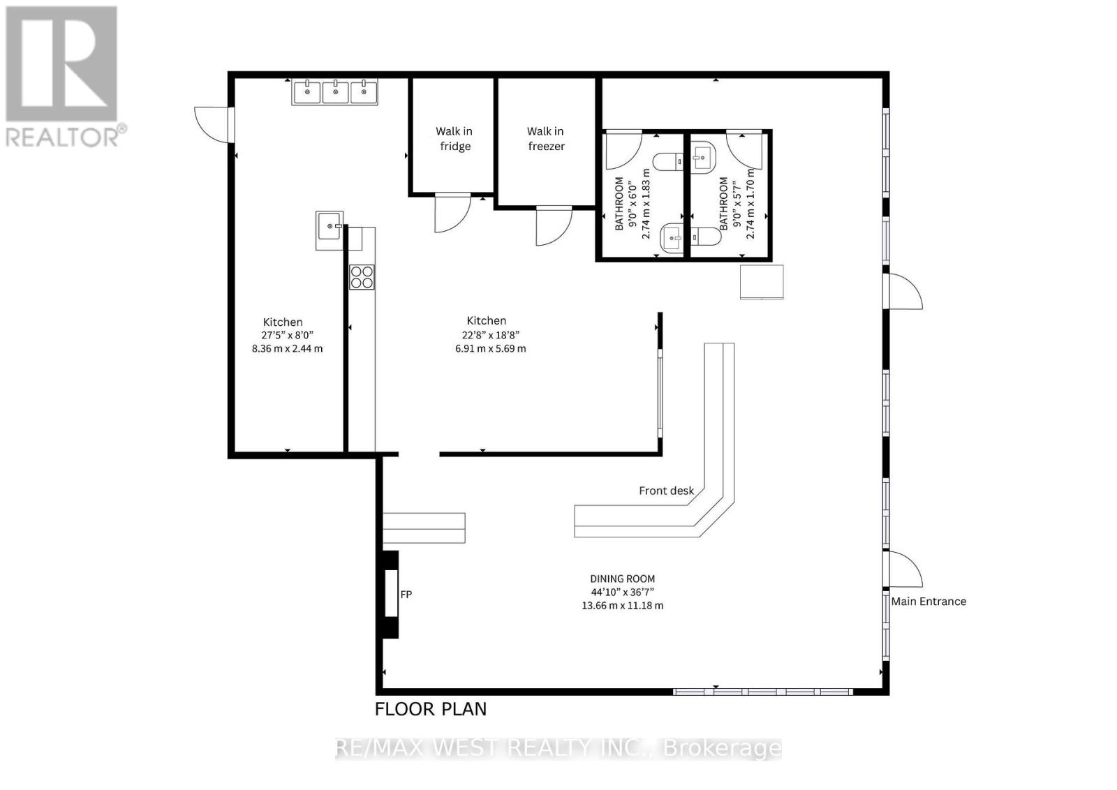
Step into the story of a local legend, an iconic pizza restaurant that has been the heart of its community since 2014. Perfectly positioned on bustling Yonge Street in East Gwillimbury, right on the border of Newmarket, this well-known establishment sits in a high-density plaza surrounded by major anchor businesses that keep foot traffic strong day and night. For over a decade, this pizzeria has served generations of families, students, and loyal regulars who return time and time again for its unforgettable flavours. Behind the scenes lies a fully customized, impeccably maintained kitchen designed for serious production: two commercial hoods (8' and 13'), dual pizza ovens, a walk-in freezer and fridge, dough mixer, topping stations, grills, stove, extensive shelving, and an abundance of prep space. Everything a thriving food operation needs. Whether you envision continuing the legacy of this beloved pizza brand or transforming the space into an entirely new culinary concept, the possibilities are endless. With a long-term lease available, this is a rare opportunity to take over a profitable, turnkey business in one of the most desirable locations north of Toronto. A busy shop with deep roots, a strong reputation, and unlimited potential, waiting for its next owner to step in, take the lead, and elevate it to the next chapter. (id:64974)
Quick Facts
- Property Type: Business
- Bedrooms: None
- Bathrooms: None
- Living Area: 2,083 sq ft (193.5 m²)
- Frontage: 40 ft (12.2 m)
Listing Provided by: RE/MAX WEST REALTY INC.
Board: Toronto Regional Real Estate Board
Data provided via CREA DDF®.
Detailed Features
Interior & Systems
- Heating: Forced air, Natural gas
- Cooling: Fully air conditioned
Exterior & Construction
- Water: Municipal water
Lot & Land
- Frontage: 40 ft (12.2 m)
- Zoning: Commercial
Community & Neighbourhood
- Neighbourhood: Rural East Gwillimbury
Listing Information
Listing History
Buy/Sell/Terminated/Expired listing history for 3 - 18279 YONGE STREET, East Gwillimbury, Ontario, L9N0A2
Location & Neighborhood
🚗 Travel times
Neighborhood Walkability
Mortgage & Cost Calculators
Nearby Homes (Within 2km)
Similar Homes
Similar Properties
No rental comparables found in this area.
Sold Comparables
Access to sold property data requires a registered and verified account with TRREB DDF integration.
Coming SoonRented Comparables
Access to rented property data requires a registered and verified account with TRREB DDF integration.
Coming Soon






















