298 NEWTON DRIVE, Toronto (Newtonbrook East), Ontario, M2M2P8
MLS: C12953274 | Vacant Land
$1,988,000






























Property Description
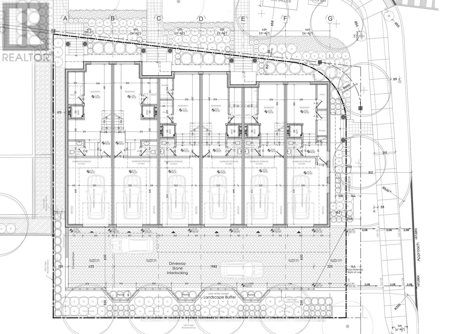
This Two-Storey Solid Brick Home with 4+1 Bedrooms and 4 Washrooms, Situated in a High Exposure Strategic Location Right on the Prime Corner Of Bayview Ave & Newton Dr, With A 101 Feet Exposure On Bayview Ave and 83' on Newton Drive, It Offers a Rare Opportunity for Investors, Developers, or Visionary Homeowners, Suitable for Living, Rental Income, or Great Opportunity for Future Development!! Under the City's Updated Zoning and Intensification Guidelines, the Lot May Support the Creation of Multiple Residential Units, Making It an Ideal Candidate for Multi-Unit Housing **, Income Properties, or a Modern Townhouse Project! ** Possible Options:1) Current Owner Has the Re-Zoning City Approval for Six (6) 3-Storey Freehold Townhouse Units, with Vehicular Access from Newton Drive and 6 Parking Spaces, (with Ready N.O.A.C from City)! 2) 3-Storey Multi Unit Purpose Built Rental As Per ** CMHC MLI Select **! 3) Under the EHON Intuitive Bylaw, Allowing for the Creation of a 4-Story Stacked Townhouse Community of Up to 19 Units!!4) For Those Considering a Larger Vision, the Property's Strategic Location and Assembly Potential with Adjacent Lots Enable the Possibility of a 6-Storey Boutique Condo Project, Accommodating Up to 60 Units. The Corner Positioning Allows for Flexible Access and Site Design Options! What Truly Sets This Property Apart Is Its Significant Redevelopment Potential. Buyer/Buyer Agent To Verify All Information and Proposals with City Planner!Whether You're Looking to Live, Invest, or Build, This Is a Unique Opportunity to Secure a High-Exposure/ Strategic Property with Strong Upside in a Growing Urban Area. Opportunities Like This Are Increasingly Rare-Explore the Possibilities and Unlock the Full Potential of This Prime Corner Lot, Convenient Access to Transit, All Amenities, and Key Urban!! The Proposed Renderings are Attached (id:64974)
Quick Facts
- Property Type: Vacant Land
- Bedrooms: None
- Bathrooms: 3
- Living Area: 8,643 sq ft (803.0 m²)
- Parking: 6.0 spaces
- Frontage: 83 ft (25.4 m)
Costs
- Annual Taxes: $8,408.00
Listing Provided by: RE/MAX REALTRON BIJAN BARATI REAL ESTATE
Board: Toronto Regional Real Estate Board
Data provided via CREA DDF®.
Detailed Features
Interior & Systems
- Heating: Forced air, Natural gas
- Cooling: Fully air conditioned
- Appliances: Dishwasher, Hood Fan
Exterior & Construction
- Water: Municipal water
Lot & Land
- Frontage: 83 ft (25.4 m)
- Features: Irregular lot size
- Zoning: Residential/ Development Approval
Community & Neighbourhood
- Neighbourhood: Newtonbrook East
Listing Information
Listing History
MLS listing activity for 298 NEWTON DRIVE, Toronto (Newtonbrook East), Ontario, M2M2P8 — dates reflect when changes were recorded in the DDF
🚗 Travel times
Neighborhood Walkability
Mortgage & Cost Calculators
Similar Homes ?Similar Homes — Search CriteriaSearch Radius5 kmPrice Range±5%Match Home TypeYesMatch BedroomsYes

471 NORTH SHORE RD, Georgian Bay (Baxter)
Vacant Land$1,988,000
$3,045/yr taxListing Courtesy of Corcoran Horizon Realty

25 SINGLETON STREET, Brighton
Vacant Land$1,990,000
$5,932/yr taxListing Courtesy of RE/MAX QUINTE LTD.

1024-B NEALS ROAD NW, Muskoka Lakes (Wood (Muskoka Lakes))
Vacant Land$1,995,000
$15,070/yr taxListing Courtesy of Chestnut Park Real Estate

1054 FAIR-LEE PARK ROAD, Muskoka Lakes (Medora)
Vacant Land$1,980,000
$3,134/yr taxListing Courtesy of Corcoran Horizon Realty

9 STALWART INDUSTRIAL Drive, Stouffville
Vacant Land$1,998,000
$9,000/yr taxListing Courtesy of RED AND WHITE REALTY INC.

780 ESSA ROAD E, Barrie (0 West)
Vacant Land$1,999,000
$7,736/yr taxListing Courtesy of GET SOLD REALTY INC.

505 TOWNLINE ROAD N, Clarington (Courtice)
Vacant Land$1,999,000
$684/yr taxListing Courtesy of RE/MAX JAZZ INC.

16555 JANE STREET, King
Vacant Land$1,999,880
$6,500/yr taxListing Courtesy of ROYAL LEPAGE CERTIFIED REALTY

8182 HORNBY ROAD, Halton Hills (Rural Halton Hills)
Vacant Land$1,999,913
$6,749/yr taxListing Courtesy of CENTURY 21 LEGACY LTD.

BETWEEN 25097 & 24745 GRAY LINE, West Elgin
Vacant Land$1,999,999
$2,534/yr taxListing Courtesy of OLIVER & ASSOCIATES SARAH OLIVER REAL ESTATE BROKERAGE

611 ABERDEEN Avenue, Hamilton
Vacant Land$2,000,000
$20,927/yr taxListing Courtesy of Colliers Macaulay Nicolls Inc.

00 PIONEER ROAD, North Grenville
Vacant Land$2,000,000
$1,566/yr taxListing Courtesy of COLDWELL BANKER SARAZEN REALTY

00 PIONEER ROAD S, North Grenville
Vacant Land$2,000,000
$1,566/yr taxListing Courtesy of COLDWELL BANKER SARAZEN REALTY

1213 THOMPSON ROAD, Norfolk (Waterford)
Vacant Land$2,025,000
Listing Courtesy of RE/MAX CENTRE CITY REALTY INC.

5 & 7 HURDMAN ROAD, Ottawa
Vacant Land$1,950,000
$11,697/yr taxListing Courtesy of RE/MAX HALLMARK REALTY GROUP
Similar Properties ?Active Comparables — Search CriteriaSearch Radius2 kmPrice Range±5%Match Home TypeYesMatch BedroomsYes
No active comparables found in this area.
No rental comparables found in this area.
Sold Comparables
Access to sold property data requires a registered and verified account with TRREB DDF integration.
Coming SoonRented Comparables
Access to rented property data requires a registered and verified account with TRREB DDF integration.
Coming SoonBook a Viewing
298 NEWTON DRIVE, Toronto (Newtonbrook East), Ontario, M2M2P8
