298 NEWTON DRIVE, Toronto (Newtonbrook East), Ontario, M2M2P8
MLS: C12953238 | House (Freehold)
$1,988,000





































Property Description
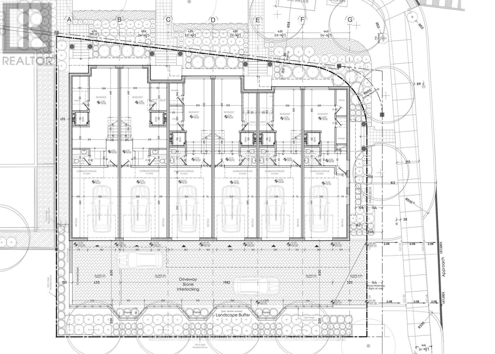
This Two-Storey Solid Brick Home with 4+1 Bedrooms and 4 Washrooms, Situated in a High Exposure Strategic Location Right on the Prime Corner Of Bayview Ave & Newton Dr, With A 101 Feet Exposure On Bayview Ave and 83' on Newton Drive. It Offers a Rare Opportunity for Investors, Developers, or Visionary Homeowners, Suitable for Living, Rental Income, or Great Opportunity for Future Development!! Under the City's Updated Zoning and Intensification Guidelines, the Lot May Support the Creation of Multiple Residential Units, Making It an Ideal Candidate for Multi-Unit Housing **, Income Properties, or a Modern Townhouse Project! ** Possible Options:1) Current Owner Has Obtained the Re-Zoning City Approval for Six (6) 3-Storey Freehold Townhouse Units, with Vehicular Access from Newton Drive and 6 Parking Spaces, (with Ready N.O.A.C from City)! 2) 3-Storey Multi Unit Purpose Built Rental As Per ** CMHC MLI Select **! 3) Under the EHON Intuitive Bylaw, Allowing for the Creation of a 4-Story Stacked Townhouse Community of Up to 19 Units!! 4) For Those Considering a Larger Vision, the Property's Strategic Location and Assembly Potential with Adjacent Lots Enable the Possibility of a 6-Storey Boutique Condo Project, Accommodating Up to 60 Units. The Corner Positioning Allows for Flexible Access and Site Design Options! What Truly Sets This Property Apart Is Its Significant Redevelopment Potential. Buyer/Buyer Agent To Verify All Information and Proposals with City Planner! Whether You're Looking to Live, Invest, or Build, This Is a Unique Opportunity to Secure a High-Exposure/ Strategic Property with Strong Upside in a Growing Urban Area. Opportunities Like This Are Increasingly Rare-Explore the Possibilities and Unlock the Full Potential of This Prime Corner Lot, Convenient Access to Transit, and Key Urban Amenities!! The Proposed Renderings are Attached! (id:64974)
Quick Facts
- Property Type: House (Freehold)
- Bedrooms: 5 (4 above, 1 below)
- Bathrooms: 4 (1 half)
- Ownership: Freehold
- Attached: No
- Parking: 6.0 spaces (Garage)
- Frontage: 83 ft (25.4 m)
Costs
- Annual Taxes: $8,408.00
Listing Provided by: RE/MAX REALTRON BIJAN BARATI REAL ESTATE
Board: Toronto Regional Real Estate Board
Data provided via CREA DDF®.
Detailed Features
Interior & Systems
- Heating: Forced air, Natural gas
- Cooling: Central air conditioning
- Basement: Finished, N/A
- Appliances: Refrigerator, Dishwasher, Stove, Hood Fan, Water Heater
- Flooring: Hardwood, Vinyl
Exterior & Construction
- Exterior: Brick
- Foundation: Concrete
- Sewer: Sanitary sewer
- Water: Municipal water
Lot & Land
- Frontage: 83 ft (25.4 m)
- Features: Irregular lot size
Community & Neighbourhood
- Neighbourhood: Newtonbrook East
Room Details (9 rooms)
Listing Information
Listing History
MLS listing activity for 298 NEWTON DRIVE, Toronto (Newtonbrook East), Ontario, M2M2P8 — dates reflect when changes were recorded in the DDF
🚗 Travel times
Neighborhood Walkability
Mortgage & Cost Calculators
Nearby Homes ?Nearby Homes — Search CriteriaSearch Radius1 kmPrice Range±5%Match BedroomsYesMatch BathroomsYes

19 PAULTIEL DRIVE, Toronto (Newtonbrook East)
House$1,417,500
$8,536/yr taxListing Courtesy of RE/MAX HALLMARK REALTY LTD.

9 ARLINGTON WAY, Markham (Grandview)
Condo - Row / Townhouse$2,095,000
$8,438/yr taxListing Courtesy of RIGHT AT HOME REALTY

60 BOWAN COURT, Toronto (Bayview Woods-Steeles)
House$2,798,000
$16,213/yr taxListing Courtesy of HARVEY KALLES REAL ESTATE LTD.

BSMNT - 34 ARGONNE CRESCENT, Toronto (Bayview Woods-Steeles)
Other$2,000/mo
Listing Courtesy of HOMELIFE LANDMARK REALTY INC.

266 OTONABEE AVENUE, Toronto (Newtonbrook East)
House$1,790,000
$9,976/yr taxListing Courtesy of HC REALTY GROUP INC.

3 OLD ENGLISH LANE, Markham (Bayview Glen)
House$2,499,000
$16,867/yr taxListing Courtesy of HOMELIFE LANDMARK REALTY INC.

BASEMEN - 211 NORTHWOOD DRIVE, Toronto (Newtonbrook East)
Other$2,500/mo
Listing Courtesy of HOMELIFE NEW WORLD REALTY INC.

219 GRANDVIEW AVENUE, Markham (Grandview)
House$1,649,000
$9,076/yr taxListing Courtesy of ROYAL LEPAGE REAL ESTATE SERVICES LTD.

207 NEWTON DRIVE, Toronto (Newtonbrook East)
House$3,388,000
$9,290/yr taxListing Courtesy of ROYAL LEPAGE TERREQUITY REALTY

3 PINEVALE ROAD, Markham (Grandview)
House$1,758,888
$9,533/yr taxListing Courtesy of REMAX YOUR COMMUNITY REALTY

601 CONACHER DRIVE, Toronto (Newtonbrook East)
House$1,599,000
$7,563/yr taxListing Courtesy of ROYAL LEPAGE SIGNATURE REALTY

UPPER - 190 NORTHWOOD DRIVE, Toronto (Newtonbrook East)
House$3,700/mo
Listing Courtesy of Avenue Group Realty Brokerage Inc.

BSMT - 16 FLEMING DRIVE, Toronto (Bayview Woods-Steeles)
House$2,150/mo
Listing Courtesy of PROPERTY.CA INC.

10 WHITELAW COURT, Markham (Grandview)
House$2,798,000
$16,337/yr taxListing Courtesy of HARVEY KALLES REAL ESTATE LTD.

18 ANETA CIRCLE, Toronto (Newtonbrook East)
House$4,180,000
$23,399/yr taxListing Courtesy of REAL ONE REALTY INC.
Similar Homes ?Similar Homes — Search CriteriaSearch Radius5 kmPrice Range±5%Match Home TypeYesMatch BedroomsYes

200 WILFRED AVENUE, Toronto (Willowdale East)
House$1,990,000
$15,398/yr taxListing Courtesy of JDL REALTY INC.

6 BANNATYNE DRIVE, Toronto (St. Andrew-Windfields)
House$1,995,000
$14,433/yr taxListing Courtesy of RE/MAX REALTRON BARRY COHEN HOMES INC.

192 PARKVIEW AVENUE, Toronto (Willowdale East)
House$1,998,000
$10,912/yr taxListing Courtesy of HOMELIFE/FUTURE REALTY INC.

3 BLITHFIELD AVENUE, Toronto (Bayview Village)
House$1,999,900
$10,467/yr taxListing Courtesy of Toronto Real Estate Realty Plus Inc

9 MUIRKIRK ROAD, Toronto (Willowdale West)
House$1,999,900
$7,560/yr taxListing Courtesy of REALTY ASSOCIATES INC.

9 TEMAGAMI COURT, Toronto (Newtonbrook East)
House$1,938,000
$10,067/yr taxListing Courtesy of REAL BROKER ONTARIO LTD.

1 FLAX FIELD LANE, Toronto (Willowdale West)
Row / Townhouse$1,919,000
$14,554/yr taxListing Courtesy of ROYAL LEPAGE SIGNATURE REALTY

50 SKYVIEW CRESCENT, Toronto (Henry Farm)
House$1,899,999
$9,607/yr taxListing Courtesy of KELLER WILLIAMS REALTY CENTRES

48 LAMBERT ROAD, Markham (Thornlea)
House$1,895,000
$9,069/yr taxListing Courtesy of RE/MAX HALLMARK REALTY LTD.
Similar Properties ?Active Comparables — Search CriteriaSearch Radius2 kmPrice Range±5%Match Home TypeYesMatch BedroomsYes
Sold Comparables
Access to sold property data requires a registered and verified account with TRREB DDF integration.
Coming SoonRented Comparables
Access to rented property data requires a registered and verified account with TRREB DDF integration.
Coming SoonBook a Viewing
298 NEWTON DRIVE, Toronto (Newtonbrook East), Ontario, M2M2P8

