2935 BASELINE ROAD, Clarence-Rockland, Ontario, K0A3N0
MLS: X12825906 | House (Freehold)
$1,199,900

















































Property Description
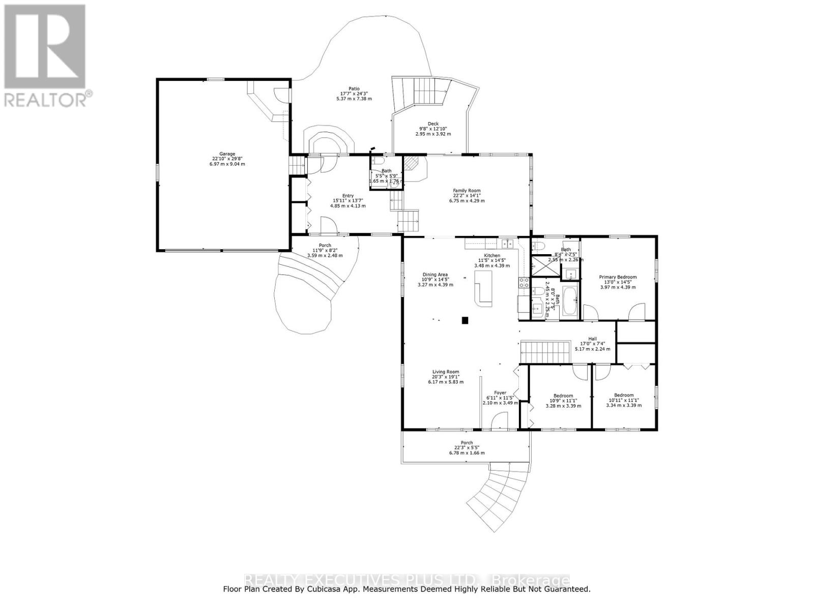
This immaculate brick bungalow offers 3+2 bedrooms and 3+1 bathrooms, along with an oversized double attached garage featuring 60-amp service, full insulation, and convenient inside entry. The open-concept main level is bright and filled with natural light, showcasing new custom bathrooms with travertine and tile, granite countertops, upgraded trim, and hardwood and ceramic flooring throughout. The spacious primary bedroom includes a private ensuite. Additional features include central A/C, central vacuum and a wood-burning stove. The fully finished lower level provides generous living space and abundant storage, including cold storage and a cedar closet. The home is equipped with fibre optic internet, UV water softener system, two wells, GenerLink hookup, new decks, and a marine battery backup for the sump pump. A BRAND NEW SEPTIC SYSTEM is being installed in 2026 with permits, conforming to a five-bedroom home, offering long-term peace of mind. Equestrian facilities include a hemlock and steel constructed stable with insulated walls and poured concrete floors, 60-amp service, four box stalls with cushioned mats, heated tack room with running water, and feed room. Pastures are fully fenced with electro-braid fencing and eight horse-safe Behlen Ranch gates, plus two yard hydrants for on-demand water. The property also features an oversized sand ring with compacted sand and clay base, run-in shelter with lights and outlets, sacrifice paddock, and three separate pastures. Additional outbuildings include a detached steel utility garage and a sugar shack/machine shed with 30-amp service, automatic garage door opener, steel roof, wood stove, and maple syrup evaporator.A rare opportunity offering privacy, functionality, and exceptional equestrian infrastructure. Book your private showing today. (id:64974)
Quick Facts
- Property Type: House (Freehold)
- Style: Bungalow
- Bedrooms: 5 (3 above, 2 below)
- Bathrooms: 4 (1 half)
- Ownership: Freehold
- Attached: No
- Fireplaces: 1
- Parking: 12 spaces (Attached Garage, Garage, Inside Entry)
- Frontage: 560 ft (170.7 m)
Costs
- Annual Taxes: $6,824.00 (2025)
Listing Provided by: REALTY EXECUTIVES PLUS LTD.
Board: Ottawa Real Estate Board
Data provided via CREA DDF®.
Detailed Features
Interior & Systems
- Heating: Forced air, Oil
- Cooling: Central air conditioning
- Basement: Finished, N/A
- Appliances: Washer, Water softener, Dishwasher, Stove, Dryer, Microwave, Freezer, Water Treatment, Hood Fan, Blinds, Garage door opener, Garage door opener remote(s), Water Heater, Two Refrigerators
- Flooring: Hardwood, Laminate
- Security: Alarm system
- Fireplace Features: Woodstove
Exterior & Construction
- Style: Bungalow
- Exterior: Brick, Vinyl siding
- Foundation: Poured Concrete
- Sewer: Septic System
- Water: Dug Well
Lot & Land
- Frontage: 560 ft (170.7 m)
- Features: Wooded area
- Zoning: Rural Residential
Community & Neighbourhood
- Community: School Bus
- Neighbourhood: 607 - Clarence/Rockland Twp
Room Details (11 rooms)
Listing Information
Listing History
Buy/Sell/Terminated/Expired listing history for 2935 BASELINE ROAD, Clarence-Rockland, Ontario, K0A3N0
Location & Neighborhood
🚗 Travel times
Neighborhood Walkability
Mortgage & Cost Calculators
Similar Homes
Similar Properties
No rental comparables found in this area.
Sold Comparables
Access to sold property data requires a registered and verified account with TRREB DDF integration.
Coming SoonRented Comparables
Access to rented property data requires a registered and verified account with TRREB DDF integration.
Coming Soon







