2931 RAMSAY CON 3C ROAD, Mississippi Mills, Ontario, K0A1A0
MLS: X12942532 | House (Freehold)
$1,149,900









































Property Description
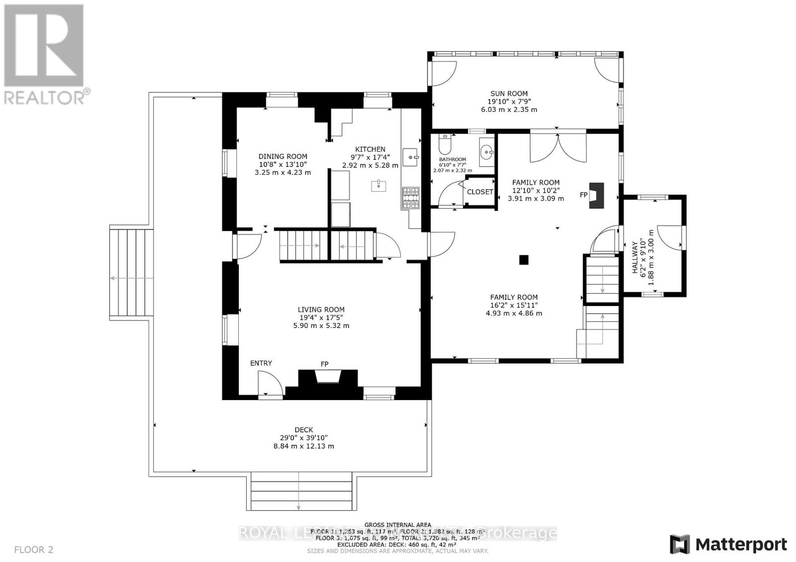
ONE OF A KIND WITH INSTANT CURB APPEAL SET ON 94 ACRES!! Originally an 1800s farmhouse which was dismantled & meticulously rebuilt + an addition in the 1990s. You will be impressed with the charm and character plus the quality upgrades. The handy mudroom/foyer with tile floor is the ideal place to greet family & friends. Recently updated kitchen is complete with quartz counters and tile floors + a sunny window overlooking your backyard. Both the dining room & living room have wide plank floors & beamed ceilings. From the living room you have direct access to your wrap around veranda. The perfect place to have your morning coffee & listen to the birds!! The family room showcases an exposed log wall, wide plank floors & a cozy wood stove. From the family room you have direct access to your sun room offering a peaceful relaxing view overlooking your back fields. A handy two-piece bathroom is conveniently located on the main floor. Upstairs you will find three spacious bedrooms with pine floors The primary bedroom offers a walk-in closet. With Fiber Internet & the office area it is an ideal place for those that work from home. Modern 5-piece bathroom with double sinks, a soaker tub & a separate shower stall. Excellent out bldgs including two separate detached garages both offering extra storage space & room for your special projects & hobbies. Oh and don't forget the fresh eggs from your own chicken coop!! The acreage offers the perfect combination of open fields, forest and even a pond next to the house! You will have year-round enjoyment with hiking & 4-wheeling in the summer, cross-country skiing, snowshoeing & snowmobiling in the winter. Recent upgrades roof, furnace and wood stove 2016, windows 2018, two doors 2019, kitchen and both bathrooms 2021, veranda 2023. Utilities hydro approx $190/mo, propane approx $190/mo, wood 3 chords/yr. Located on a peaceful country road with easy access. 15 min to Almonte, 1 hr to downtown Ottawa, min to Clayton General Store. (id:64974)
Quick Facts
- Property Type: House (Freehold)
- Bedrooms: 3 (3 above)
- Bathrooms: 2 (1 half)
- Ownership: Freehold
- Attached: No
- Fireplaces: 1
- Parking: 8.0 spaces (Detached Garage, Garage)
- Frontage: 1,402 ft (427.2 m)
Costs
- Annual Taxes: $2,938.31
Listing Provided by: ROYAL LEPAGE TEAM REALTY
Board: Ottawa Real Estate Board
Data provided via CREA DDF®.
Detailed Features
Interior & Systems
- Heating: Forced air, Propane
- Cooling: None
- Basement: Unfinished, Full
- Appliances: Washer, Refrigerator, Dishwasher, Stove, Dryer, Microwave, Freezer, Water Treatment, Hood Fan, Window Coverings, Garage door opener
- Flooring: Tile
- Utilities: Electricity
- Fireplace Features: Woodstove
Exterior & Construction
- Exterior: Wood
- Foundation: Stone, Poured Concrete
- Sewer: Septic System
Lot & Land
- Frontage: 1,402 ft (427.2 m)
- Features: Wooded area, Rolling, Open space, Carpet Free
Community & Neighbourhood
- Neighbourhood: 912 - Mississippi Mills (Ramsay) Twp
Room Details (13 rooms)
Listing Information
Listing History
MLS listing activity for 2931 RAMSAY CON 3C ROAD, Mississippi Mills, Ontario, K0A1A0 — dates reflect when changes were recorded in the DDF
🚗 Travel times
Neighborhood Walkability
Mortgage & Cost Calculators
Similar Homes ?Similar Homes — Search CriteriaSearch Radius5 kmPrice Range±5%Match Home TypeYesMatch BedroomsYes

1383 FARMSTEAD DRIVE, Milton (FO Ford)
House$1,149,900
$4,047/yr taxListing Courtesy of ROYAL LEPAGE STATE REALTY

1383 FARMSTEAD Drive, Milton
House$1,149,900
$4,047/yr taxListing Courtesy of Royal LePage State Realty Inc.

3411-B FOUR ELMS COURT, Plympton-Wyoming
House$1,149,900
Listing Courtesy of Coldwell Banker Southwest Realty

82 WATERVILLE WAY, Caledon
House$1,149,900
$5,977/yr taxListing Courtesy of RE/MAX REALTY SERVICES INC.

15 MCLEOD Court, Kitchener
House$1,149,900
$6,268/yr taxListing Courtesy of CONDO CULTURE, BROKERAGE

149 WILLOWBROOK Drive, Welland
House$1,149,900
Listing Courtesy of Real Broker Ontario Ltd.

10159 MEADOWLILLY CRESCENT, Lambton Shores (Grand Bend)
House$1,149,900
$4,668/yr taxListing Courtesy of CENTURY 21 FIRST CANADIAN CORP

1011 - 195 MCCAUL STREET, Toronto (Kensington-Chinatown)
Condo - Apartment$1,149,900
$7,160/yr taxListing Courtesy of BRAD J. LAMB REALTY 2016 INC.

89 EUCLID AVENUE, Toronto (Highland Creek)
House$1,149,900
$4,653/yr taxListing Courtesy of REAL ESTATE ADVISORS INC.

481 ISLANDVIEW LANE, Midland
House$1,149,900
$10,152/yr taxListing Courtesy of FARIS TEAM REAL ESTATE BROKERAGE

6 ARDWOOD Place, Kitchener
House$1,149,900
$6,037/yr taxListing Courtesy of RE/MAX Twin City Realty Inc.

263 FOXBOROUGH PLACE, Thames Centre (Thorndale)
House$1,149,900
Listing Courtesy of CENTURY 21 FIRST CANADIAN CORP

14 MILLS LANE, Niagara-on-the-Lake (St. Davids)
Condo - Row / Townhouse$1,149,900
$5,924/yr taxListing Courtesy of RE/MAX NIAGARA REALTY LTD, BROKERAGE

149 WILLOWBROOK DRIVE, Welland (West Welland)
House$1,149,900
Listing Courtesy of REAL BROKER ONTARIO LTD.

6 ARDWOOD PLACE, Kitchener
House$1,149,900
$6,037/yr taxListing Courtesy of RE/MAX TWIN CITY REALTY INC.
Similar Properties ?Active Comparables — Search CriteriaSearch Radius2 kmPrice Range±5%Match Home TypeYesMatch BedroomsYes

1383 FARMSTEAD DRIVE, Milton (FO Ford)
House$1,149,900
$4,047/yr taxListing Courtesy of ROYAL LEPAGE STATE REALTY

1383 FARMSTEAD Drive, Milton
House$1,149,900
$4,047/yr taxListing Courtesy of Royal LePage State Realty Inc.

3411-B FOUR ELMS COURT, Plympton-Wyoming
House$1,149,900
Listing Courtesy of Coldwell Banker Southwest Realty

82 WATERVILLE WAY, Caledon
House$1,149,900
$5,977/yr taxListing Courtesy of RE/MAX REALTY SERVICES INC.

15 MCLEOD Court, Kitchener
House$1,149,900
$6,268/yr taxListing Courtesy of CONDO CULTURE, BROKERAGE

149 WILLOWBROOK Drive, Welland
House$1,149,900
Listing Courtesy of Real Broker Ontario Ltd.

10159 MEADOWLILLY CRESCENT, Lambton Shores (Grand Bend)
House$1,149,900
$4,668/yr taxListing Courtesy of CENTURY 21 FIRST CANADIAN CORP

1011 - 195 MCCAUL STREET, Toronto (Kensington-Chinatown)
Condo - Apartment$1,149,900
$7,160/yr taxListing Courtesy of BRAD J. LAMB REALTY 2016 INC.

89 EUCLID AVENUE, Toronto (Highland Creek)
House$1,149,900
$4,653/yr taxListing Courtesy of REAL ESTATE ADVISORS INC.

481 ISLANDVIEW LANE, Midland
House$1,149,900
$10,152/yr taxListing Courtesy of FARIS TEAM REAL ESTATE BROKERAGE

6 ARDWOOD Place, Kitchener
House$1,149,900
$6,037/yr taxListing Courtesy of RE/MAX Twin City Realty Inc.

263 FOXBOROUGH PLACE, Thames Centre (Thorndale)
House$1,149,900
Listing Courtesy of CENTURY 21 FIRST CANADIAN CORP

14 MILLS LANE, Niagara-on-the-Lake (St. Davids)
Condo - Row / Townhouse$1,149,900
$5,924/yr taxListing Courtesy of RE/MAX NIAGARA REALTY LTD, BROKERAGE

149 WILLOWBROOK DRIVE, Welland (West Welland)
House$1,149,900
Listing Courtesy of REAL BROKER ONTARIO LTD.

6 ARDWOOD PLACE, Kitchener
House$1,149,900
$6,037/yr taxListing Courtesy of RE/MAX TWIN CITY REALTY INC.

209860 HIGHWAY 26, Blue Mountains
House$20,000/mo
Listing Courtesy of Engel & Volkers Toronto Central

26 THOMAS DRIVE, Collingwood
Row / Townhouse$15,000/mo
Listing Courtesy of Engel & Volkers Toronto Central

PH02 - 10 NAVY WHARF COURT, Toronto (Waterfront Communities)
Condo - Apartment$12,950/mo
Listing Courtesy of HOMELIFE/YORKLAND REAL ESTATE LTD.

PH-1 - 759 QUEEN STREET E, Toronto (South Riverdale)
Condo - Apartment$8,500/mo
Listing Courtesy of CHESTNUT PARK REAL ESTATE LIMITED

314 - 29 QUEENS QUAY E, Toronto (Waterfront Communities)
Condo - Apartment$7,500/mo
Listing Courtesy of RIGHT AT HOME REALTY

LANEWAY - 21 FARNHAM AVENUE, Toronto (Yonge-St. Clair)
House$7,295/mo
Listing Courtesy of REAL BROKER ONTARIO LTD.

3304 - 35 PARLIAMENT STREET, Toronto (Waterfront Communities)
Condo - Apartment$7,000/mo
Listing Courtesy of ROYAL LEPAGE TERREQUITY REALTY

3204 - 35 PARLIAMENT STREET, Toronto (Waterfront Communities)
Condo - Apartment$7,000/mo
Listing Courtesy of RE/MAX ESCARPMENT REALTY INC.

401 - 3 SOUTHVALE DRIVE, Toronto (Leaside)
Condo - Apartment$6,700/mo
Listing Courtesy of BRIDLEPATH PROGRESSIVE REAL ESTATE INC.

403 - 664 SPADINA AVENUE, Toronto (University)
Condo - Apartment$6,695/mo
Listing Courtesy of ROYAL LEPAGE SIGNATURE REALTY

705 - 278 BLOOR STREET E, Toronto (Rosedale-Moore Park)
Condo - Apartment$6,500/mo
Listing Courtesy of LANDLORD REALTY INC.

502 - 1414 BAYVIEW AVENUE, Toronto (Mount Pleasant East)
Condo - Apartment$6,500/mo
Listing Courtesy of ROYAL LEPAGE REAL ESTATE SERVICES LTD.

PH102 - 38 ANNIE CRAIG DRIVE, Toronto (Mimico)
Condo - Apartment$6,500/mo
Listing Courtesy of SUTTON GROUP-ADMIRAL REALTY INC.

4201 - 80 JOHN STREET, Toronto (Weston)
Condo - Apartment$6,500/mo
Listing Courtesy of ROYAL LEPAGE SIGNATURE REALTY

3503 - 1240 CUMMINGS AVENUE, Ottawa
Condo - Apartment$6,400/mo
Listing Courtesy of DIGI BROKERAGE
Sold Comparables
Access to sold property data requires a registered and verified account with TRREB DDF integration.
Coming SoonRented Comparables
Access to rented property data requires a registered and verified account with TRREB DDF integration.
Coming SoonBook a Viewing
2931 RAMSAY CON 3C ROAD, Mississippi Mills, Ontario, K0A1A0
