29 ALBERT STREET W, Thorold (Thorold Downtown), Ontario, L2V2G2
MLS: X12525090 | Retail
$599,990






















Property Description
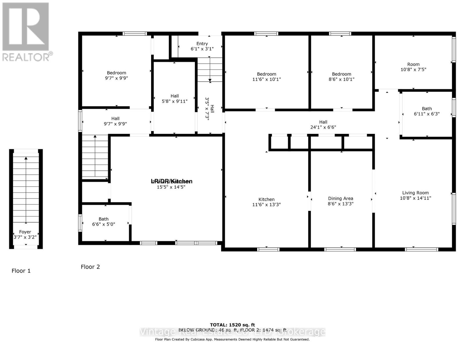
Two-storey Mixed-Use C2 Zoning property in d/t Thorold, with a driveway and separate garage across from the Rexall/Foodland plaza. Corner of Pine/Albert. *$19k in Updated electrical/ESA (Aug 2025), incl separate meters for 3 units.* New hot water tank (owned)* Main floor (1478 sq ft) Commercial tenant has re-signed for another 5 years and paid $26,291 in 2025. They pay their own Electricity + 50% of gas/water Sept-May and 25% May-Sept. 2nd level has 2 unfinished/unoccupied apartments: 1 BR and 3 BR, with separate entrances (1520 sq ft total as per floor plans). Once completed apartments market rent potential: $1200/$1800. Close to public transit, parking, Hwy 58, shopping and the commercial renewal on Front St. (id:64974)
Quick Facts
- Property Type: Retail
- Bedrooms: None
- Bathrooms: None
- Living Area: 2,573 sq ft (239.0 m²)
- Parking: 1 space
- Frontage: 35 ft (10.7 m)
Costs
- Annual Taxes: $5,789.00
Listing Provided by: Vintage Real Estate Co. LTD
Board: Niagara Association of REALTORS®
Data provided via CREA DDF®.
Detailed Features
Interior & Systems
- Heating: Forced air, Natural gas, Radiator
- Cooling: Partially air conditioned
Exterior & Construction
- Water: Municipal water
Lot & Land
- Frontage: 35 ft (10.7 m)
- Features: Irregular lot size
- Zoning: C2
Community & Neighbourhood
- Neighbourhood: 557 - Thorold Downtown
Listing Information
Listing History
Buy/Sell/Terminated/Expired listing history for 29 ALBERT STREET W, Thorold (Thorold Downtown), Ontario, L2V2G2
Location & Neighborhood
🚗 Travel times
Neighborhood Walkability
Mortgage & Cost Calculators
Nearby Homes (Within 2km)
Similar Homes
Similar Properties
No rental comparables found in this area.
Sold Comparables
Access to sold property data requires a registered and verified account with TRREB DDF integration.
Coming SoonRented Comparables
Access to rented property data requires a registered and verified account with TRREB DDF integration.
Coming Soon





























