284 VICTORIA AVENUE N, Kawartha Lakes (Lindsay), Ontario, K9V6A8
MLS: X12829796 | House (Freehold)
$699,900



















































Property Description
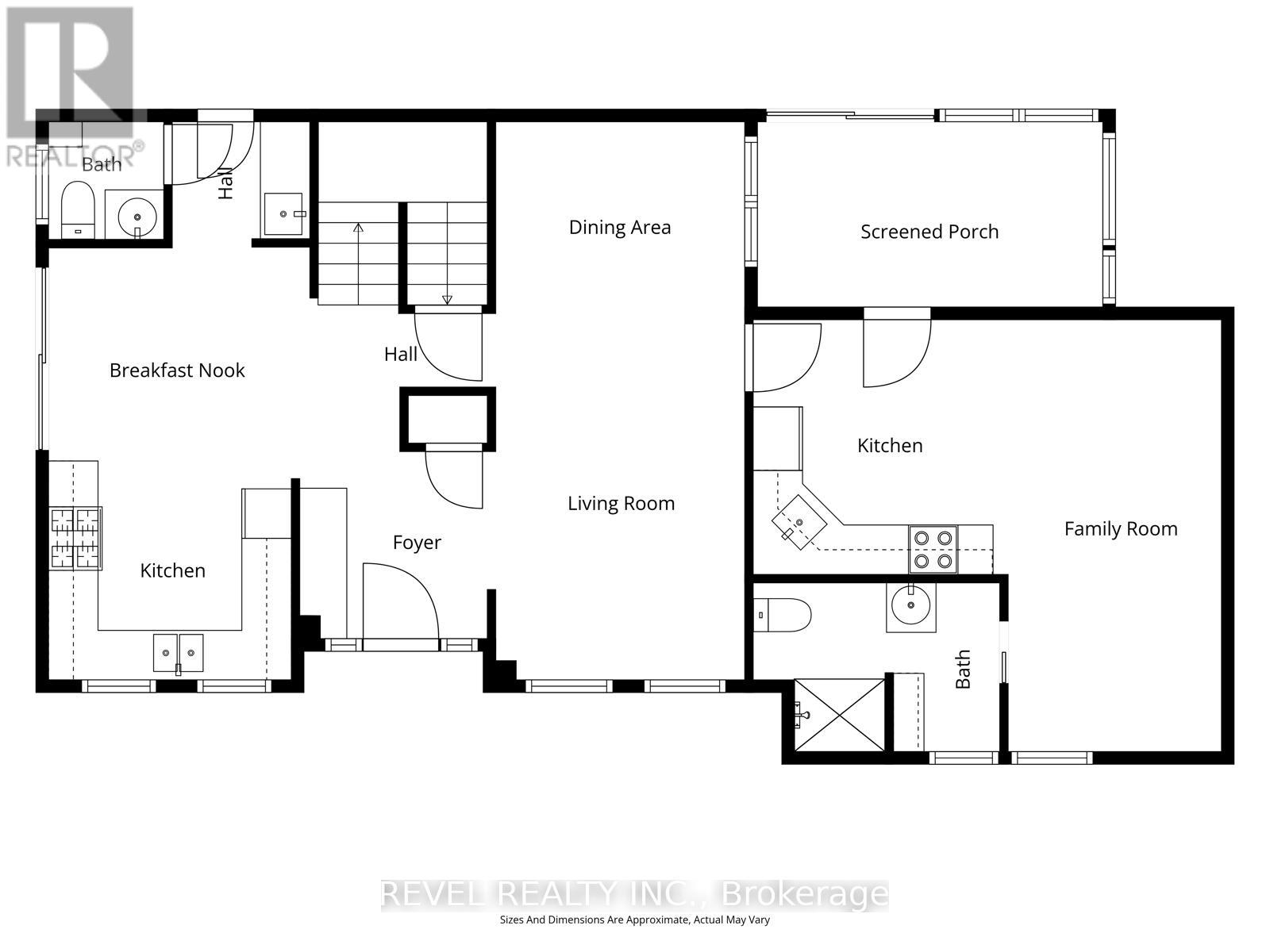
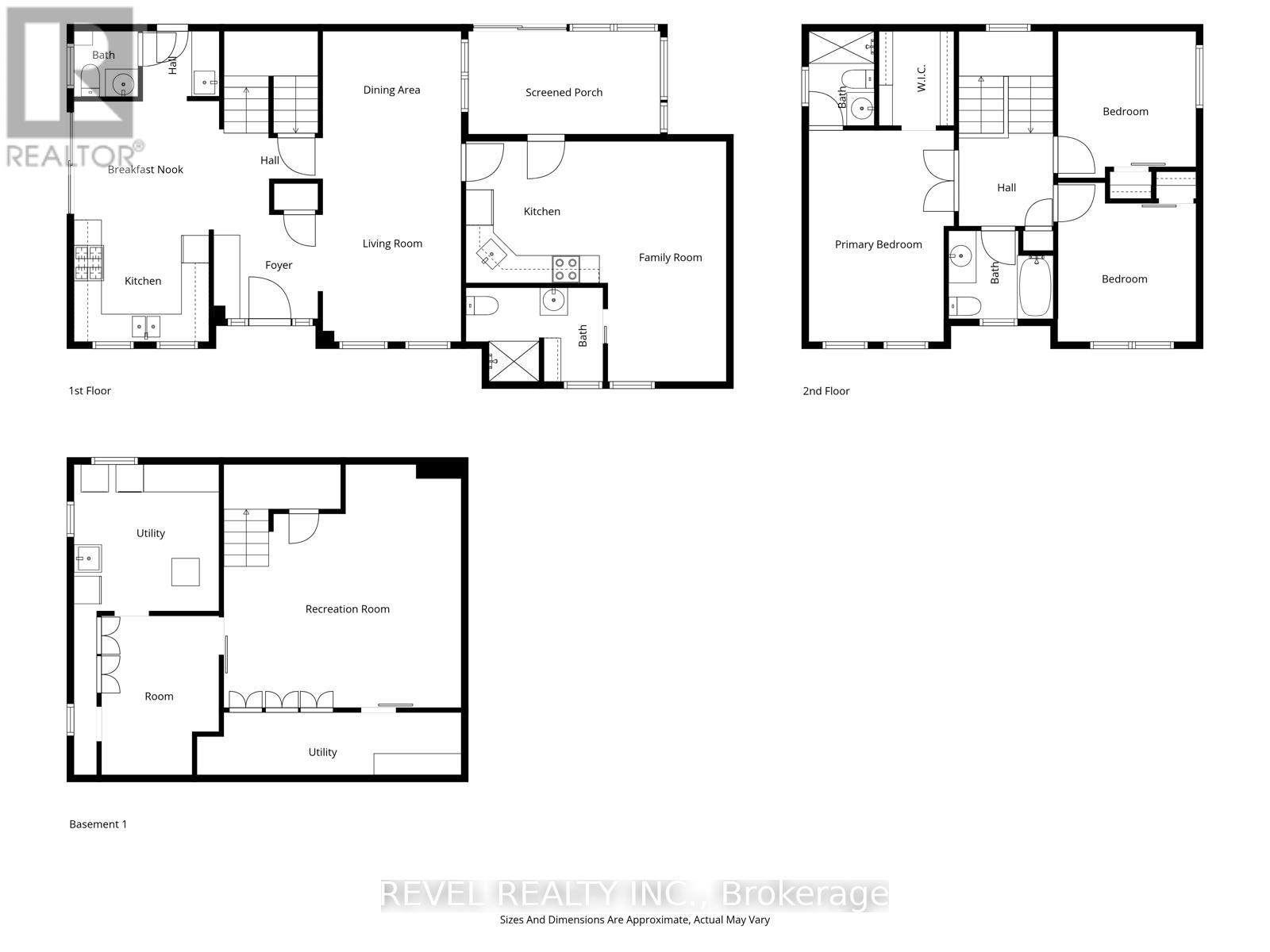
Nicely Updated Northward 3 Bedroom, 2 Storey Family Home With MAIN FLOOR Professionally Finished STUDIO / IN-LAW APARTMENT on a spacious corner lot centrally located in Lindsay, close to schools, parks & amenities! Numerous Updates include Gorgeous Hardwood Floors and Hardwood Stairs, A 3-Season Sunroom with Entrance into the Apartment. Lots of Versatility in this spacious home to suit all your Family's Needs; Use this finished Main Floor Space as either an awesome Sunken Family Room or Main Floor Primary Bedroom Suite or Guest Bedroom! This Home Features Newer Windows, Roof'23, Soffits, Eaves & Upgraded Plank Vinyl Siding'24, Furnace'19, Self-Contained Apartment that was finished (with permits) in the Double Car Garage & includes a Kitchen, Family Room/ Bedroom Area, 3pc Bathroom With Walk-in Shower, Storage Area & Separate Entrance. (See Att'd Floor Plans). This Bright & Sunny Home is great for entertaining with the combined Living & Dining Room, the Spacious Kitchen with movable Island. Bonus Pantry/Coffee Bar that is conveniently located in the hallway that leads to the 2pc Bath & Rear Door to the backyard. This well-appointed Kitchen also has a Sliding Patio Door to the Sideyard Deck with Gazebo allowing for comfortable Alfresco Dining in the warmer weather. Or enjoy the Sunshine in the Cozy 3 Season Enclosed Porch. The 2nd Floor is graced with 3 spacious Bedrooms, upgraded Barn Closet Doors, Newer Berber Carpet throughout & Updated 4pc Bath. The Primary Bedroom has a 3pc Ensuite Bath & Huge Walk-in Closet. There is also Additional Family Space in the Finished Basement allowing for a comfy Rec Room for family games & movie night, with built-in closets & lots of storage space, PLUS a separate office space or craft/playroom with large closets. Finally the Utility Room with Laundry, more cabinets, Laundry Sink & Sump Pump .Lots of Parking to accommodate Tenants. This property allows for several private outdoor patio areas. Great Family Home in a Great Community! (id:64974)
Quick Facts
- Property Type: House (Freehold)
- Bedrooms: 4 (4 above)
- Bathrooms: 4 (1 half)
- Ownership: Freehold
- Attached: No
- Parking: 3 spaces (Attached Garage, Garage)
- Frontage: 54 ft (16.5 m)
Costs
- Annual Taxes: $3,734.72 (2025)
Listing Provided by: REVEL REALTY INC.
Board: Central Lakes Association of REALTORS®
Data provided via CREA DDF®.
Detailed Features
Interior & Systems
- Heating: Forced air, Natural gas
- Cooling: Central air conditioning
- Basement: Finished, Full
- Appliances: Washer, Water meter, Gas stove(s), Dishwasher, Dryer, Hood Fan, Window Coverings, Water Heater, Two Refrigerators
- Flooring: Concrete, Hardwood, Laminate, Carpeted, Vinyl
- Utilities: Sewer, Electricity, Cable
Exterior & Construction
- Exterior: Vinyl siding, Brick Facing
- Foundation: Poured Concrete
- Fencing: Partially fenced
- Sewer: Sanitary sewer
- Water: Municipal water
Lot & Land
- Frontage: 54 ft (16.5 m)
- Features: Flat site, Gazebo, Sump Pump, In-Law Suite
Community & Neighbourhood
- Community: Community Centre
- Building: Canopy
- Neighbourhood: Lindsay
Room Details (16 rooms)
Listing Information
Listing History
Buy/Sell/Terminated/Expired listing history for 284 VICTORIA AVENUE N, Kawartha Lakes (Lindsay), Ontario, K9V6A8
Location & Neighborhood
🚗 Travel times
Neighborhood Walkability
Mortgage & Cost Calculators
Nearby Homes (Within 2km)
Similar Homes
Similar Properties
No rental comparables found in this area.
Sold Comparables
Access to sold property data requires a registered and verified account with TRREB DDF integration.
Coming SoonRented Comparables
Access to rented property data requires a registered and verified account with TRREB DDF integration.
Coming Soon
























