282 RIDGE STREET, Saugeen Shores, Ontario, N0H2C3
MLS: X11822711 | House (Freehold)
$999,900



Property Description
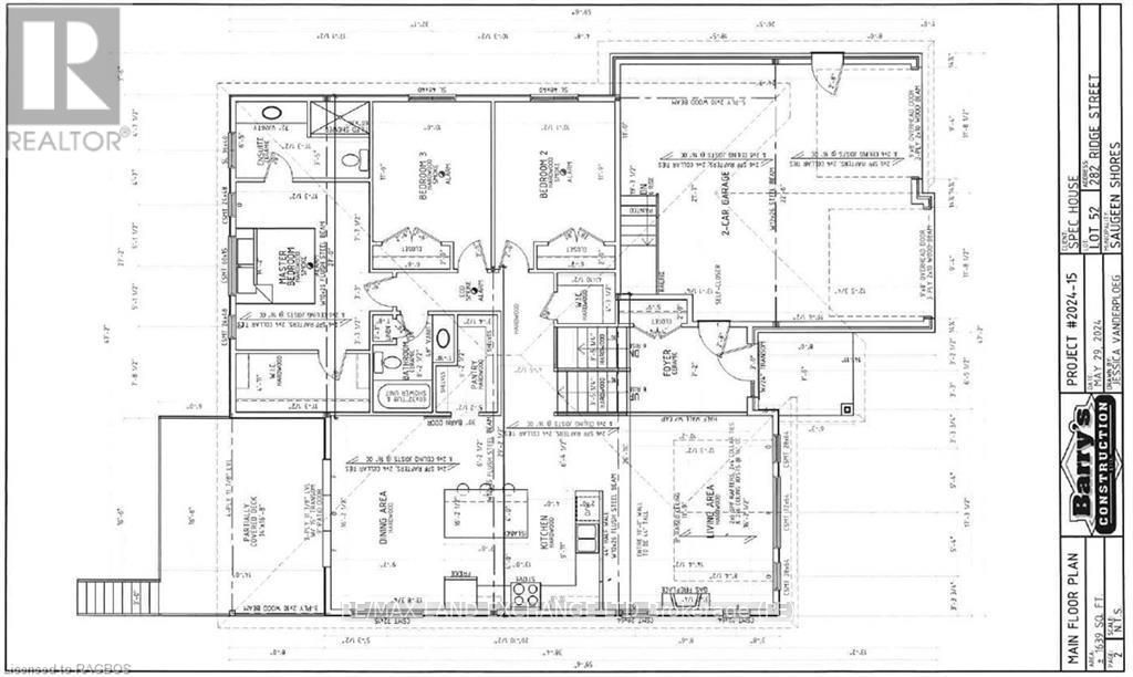
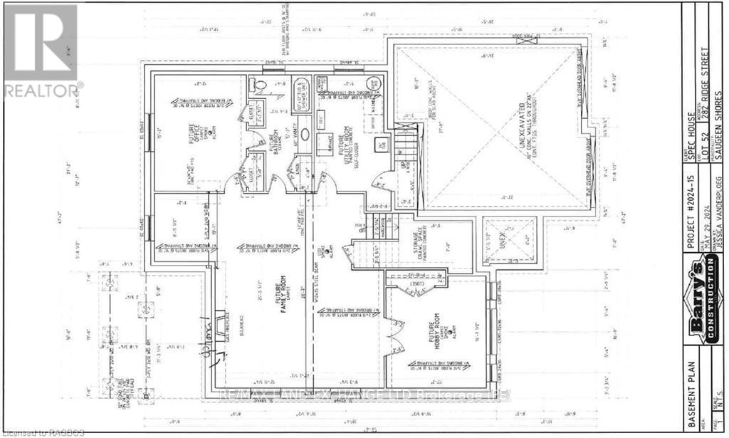
The framing is complete at 282 Ridge Street, Port Elgin for this 1639 sqft home with 3 bedrooms and 2 full baths on the main floor; featuring hardwood and ceramic flooring, walk-in kitchen pantry, tiled shower in the ensuite bath, partially covered rear deck 14 x 16'8, 9 foot ceilings and more. The basement has a separate entrance from the 2 car garage and features a large family room, 2 more bedrooms and full bath. Additional features included sodded yard, concrete drive, gas fireplace, central air, and interior colour selections for those that act early. HST is included in the asking price provided the Buyer qualifies for the rebate and assigns it to the Builder on closing. Prices subject to change without notice. (id:64974)
Quick Facts
- Property Type: House (Freehold)
- Style: Raised bungalow
- Bedrooms: 5 (3 above, 2 below)
- Bathrooms: 3
- Ownership: Freehold
- Attached: No
- Fireplaces: 1
- Parking: 4 spaces (Attached Garage, Garage)
- Frontage: 56 ft (17.2 m)
Listing Provided by: RE/MAX Land Exchange Ltd.
Board: OnePoint Association of REALTORS®
Data provided via CREA DDF®.
Detailed Features
Interior & Systems
- Heating: Forced air, Natural gas
- Cooling: Central air conditioning, Air exchanger
- Basement: Separate entrance, Walk-up, N/A, N/A
- Appliances: Garage door opener, Water Heater - Tankless
- Flooring: Tile, Hardwood
- Utilities: Sewer, Electricity, Cable, Wireless
Exterior & Construction
- Style: Raised bungalow
- Exterior: Stone, Vinyl siding
- Foundation: Poured Concrete
- Sewer: Sanitary sewer
- Water: Municipal water
Lot & Land
- Frontage: 56 ft (17.2 m)
- Features: Flat site, Sump Pump
- Zoning: R1-84
Community & Neighbourhood
- Neighbourhood: Saugeen Shores
Room Details (11 rooms)
Listing Information
Listing History
Buy/Sell/Terminated/Expired listing history for 282 RIDGE STREET, Saugeen Shores, Ontario, N0H2C3
Location & Neighborhood
🚗 Travel times
Neighborhood Walkability
Mortgage & Cost Calculators
Similar Homes
Similar Properties
No rental comparables found in this area.
Sold Comparables
Access to sold property data requires a registered and verified account with TRREB DDF integration.
Coming SoonRented Comparables
Access to rented property data requires a registered and verified account with TRREB DDF integration.
Coming Soon
























