282 GROSVENOR STREET S, Saugeen Shores, Ontario, N0H2L0
MLS: X10848677 | House (Freehold)
$1,129,900











Property Description
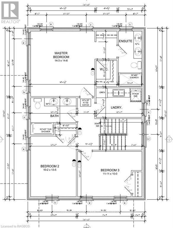
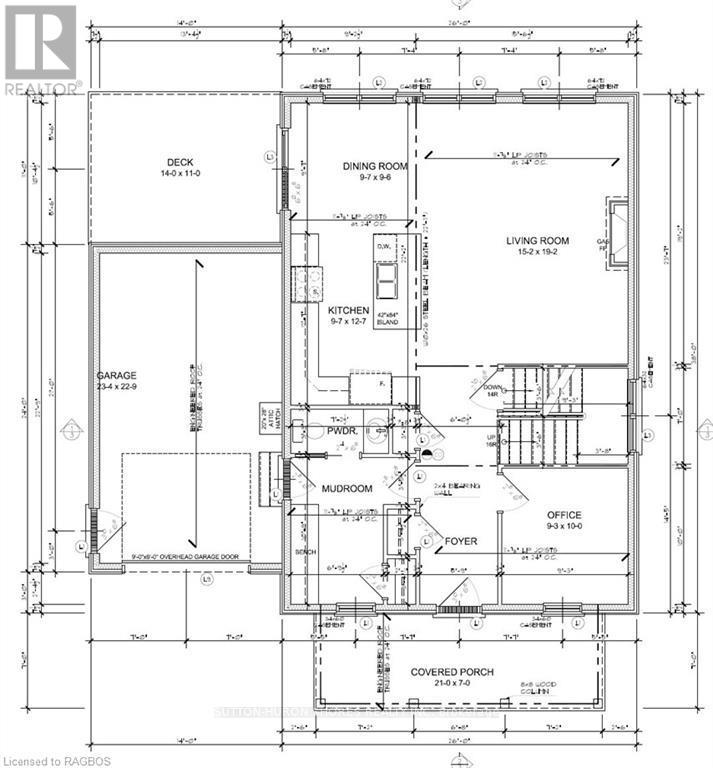
Discover the perfect custom two storey just three blocks away from the beach in Southampton, ON! This net zero certified home offers a main floor bedroom or office, spacious mudroom, a powder room, as well as an amazing great room complete with gas fireplace. Upstairs you have the primary suite/en suite, two more bedrooms, full bathroom and conveniently located laundry room! You have the option to finish the basement (extra cost) if more space is needed. The home features a charming covered front porch and is located on a quiet cul-de-sac. The lot is uniquely situated across from a quiet and private water treatment plant, ensuring no neighbors across the road. Trees and a trail will be added in front for a pleasant view. Dennison Homes Inc., a reputable local custom builder, could start Spring 2026. With their own Interior Design Team, amazing Carpenters and a Custom Cabinet Shop they can make all of your dreams come true! Don't miss out on this opportunity to build your dream home in a fantastic location! (id:64974)
Quick Facts
- Property Type: House (Freehold)
- Bedrooms: 4 (4 above)
- Bathrooms: 3 (1 half)
- Ownership: Freehold
- Attached: No
- Fireplaces: 1
- Parking: 5 spaces (Attached Garage, Garage)
- Frontage: 50 ft (15.2 m)
Costs
- Annual Taxes: $1,429.60 (2024)
Listing Provided by: Sutton-Huron Shores Realty Inc.
Board: OnePoint Association of REALTORS®
Data provided via CREA DDF®.
Detailed Features
Interior & Systems
- Heating: Forced air, Natural gas
- Cooling: Central air conditioning, Air exchanger, Ventilation system
- Basement: Unfinished, Full
- Appliances: Garage door opener, Water Heater - Tankless, Water Heater
- Utilities: Electricity, Cable, Wireless
Exterior & Construction
- Exterior: Wood
- Foundation: Poured Concrete
- Sewer: Sanitary sewer
- Water: Municipal water
Lot & Land
- Frontage: 50 ft (15.2 m)
- Features: Flat site, Sump Pump
- Zoning: R2
Community & Neighbourhood
- Building: Fireplace(s)
- Neighbourhood: Saugeen Shores
Listing Information
Listing History
Buy/Sell/Terminated/Expired listing history for 282 GROSVENOR STREET S, Saugeen Shores, Ontario, N0H2L0
Location & Neighborhood
🚗 Travel times
Neighborhood Walkability
Mortgage & Cost Calculators
Nearby Homes (Within 2km)
Similar Homes
Similar Properties
No rental comparables found in this area.
Sold Comparables
Access to sold property data requires a registered and verified account with TRREB DDF integration.
Coming SoonRented Comparables
Access to rented property data requires a registered and verified account with TRREB DDF integration.
Coming Soon



















