28 BECKWITH STREET N, Smiths Falls, Ontario, K7A2B3
MLS: X12538728 | Retail
$475,000




Property Description
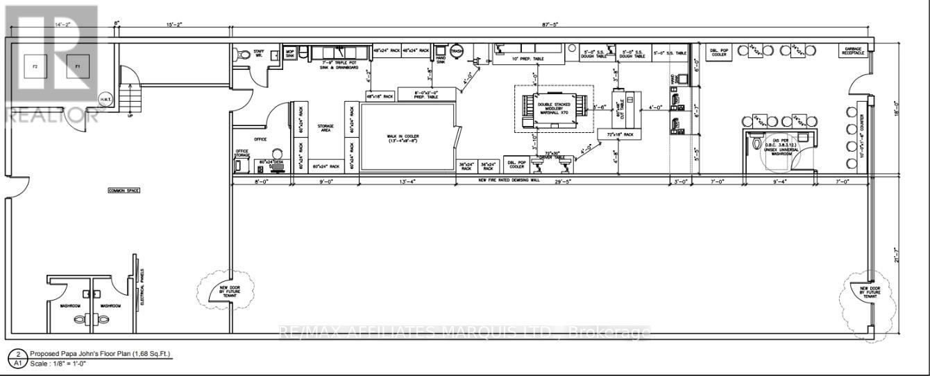
Calling all business owners & investors! This versatile, single-level commercial space offers roughly 5,000 sq ft ready to customize for retail, office, or service-oriented operations. The layout can be easily reconfigured into multiple units to suit your vision, offset expenses, create income streams. With expansive storefront windows, high ceiling height, and excellent street exposure, the building benefits from steady foot & vehicle traffic. Ground-level construction ensures smooth, accessible entry for all customers. Positioned in the heart of the downtown district, the property allows for a broad range of permitted uses and sits among successful shops, restaurants, and services. Up to 100k in City grants available if you qualify. Book today and be ready to open in 2026. 24-hour irrevocable on all offers. (id:64974)
Quick Facts
- Property Type: Retail
- Bedrooms: None
- Bathrooms: None
- Living Area: 4,960 sq ft (460.8 m²)
- Frontage: 42 ft (12.8 m)
Costs
- Annual Taxes: $5,400.00
Listing Provided by: RE/MAX AFFILIATES MARQUIS LTD.
Board: Cornwall & District Real Estate Board
Data provided via CREA DDF®.
Detailed Features
Interior & Systems
- Heating: Forced air, Natural gas
- Cooling: Fully air conditioned
Exterior & Construction
- Water: Municipal water
Lot & Land
- Frontage: 42 ft (12.8 m)
- Zoning: COMMERCIAL
Community & Neighbourhood
- Neighbourhood: 901 - Smiths Falls
Listing Information
Listing History
Buy/Sell/Terminated/Expired listing history for 28 BECKWITH STREET N, Smiths Falls, Ontario, K7A2B3
Location & Neighborhood
🚗 Travel times
Neighborhood Walkability
Mortgage & Cost Calculators
Nearby Homes (Within 2km)
Similar Homes
Similar Properties
No rental comparables found in this area.
Sold Comparables
Access to sold property data requires a registered and verified account with TRREB DDF integration.
Coming SoonRented Comparables
Access to rented property data requires a registered and verified account with TRREB DDF integration.
Coming Soon

























