2770 BRIGHTON ROAD, Oakville (WP Winston Park), Ontario, L6H5T4
MLS: W12318981 | Warehouse
$13,300,000







Property Description
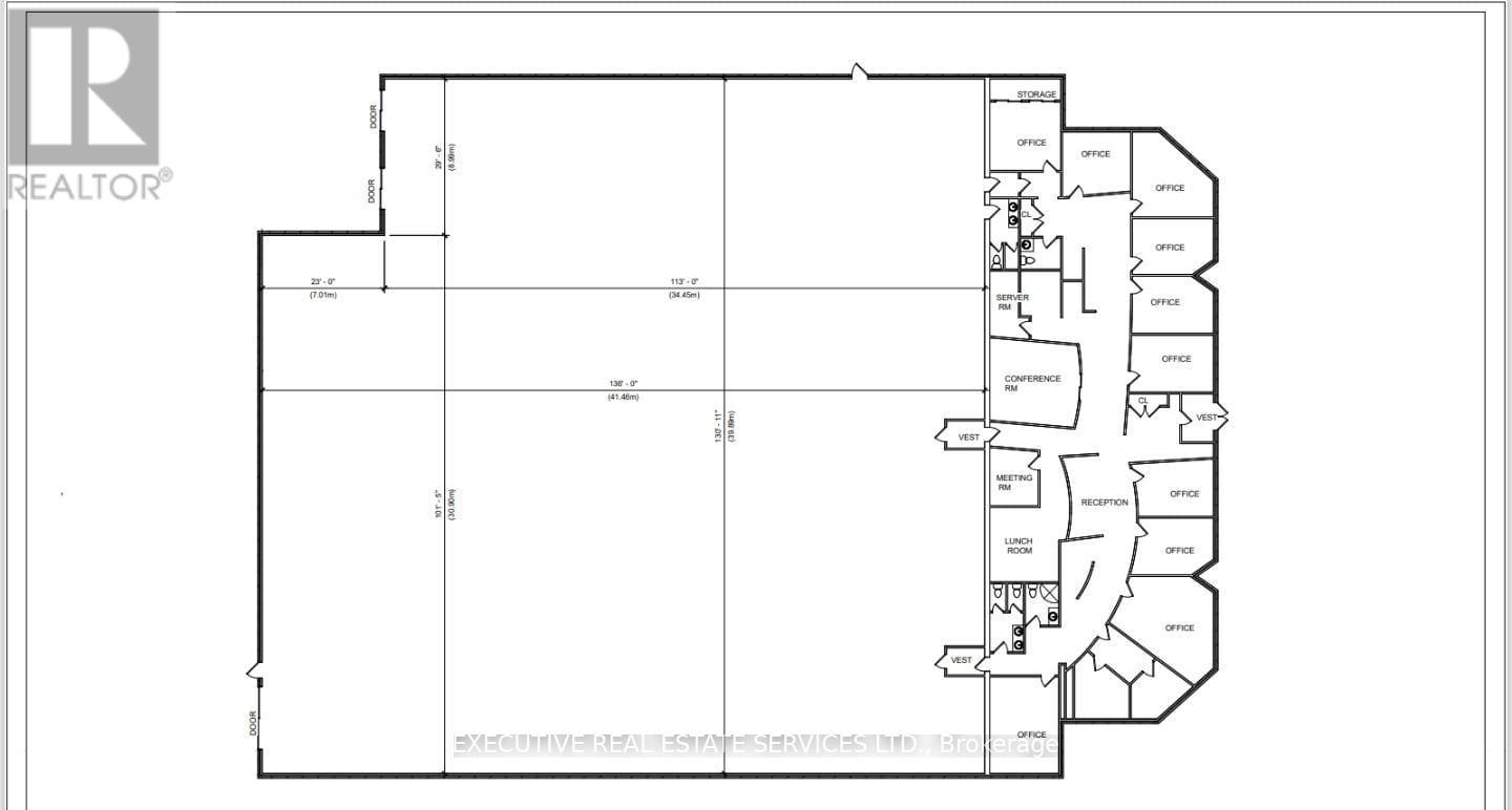
High-Quality Freestanding Building in Oakville's Sought-After Winston Business Park! This well-maintained property features a professionally finished NEW office area (5500 SQFT) and a bright warehouse with white-painted walls and roof deck. Recently upgraded with new skylights throughout the entire building, enhancing natural light. Cameras in the entire building as well. Enjoy two points of site access, a generous shipping apron with a concrete dolly pad, and easy connectivity to QEW, Hwy 403, Hwy 407, public transit, and a wide range of nearby retail amenities. (id:64974)
Quick Facts
- Property Type: Warehouse
- Bedrooms: None
- Bathrooms: 4
- Living Area: 23,664 sq ft (2,198.5 m²)
- Parking: 27 spaces
- Lot Size: 1.3000 acres (0.53 ha)
Costs
- Annual Taxes: $59,957.42
Listing Provided by: EXECUTIVE REAL ESTATE SERVICES LTD.
Board: Toronto Regional Real Estate Board
Data provided via CREA DDF®.
Detailed Features
Interior & Systems
- Heating: Radiant heat
- Cooling: Partially air conditioned
- Appliances: Furniture
Exterior & Construction
- Water: Municipal water
Lot & Land
- Lot Size: 1.3000 acres (0.53 ha)
- Zoning: E3 sp:43
Community & Neighbourhood
- Neighbourhood: 1021 - WP Winston Park
Listing Information
Listing History
Buy/Sell/Terminated/Expired listing history for 2770 BRIGHTON ROAD, Oakville (WP Winston Park), Ontario, L6H5T4
Location & Neighborhood
🚗 Travel times
Neighborhood Walkability
Mortgage & Cost Calculators
Nearby Homes (Within 2km)
Similar Homes
Similar Properties
No rental comparables found in this area.
Sold Comparables
Access to sold property data requires a registered and verified account with TRREB DDF integration.
Coming SoonRented Comparables
Access to rented property data requires a registered and verified account with TRREB DDF integration.
Coming Soon

































