274 PASTEL WAY, Ottawa, Ontario, K2J6C1
MLS: X12977190 | Townhouse (Freehold)
$559,900













































Property Description
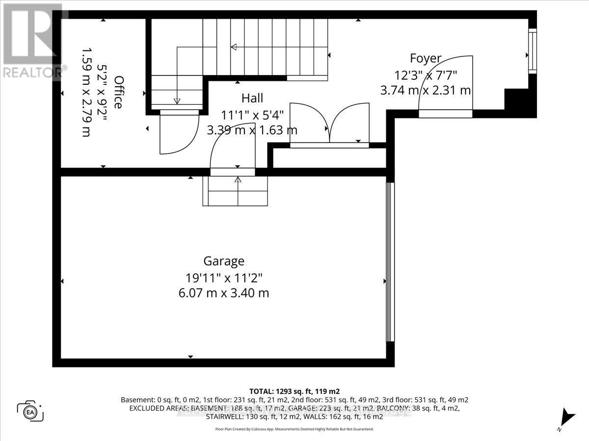
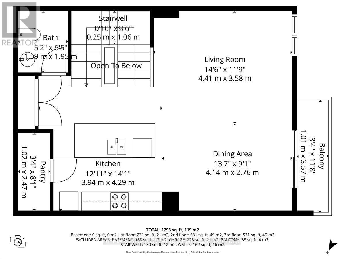
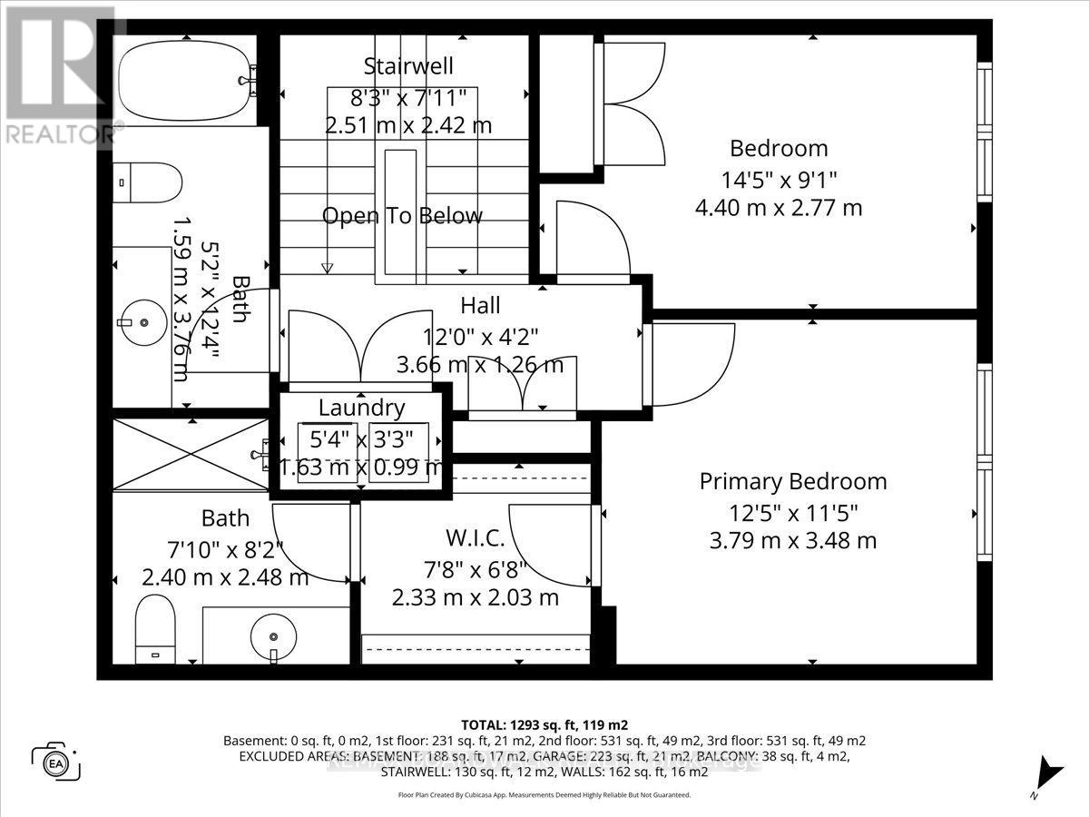
Welcome to a thoughtfully designed freehold Tamarack built 3-storey townhome on Pastel Way, where modern design meets functional, low maintenance living in one of Barrhaven's growing communities. The main level offers a spacious entry with a dedicated office nook, creating the ideal work from home setup, along with convenient interior access to the garage and the basement w/ additional storage space + utilities. The second level is bright and open, designed for both everyday living and effortless entertaining. Convenient powder room. The kitchen is anchored by a centre island with breakfast bar seating, finished with quartz countertops and walk-in pantry. The space seamlessly connects to the dining and living areas. Expansive windows fill the space with natural light, creating a warm and inviting atmosphere + the private east-facing balcony off the dining area to enjoy the sunshine and sip your coffee. On the third level, two generously sized bedrooms offer comfort and flexibility. The primary bedroom features large windows, a runway style walk in closet, and a private ensuite with a glass shower, creating a refined space to unwind. The second bedroom is well proportioned for guests, a nursery, or an additional workspace. A full bathroom with a spacious vanity, along with a dedicated laundry area and linen storage, completes this level.With its versatile layout, clean modern aesthetic, and separation of living spaces, this home is ideal for buyers seeking more space, more light, and more intention in how they live, all without the upkeep of a detached property.Located in a growing pocket of Barrhaven, this home offers convenient access to parks, schools, shopping, and everyday amenities. Enjoy nearby walking paths, green space, and quick connections to Strandherd Drive and Highway 416, making commuting and day to day living seamless. Perfectly positioned for those seeking a balanced, family friendly community with everything close at hand. (id:64974)
Quick Facts
- Property Type: Townhouse (Freehold)
- Bedrooms: 2 (2 above)
- Bathrooms: 3 (1 half)
- Ownership: Freehold
- Attached: Yes
- Parking: 2.0 spaces (Attached Garage, Garage)
- Frontage: 21 ft (6.5 m)
Costs
- Annual Taxes: $3,592.99
Listing Provided by: REMAX BOARDWALK REALTY
Board: Ottawa Real Estate Board
Data provided via CREA DDF®.
Detailed Features
Interior & Systems
- Heating: Forced air, Natural gas
- Cooling: Central air conditioning
- Basement: Unfinished, N/A
- Appliances: Washer, Refrigerator, Dishwasher, Stove, Dryer
Exterior & Construction
- Exterior: Vinyl siding, Brick Veneer
- Foundation: Poured Concrete
- Sewer: Sanitary sewer
- Water: Municipal water
Lot & Land
- Frontage: 21 ft (6.5 m)
Community & Neighbourhood
- Neighbourhood: 7711 - Barrhaven - Half Moon Bay
Room Details (6 rooms)
Listing Information
Listing History
MLS listing activity for 274 PASTEL WAY, Ottawa, Ontario, K2J6C1 — dates reflect when changes were recorded in the DDF
🚗 Travel times
Neighborhood Walkability
Mortgage & Cost Calculators
Nearby Homes ?Nearby Homes — Search CriteriaSearch Radius1 kmPrice Range±5%Match BedroomsYesMatch BathroomsYes

276 PASTEL WAY, Ottawa
Row / Townhouse$569,400
$3,753/yr taxListing Courtesy of ICI SOURCE REAL ASSET SERVICES INC.

215 PASTEL WAY, Ottawa
Row / Townhouse$569,900
$3,448/yr taxListing Courtesy of EXP REALTY

549 ENSATINA CRESCENT, Ottawa
Row / Townhouse$539,000
$3,659/yr taxListing Courtesy of EXP REALTY

2850 GRAND CANAL STREET, Ottawa
Row / Townhouse$684,900
$4,418/yr taxListing Courtesy of TRU REALTY

2516 NUTGROVE AVENUE, Ottawa
Row / Townhouse$475,000
$3,314/yr taxListing Courtesy of RE/MAX HALLMARK REALTY GROUP

840 ANDESITE TERRACE, Ottawa
Row / Townhouse$569,900
Listing Courtesy of KELLER WILLIAMS ICON REALTY

316 PARNIAN PRIVATE, Ottawa
Condo - Row / Townhouse$2,400/mo
Listing Courtesy of ROYAL LEPAGE INTEGRITY REALTY

106 PARNIAN PRIVATE N, Ottawa
Condo - Row / Townhouse$2,495/mo
Listing Courtesy of RE/MAX HALLMARK REALTY GROUP

116 PARNIAN PRIVATE, Ottawa
Condo - Apartment$499,990
Listing Courtesy of EXP REALTY

2522 STONE COVE CRESCENT, Ottawa
House$849,900
$6,219/yr taxListing Courtesy of EXP REALTY

894 FAMEFLOWER STREET, Ottawa
Row / Townhouse$2,400/mo
Listing Courtesy of ROYAL LEPAGE INTEGRITY REALTY

362 APHELION CRESCENT, Ottawa
Row / Townhouse$2,400/mo
Listing Courtesy of ROYAL LEPAGE TEAM REALTY

2782 GRAND CANAL STREET, Ottawa
House$665,000
$4,341/yr taxListing Courtesy of PAUL RUSHFORTH REAL ESTATE INC.

918 PARNIAN PRIVATE, Ottawa
Single Family$2,250/mo
Listing Courtesy of ROYAL LEPAGE TEAM REALTY

904 PARNIAN PRIVATE, Ottawa
Condo - Row / Townhouse$2,250/mo
Listing Courtesy of ROYAL LEPAGE TEAM REALTY
Similar Homes ?Similar Homes — Search CriteriaSearch Radius5 kmPrice Range±5%Match Home TypeYesMatch BedroomsYes

606 BRIAN GOOD AVENUE, Ottawa
Condo - Row / Townhouse$559,900
$3,849/yr taxListing Courtesy of INNOVATION REALTY LTD.

702 HYDRUS PRIVATE, Ottawa
Row / Townhouse$559,990
$3,325/yr taxListing Courtesy of AVENUE NORTH REALTY INC.

276 PASTEL WAY, Ottawa
Row / Townhouse$569,400
$3,753/yr taxListing Courtesy of ICI SOURCE REAL ASSET SERVICES INC.

215 PASTEL WAY, Ottawa
Row / Townhouse$569,900
$3,448/yr taxListing Courtesy of EXP REALTY

122 NUTTING CRESCENT, Ottawa
Row / Townhouse$549,900
$3,314/yr taxListing Courtesy of ENGEL & VOLKERS OTTAWA

293 SILBRASS PRIVATE, Ottawa
Row / Townhouse$544,900
$4,141/yr taxListing Courtesy of ENGEL & VOLKERS OTTAWA

3059 SHOWCASE CRESCENT, Ottawa
Row / Townhouse$543,186
Listing Courtesy of THE AGENCY OTTAWA

219 LIEBE TERRACE, Ottawa
Row / Townhouse$578,800
$3,362/yr taxListing Courtesy of ENGEL & VOLKERS OTTAWA

549 ENSATINA CRESCENT, Ottawa
Row / Townhouse$539,000
$3,659/yr taxListing Courtesy of EXP REALTY

107 WILD SENNA WAY, Ottawa
Row / Townhouse$584,900
$3,568/yr taxListing Courtesy of RE/MAX HALLMARK REALTY GROUP
Similar Properties ?Active Comparables — Search CriteriaSearch Radius2 kmPrice Range±5%Match Home TypeYesMatch BedroomsYes

702 HYDRUS PRIVATE, Ottawa
Row / Townhouse$559,990
$3,325/yr taxListing Courtesy of AVENUE NORTH REALTY INC.

276 PASTEL WAY, Ottawa
Row / Townhouse$569,400
$3,753/yr taxListing Courtesy of ICI SOURCE REAL ASSET SERVICES INC.

215 PASTEL WAY, Ottawa
Row / Townhouse$569,900
$3,448/yr taxListing Courtesy of EXP REALTY

219 LIEBE TERRACE, Ottawa
Row / Townhouse$578,800
$3,362/yr taxListing Courtesy of ENGEL & VOLKERS OTTAWA

549 ENSATINA CRESCENT, Ottawa
Row / Townhouse$539,000
$3,659/yr taxListing Courtesy of EXP REALTY

894 FAMEFLOWER STREET, Ottawa
Row / Townhouse$2,400/mo
Listing Courtesy of ROYAL LEPAGE INTEGRITY REALTY

904 PARNIAN PRIVATE, Ottawa
Condo - Row / Townhouse$2,250/mo
Listing Courtesy of ROYAL LEPAGE TEAM REALTY

918 PARNIAN PRIVATE, Ottawa
Single Family$2,250/mo
Listing Courtesy of ROYAL LEPAGE TEAM REALTY

36 AFFINITY PRIVATE, Ottawa
Condo - Row / Townhouse$2,200/mo
Listing Courtesy of ROYAL LEPAGE TEAM REALTY
Sold Comparables
Access to sold property data requires a registered and verified account with TRREB DDF integration.
Coming SoonRented Comparables
Access to rented property data requires a registered and verified account with TRREB DDF integration.
Coming SoonBook a Viewing
274 PASTEL WAY, Ottawa, Ontario, K2J6C1
