27 SULMON STREET, Belleville (Thurlow Ward), Ontario, K8N0S5
MLS: X12844634 | House (Freehold)
$718,900









Property Description
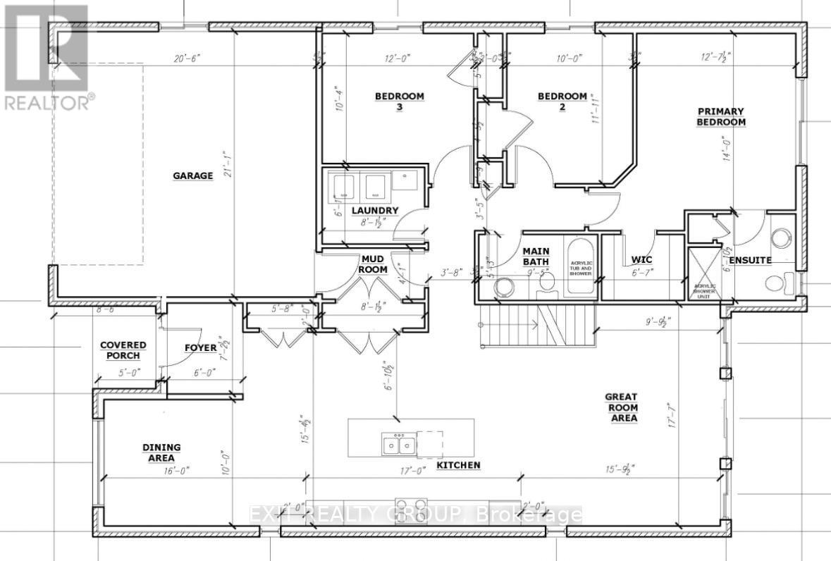
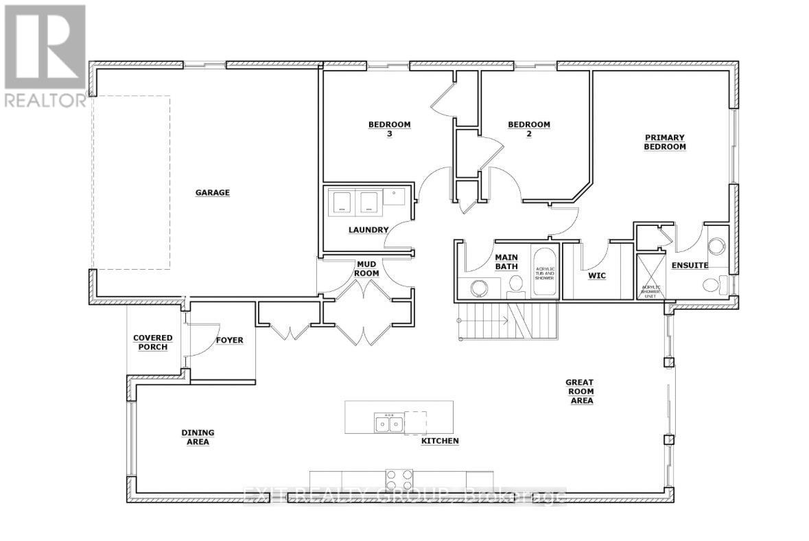
This custom brand new Staikos Built home is perfect for those looking for that open concept design. The dining room and great room sit to either side of the large kitchen and offer a clear sightline from the front door to the back of the house. This results in a home that is ideal for entertaining. Three large bedrooms offer up space for the entire family, and the separate mud room and laundry room is always a favourite design. The back of the great room is all glass with a large patio door offering great access to the back covered patio area for those family get togethers. Featuring 9-foot ceilings, premium quartz kitchen counters, high-quality stacked to the ceiling cabinets, island with storage, seating, and entertaining space. A great room with a gorgeous 10-foot tray ceiling. Canadian made engineered oak or maple hardwood flooring cover the main floor areas, while premium porcelain tiles grace the front entrance, mudroom/ laundry room, and bathrooms. High quality carpet in the bedrooms with option to upgrade. The primary bedroom features a spacious walk-in closet and a stunning ensuite. Buyers have the freedom to make all interior selections and colours to suit their preferences. Conveniently located near all amenities, including the 401, great schools, parks, and river view walking trails. (id:64974)
Quick Facts
- Property Type: House (Freehold)
- Style: Bungalow
- Bedrooms: 3 (3 above)
- Bathrooms: 2
- Ownership: Freehold
- Attached: No
- Parking: 4 spaces (Attached Garage, Garage)
- Frontage: 52 ft (15.8 m)
Listing Provided by: EXIT REALTY GROUP
Board: Central Lakes Association of REALTORS®
Data provided via CREA DDF®.
Detailed Features
Interior & Systems
- Heating: Forced air, Natural gas
- Cooling: Central air conditioning
- Basement: Unfinished, Full
- Appliances: Water Heater - Tankless
- Security: Smoke Detectors
Exterior & Construction
- Style: Bungalow
- Exterior: Brick
- Foundation: Poured Concrete
- Sewer: Sanitary sewer
- Water: Municipal water
Lot & Land
- Frontage: 52 ft (15.8 m)
- Features: Conservation/green belt
- Zoning: R1-23
Community & Neighbourhood
- Community: School Bus
- Neighbourhood: Thurlow Ward
Room Details (11 rooms)
Listing Information
Listing History
Buy/Sell/Terminated/Expired listing history for 27 SULMON STREET, Belleville (Thurlow Ward), Ontario, K8N0S5
Location & Neighborhood
🚗 Travel times
Neighborhood Walkability
Mortgage & Cost Calculators
Nearby Homes (Within 2km)
Similar Homes
Similar Properties
No rental comparables found in this area.
Sold Comparables
Access to sold property data requires a registered and verified account with TRREB DDF integration.
Coming SoonRented Comparables
Access to rented property data requires a registered and verified account with TRREB DDF integration.
Coming Soon

















