2606 - 16 BONNYCASTLE STREET, Toronto (Waterfront Communities), Ontario, M5A4M6
MLS: C12335474 | Apartment (Condo)
$699,000




















Property Description
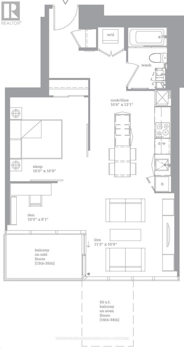
Stunning & Luxury 1B+Den Condos built by Great Gulf Home. Sun filled unit with unobstructed, breathtaking east side lake view. Functional and practical layout with 671 sq.ft. Living Space + 60 sq.ft. balcony. 9 ft. Ceiling height, and laminated floor throughout. Contemporary Kitchen Custom Designed by Cecconi Simone Including Cabinet & Island. Amenities Include Rooftop BBQ lounge w/Fire Pit, Outdoor Infinity Pool, Exercise Room, Pilates/Yoga Room, Steam Room & Sauna, Billiards, Party Room & Guest Suites. Steps to Parks, Trail, George Brown, Sugar Beach, Loblaws. Quick access to Gardiner/DVP. (id:64974)
Quick Facts
- Property Type: Apartment (Condo)
- Bedrooms: 2 (1 above, 1 below)
- Bathrooms: 1
- Ownership: Condo/Strata
- Attached: Yes
Costs
- Annual Taxes: $3,566.83
- Condo/HOA Fee: $527.62 / monthly
- Corp: FIRST SERVICE RESIDENTIAL (416)546-1559
- Includes: Common Area Maintenance, Insurance
Listing Provided by: HOMELIFE NEW WORLD REALTY INC.
Board: Toronto Regional Real Estate Board
Data provided via CREA DDF®.
Detailed Features
Interior & Systems
- Heating: Forced air, Natural gas
- Cooling: Central air conditioning
- Basement: None
- Appliances: Oven - Built-In
- Flooring: Hardwood
Exterior & Construction
- Exterior: Concrete
Lot & Land
- Features: Balcony, Carpet Free
- Pool: Outdoor pool
Community & Neighbourhood
- Community: Pets not Allowed
- Building: Exercise Centre, Security/Concierge
- Neighbourhood: Waterfront Communities C8
Room Details (5 rooms)
Listing Information
Listing History
Buy/Sell/Terminated/Expired listing history for 2606 - 16 BONNYCASTLE STREET, Toronto (Waterfront Communities), Ontario, M5A4M6
Location & Neighborhood
🚗 Travel times
Neighborhood Walkability
Mortgage & Cost Calculators
Nearby Homes (Within 2km)
Similar Homes
Similar Properties
No rental comparables found in this area.
Sold Comparables
Access to sold property data requires a registered and verified account with TRREB DDF integration.
Coming SoonRented Comparables
Access to rented property data requires a registered and verified account with TRREB DDF integration.
Coming Soon































