2604 - 16 BROOKERS LANE, Toronto (Mimico), Ontario, M8V0A5
MLS: W12990980 | Apartment (Condo)
$699,999


















































Property Description
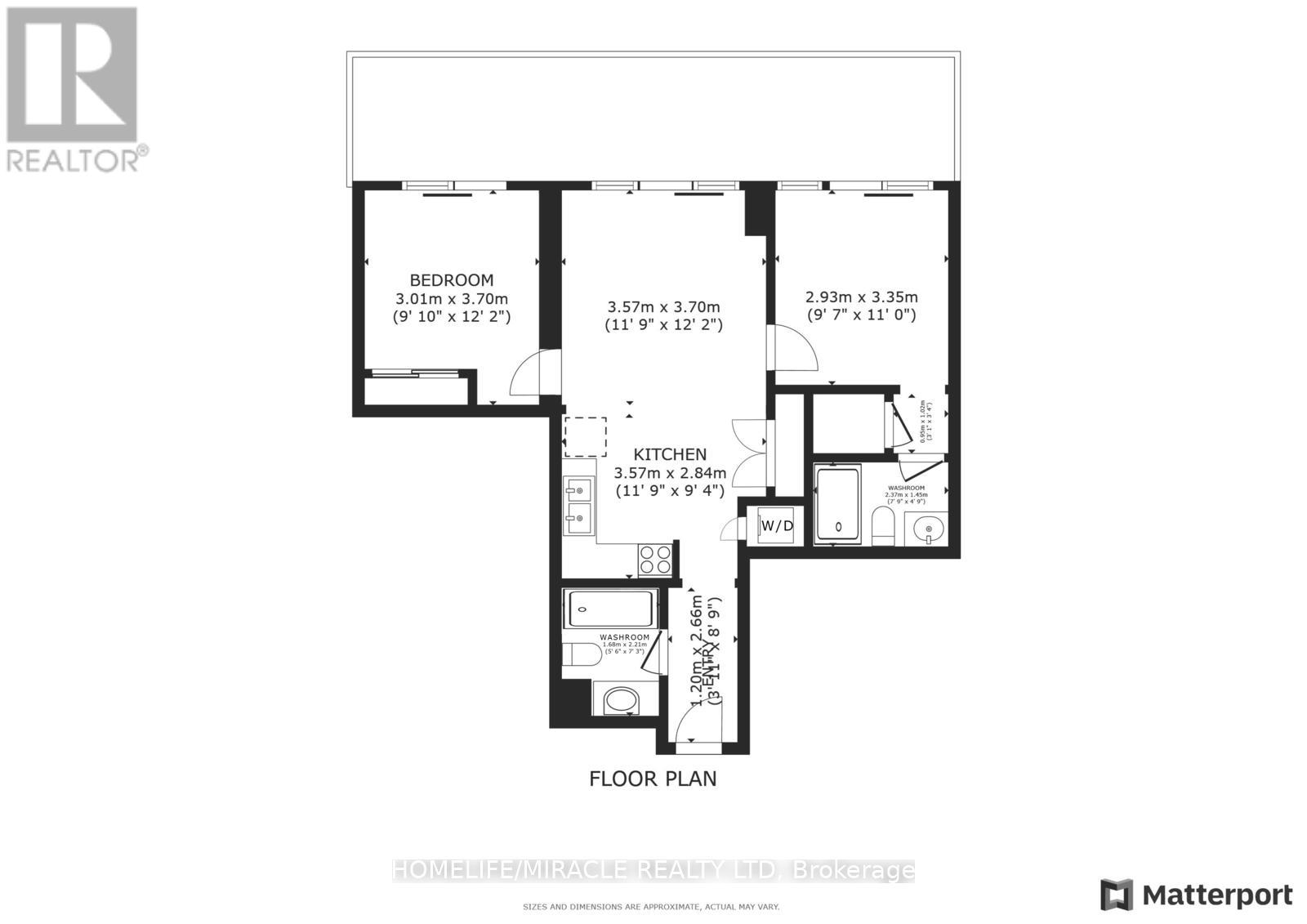
Experience elevated waterfront living in this exceptional 2-bedroom, 2-bathroom residence at Nautilus at Waterview, perfectly positioned in Toronto's vibrant Mimico community. Perched on the 26th floor, this beautifully designed 802 sq. ft. suite delivers a rare combination of style, comfort, and truly breathtaking southeast views stretching across Lake Ontario and the iconic CN Tower. From the moment you step inside, you're welcomed by a bright, open-concept layout with soaring 9-foot ceilings and dramatic floor-to-ceiling windows that flood the space with natural light. The contemporary kitchen is thoughtfully upgraded with sleek stone countertops, s/s appliances, and ample cabinetry-perfectly flowing into the living and dining area, making it ideal for both relaxed everyday living and effortless entertaining. The spacious primary bedroom offers a private retreat, complete with a walk-in closet and a modern 3-piece ensuite. The second bedroom stands out with direct balcony access-perfect for morning coffee or evening unwinding with skyline views. Step outside to your large private balcony and take in uninterrupted lake and city vistas that truly set this home apart from anything else on the market. Includes 1 parking & locker, adding practicality to its luxurious appeal. Residents enjoy resort-style amenities including a 24-hr concierge, fitness center, indoor pool, hot tub, sauna, yoga studio, party and media rooms, rooftop terrace with BBQs, guest suites, and more-everything designed to enhance your lifestyle. Located just steps from the waterfront, scenic trails, parks, and transit, with seamless access to the Gardiner Expressway, this condo offers unmatched connectivity. Whether commuting downtown or enjoying lakeside leisure, everything is at your doorstep. (id:64974)
Quick Facts
- Property Type: Apartment (Condo)
- Bedrooms: 2 (2 above)
- Bathrooms: 2
- Ownership: Condo/Strata
- Attached: Yes
- Parking: 1.0 space (Garage, Underground)
Costs
- Annual Taxes: $3,197.00
- Condo/HOA Fee: $792.00 / monthly
- Corp: Del Property Management Inc
- Includes: Common Area Maintenance, Electricity, Water, Insurance, Parking
Listing Provided by: HOMELIFE/MIRACLE REALTY LTD
Board: Toronto Regional Real Estate Board
Data provided via CREA DDF®.
Detailed Features
Interior & Systems
- Heating: Forced air, Natural gas
- Cooling: Central air conditioning
- Basement: None
- Appliances: Washer, Refrigerator, Dishwasher, Stove, Dryer, Microwave
- Flooring: Laminate
- Security: Security guard
Exterior & Construction
- Exterior: Concrete
Lot & Land
- Features: Balcony, Carpet Free
- View: Lake view
Community & Neighbourhood
- Community: Pets Allowed With Restrictions
- Building: Storage - Locker, Security/Concierge
- Neighbourhood: Mimico
Room Details (5 rooms)
Listing Information
Listing History
MLS listing activity for 2604 - 16 BROOKERS LANE, Toronto (Mimico), Ontario, M8V0A5 — dates reflect when changes were recorded in the DDF
🚗 Travel times
Neighborhood Walkability
Mortgage & Cost Calculators
Nearby Homes ?Nearby Homes — Search CriteriaSearch Radius1 kmPrice Range±5%Match BedroomsYesMatch BathroomsYes

1101 - 58 MARINE PARADE DRIVE, Toronto (Mimico)
Condo - Apartment$700,000
$3,167/yr taxListing Courtesy of EXP REALTY

207 - 110 MARINE PARADE DRIVE, Toronto (Mimico)
Condo - Apartment$674,000
$3,484/yr taxListing Courtesy of RE/MAX REAL ESTATE CENTRE INC.

705 - 2111 LAKE SHORE BOULEVARD W, Toronto (Mimico)
Condo - Apartment$715,000
$3,182/yr taxListing Courtesy of RE/MAX HALLMARK FIRST GROUP REALTY LTD.

506 - 2111 LAKE SHORE BOULEVARD W, Toronto (Mimico)
Condo - Apartment$729,900
$3,122/yr taxListing Courtesy of RE/MAX CONDOS PLUS CORPORATION

2611 - 33 SHORE BREEZE DRIVE, Toronto (Mimico)
Condo - Apartment$699,900
$3,625/yr taxListing Courtesy of RE/MAX REAL ESTATE CENTRE INC.

1012 - 30 SHORE BREEZE DRIVE W, Toronto (Mimico)
Condo - Apartment$695,000
$3,589/yr taxListing Courtesy of SAM MCDADI REAL ESTATE INC.

1501 - 10 PARK LAWN ROAD, Toronto (Mimico)
Condo - Apartment$679,500
$2,881/yr taxListing Courtesy of PROPERTY.CA INC.

2904 - 2240 LAKE SHORE BOULEVARD W, Toronto (Mimico)
Condo - Apartment$724,900
$3,083/yr taxListing Courtesy of CENTURY 21 KING'S QUAY REAL ESTATE INC.

607 - 15 LEGION ROAD, Toronto (Mimico)
Condo - Apartment$675,000
$2,975/yr taxListing Courtesy of RE/MAX WEST REALTY INC.

2702 - 251 MANITOBA STREET, Toronto (Mimico)
Condo - Apartment$685,000
$3,310/yr taxListing Courtesy of RE/MAX WEST REALTY INC.

715 - 251 MANITOBA STREET, Toronto (Mimico)
Condo - Apartment$699,000
$4,052/yr taxListing Courtesy of ROYAL LEPAGE CERTIFIED REALTY

703 - 2285 LAKE SHORE BOULEVARD W, Toronto (Mimico)
Condo - Apartment$699,000
$2,994/yr taxListing Courtesy of ROYAL LEPAGE SIGNATURE REALTY

2608 - 1928 LAKE SHORE BOULEVARD W, Toronto (High Park-Swansea)
Condo - Apartment$689,900
$3,657/yr taxListing Courtesy of HOMELIFE LANDMARK REALTY INC.
Similar Homes ?Similar Homes — Search CriteriaSearch Radius5 kmPrice Range±5%Match Home TypeYesMatch BedroomsYes

1101 - 58 MARINE PARADE DRIVE, Toronto (Mimico)
Condo - Apartment$700,000
$3,167/yr taxListing Courtesy of EXP REALTY

104 - 1195 THE QUEENSWAY, Toronto (Islington-City Centre West)
Condo - Apartment$699,990
$3,725/yr taxListing Courtesy of CENTURY 21 LEADING EDGE CONDOSDEAL REALTY

2611 - 33 SHORE BREEZE DRIVE, Toronto (Mimico)
Condo - Apartment$699,900
$3,625/yr taxListing Courtesy of RE/MAX REAL ESTATE CENTRE INC.

703 - 2285 LAKE SHORE BOULEVARD W, Toronto (Mimico)
Condo - Apartment$699,000
$2,994/yr taxListing Courtesy of ROYAL LEPAGE SIGNATURE REALTY

212 - 252 ROYAL YORK ROAD, Toronto (Mimico)
Condo - Row / Townhouse$699,000
$3,197/yr taxListing Courtesy of KELLER WILLIAMS PORTFOLIO REALTY

1019 - 1830 BLOOR STREET W, Toronto (High Park North)
Condo - Apartment$699,000
$3,567/yr taxListing Courtesy of AIMHOME REALTY INC.

715 - 251 MANITOBA STREET, Toronto (Mimico)
Condo - Apartment$699,000
$4,052/yr taxListing Courtesy of ROYAL LEPAGE CERTIFIED REALTY

401 - 760 THE QUEENSWAY, Toronto (Stonegate-Queensway)
Condo - Apartment$704,000
$3,258/yr taxListing Courtesy of SAGE REAL ESTATE LIMITED

1012 - 30 SHORE BREEZE DRIVE W, Toronto (Mimico)
Condo - Apartment$695,000
$3,589/yr taxListing Courtesy of SAM MCDADI REAL ESTATE INC.

2402 - 1285 DUPONT STREET N, Toronto (Dovercourt-Wallace Emerson-Junction)
Condo - Apartment$709,900
Listing Courtesy of PSR

314 - 300 MANITOBA STREET, Toronto (Mimico)
Condo - Apartment$690,000
$2,566/yr taxListing Courtesy of PROPERTY.CA INC.

2608 - 1928 LAKE SHORE BOULEVARD W, Toronto (High Park-Swansea)
Condo - Apartment$689,900
$3,657/yr taxListing Courtesy of HOMELIFE LANDMARK REALTY INC.

2702 - 251 MANITOBA STREET, Toronto (Mimico)
Condo - Apartment$685,000
$3,310/yr taxListing Courtesy of RE/MAX WEST REALTY INC.

1023 - 20 MINOWAN MIIKAN LANE, Toronto (Little Portugal)
Condo - Apartment$715,000
$2,669/yr taxListing Courtesy of SKYBOUND REALTY

705 - 2111 LAKE SHORE BOULEVARD W, Toronto (Mimico)
Condo - Apartment$715,000
$3,182/yr taxListing Courtesy of RE/MAX HALLMARK FIRST GROUP REALTY LTD.
Similar Properties ?Active Comparables — Search CriteriaSearch Radius2 kmPrice Range±5%Match Home TypeYesMatch BedroomsYes

1101 - 58 MARINE PARADE DRIVE, Toronto (Mimico)
Condo - Apartment$700,000
$3,167/yr taxListing Courtesy of EXP REALTY

2611 - 33 SHORE BREEZE DRIVE, Toronto (Mimico)
Condo - Apartment$699,900
$3,625/yr taxListing Courtesy of RE/MAX REAL ESTATE CENTRE INC.

212 - 252 ROYAL YORK ROAD, Toronto (Mimico)
Condo - Row / Townhouse$699,000
$3,197/yr taxListing Courtesy of KELLER WILLIAMS PORTFOLIO REALTY

703 - 2285 LAKE SHORE BOULEVARD W, Toronto (Mimico)
Condo - Apartment$699,000
$2,994/yr taxListing Courtesy of ROYAL LEPAGE SIGNATURE REALTY

715 - 251 MANITOBA STREET, Toronto (Mimico)
Condo - Apartment$699,000
$4,052/yr taxListing Courtesy of ROYAL LEPAGE CERTIFIED REALTY

1012 - 30 SHORE BREEZE DRIVE W, Toronto (Mimico)
Condo - Apartment$695,000
$3,589/yr taxListing Courtesy of SAM MCDADI REAL ESTATE INC.

314 - 300 MANITOBA STREET, Toronto (Mimico)
Condo - Apartment$690,000
$2,566/yr taxListing Courtesy of PROPERTY.CA INC.

2608 - 1928 LAKE SHORE BOULEVARD W, Toronto (High Park-Swansea)
Condo - Apartment$689,900
$3,657/yr taxListing Courtesy of HOMELIFE LANDMARK REALTY INC.

2702 - 251 MANITOBA STREET, Toronto (Mimico)
Condo - Apartment$685,000
$3,310/yr taxListing Courtesy of RE/MAX WEST REALTY INC.

705 - 2111 LAKE SHORE BOULEVARD W, Toronto (Mimico)
Condo - Apartment$715,000
$3,182/yr taxListing Courtesy of RE/MAX HALLMARK FIRST GROUP REALTY LTD.

1713 - 103 THE QUEENSWAY AVENUE, Toronto (High Park-Swansea)
Condo - Apartment$719,000
$2,918/yr taxListing Courtesy of KELLER WILLIAMS PORTFOLIO REALTY

3802 - 2230 LAKE SHORE BOULEVARD W, Toronto (Mimico)
Condo - Apartment$679,900
$3,160/yr taxListing Courtesy of ZOLO REALTY

1501 - 10 PARK LAWN ROAD, Toronto (Mimico)
Condo - Apartment$679,500
$2,881/yr taxListing Courtesy of PROPERTY.CA INC.

2904 - 2240 LAKE SHORE BOULEVARD W, Toronto (Mimico)
Condo - Apartment$724,900
$3,083/yr taxListing Courtesy of CENTURY 21 KING'S QUAY REAL ESTATE INC.

607 - 15 LEGION ROAD, Toronto (Mimico)
Condo - Apartment$675,000
$2,975/yr taxListing Courtesy of RE/MAX WEST REALTY INC.

503 - 59 ANNIE CRAIG DRIVE, Toronto (Mimico)
Condo - Apartment$4,200/mo
Listing Courtesy of SOTHEBY'S INTERNATIONAL REALTY CANADA

1108 - 1 PALACE PIER COURT, Toronto (Mimico)
Condo - Apartment$4,000/mo
Listing Courtesy of RE/MAX PROFESSIONALS INC.

4510 - 20 SHORE BREEZE DRIVE, Toronto (Mimico)
Condo - Apartment$4,000/mo
Listing Courtesy of CITYVIEW REALTY INC.

323 - 5 MARINE PARADE DRIVE, Toronto (Mimico)
Condo - Apartment$3,800/mo
Listing Courtesy of SOTHEBY'S INTERNATIONAL REALTY CANADA

1005 - 2267 LAKE SHORE BOULEVARD W, Toronto (Mimico)
Condo - Apartment$3,700/mo
Listing Courtesy of REAL ONE REALTY INC.

3709 - 1928 LAKE SHORE BOULEVARD W, Toronto (South Parkdale)
Condo - Apartment$3,700/mo
Listing Courtesy of HOMELIFE LANDMARK REALTY INC.

2905 - 70 ANNIE CRAIG DRIVE, Toronto (Mimico)
Condo - Apartment$3,600/mo
Listing Courtesy of CENTURY 21 LEADING EDGE CONDOSDEAL REALTY

UPH2 - 30 SHORE BREEZE DRIVE, Toronto (Mimico)
Condo - Apartment$3,500/mo
Listing Courtesy of ROYAL LEPAGE URBAN REALTY

704 - 59 ANNIE CRAIG DRIVE, Toronto (Mimico)
Condo - Apartment$3,450/mo
Listing Courtesy of ROYAL LEPAGE SIGNATURE REALTY

4408 - 36 PARK LAWN ROAD, Toronto (Mimico)
Condo - Apartment$3,300/mo
Listing Courtesy of ROYAL LEPAGE REAL ESTATE SERVICES LTD.

1304 - 20 SHORE BREEZE DRIVE, Toronto (Mimico)
Condo - Apartment$3,300/mo
Listing Courtesy of RE/MAX PLUS CITY TEAM INC.

PH-07 - 30 SHORE BREEZE DRIVE, Toronto (Mimico)
Condo - Apartment$3,300/mo
Listing Courtesy of BRIDLEPATH PROGRESSIVE REAL ESTATE INC.

2018 - 30 SHORE BREEZE DRIVE, Toronto (Mimico)
Condo - Apartment$3,250/mo
Listing Courtesy of ROYAL LEPAGE SIGNATURE REALTY

PH10 - 689 THE QUEENS WAY, Toronto (Stonegate-Queensway)
Condo - Apartment$3,100/mo
Listing Courtesy of RE/MAX METROPOLIS REALTY

725 - 250 MANITOBA STREET, Toronto (Mimico)
Condo - Apartment$3,100/mo
Listing Courtesy of RE/MAX HALLMARK REALTY LTD.
Sold Comparables
Access to sold property data requires a registered and verified account with TRREB DDF integration.
Coming SoonRented Comparables
Access to rented property data requires a registered and verified account with TRREB DDF integration.
Coming SoonBook a Viewing
2604 - 16 BROOKERS LANE, Toronto (Mimico), Ontario, M8V0A5
