26 ANDERSON BOULEVARD, Uxbridge, Ontario, L9P0C7
MLS: N12862434 | Vacant Land
$2,150,000






Property Description
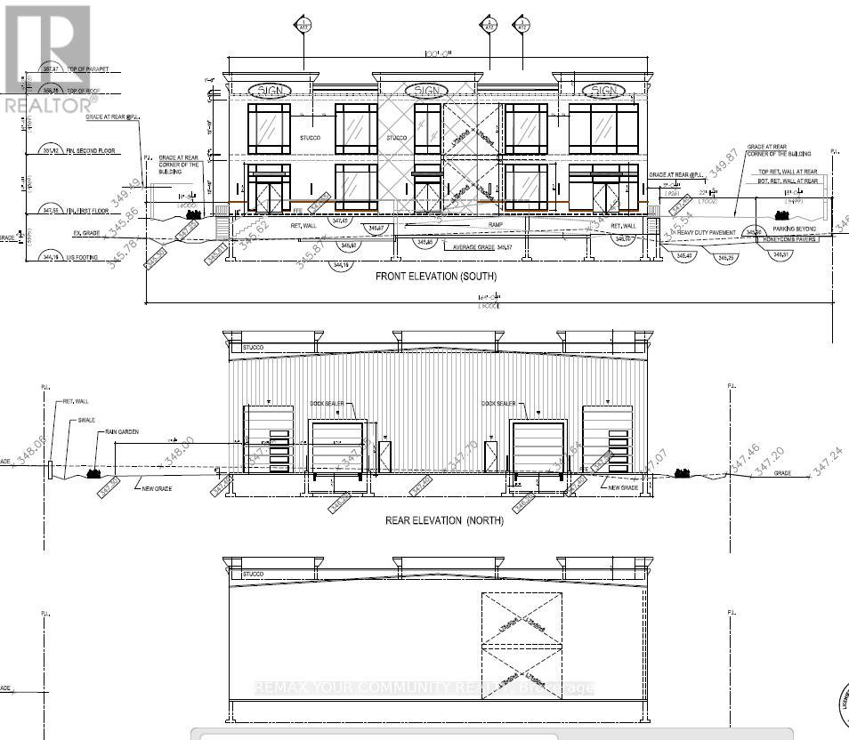
2 Acre Industrial Lot with permitted outside storage in great industrial subdivision with many services at lot line. Flat and level Industrial Land In Prestigious and Mature Business Park. Easy drive to 404 & 407 Highways, and near Town of Stouffville and Town of Uxbridge. As a bonus, there is pre-permit ready to go site plan and architectural drawings available for a 23,980sqft building of which 1,480 is office and 22,499sqft of warehouse with over 26' clear height , two (12' x 12.5') truck level, two (12' x16') drive-in doors and 28 parking stalls. Note: By-Law Allows Outside Storage On This Lot Only If There Is A Building Associated on the lot. (id:64974)
Quick Facts
- Property Type: Vacant Land
- Bedrooms: None
- Bathrooms: None
- Living Area: 2 sq ft (0.2 m²)
- Lot Size: 2.0580 acres (0.83 ha)
- Frontage: 176 ft (53.6 m)
Costs
- Annual Taxes: $14,000.73
Listing Provided by: REMAX YOUR COMMUNITY REALTY
Board: Toronto Regional Real Estate Board
Data provided via CREA DDF®.
Detailed Features
Exterior & Construction
- Sewer: Septic System
Lot & Land
- Lot Size: 2.0580 acres (0.83 ha)
- Frontage: 176 ft (53.6 m)
- Features: Irregular lot size
- Zoning: (H) M1-35
Community & Neighbourhood
- Neighbourhood: Rural Uxbridge
Listing Information
Listing History
Buy/Sell/Terminated/Expired listing history for 26 ANDERSON BOULEVARD, Uxbridge, Ontario, L9P0C7
Location & Neighborhood
🚗 Travel times
Neighborhood Walkability
Mortgage & Cost Calculators
Nearby Homes (Within 2km)
Similar Homes
Similar Properties
No rental comparables found in this area.
Sold Comparables
Access to sold property data requires a registered and verified account with TRREB DDF integration.
Coming SoonRented Comparables
Access to rented property data requires a registered and verified account with TRREB DDF integration.
Coming Soon




























