25728 MCMURCHY LINE, West Elgin, Ontario, N0L2P0
MLS: X12871610 | Unknown
$1,500,000











































Property Description
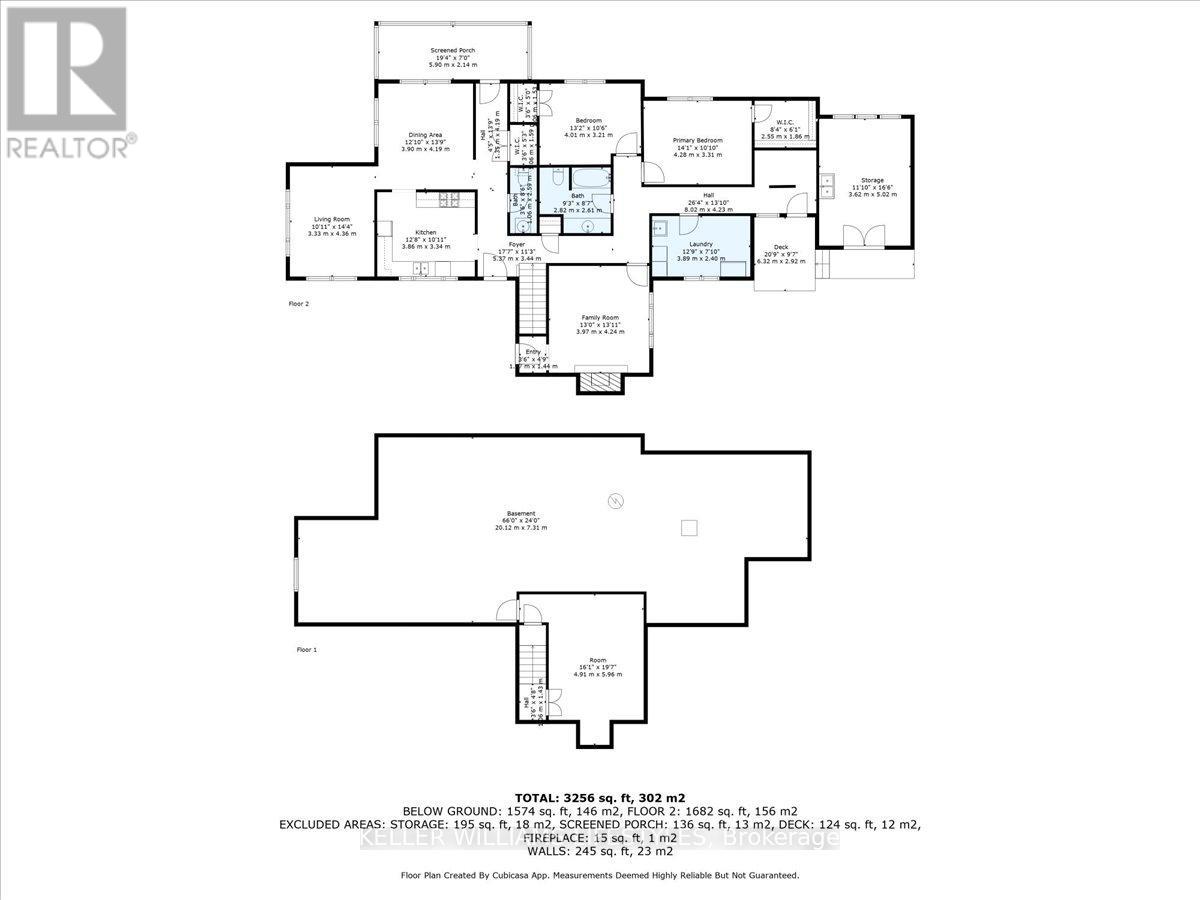
Discover the space and serenity of this private 40 acre riverfront property, offering a beautiful balance of country living and everyday comfort. Set well back in a quiet setting, the home built in 2008, provides privacy and a true connection to the outdoors. Equestrian enthusiasts will appreciate the five stall insulated barn that is well equipped with hydro, water, and storage for up to 300 small square bales. A 50 amp RV outlet and halogen floodlight add extra functionality. Approximately 27 acres are workable, with 23 acres of hay and the remaining land in open pasture, creating excellent potential for hobby farming or added income. Enjoy direct access to the river for canoeing, fishing, or simply taking in the peaceful views. The surrounding hardwood bush attracts deer, eagles, foxes, and other wildlife, making this property ideal for nature lovers. Whether you are seeking a hobby farm, a family country escape, or a private retreat, the possibilities here are wide open. Inside, enjoy cozy evenings by the wood burning fireplace, or gather outdoors around a campfire beneath star filled skies. Hydro access near the treed area allows for outdoor entertaining or seasonal lighting displays. Begin your mornings with coffee in the screened in front porch and unwind on the cedar back deck overlooking a peaceful fish pond. The full basement offers generous additional space for living, storage, or hobbies. Municipal water, septic, propane, and fibre optic internet are already in place, delivering modern amenities in a peaceful rural setting. This 40 acre riverfront property offers a rare combination of land, comfort, and natural beauty. (id:64974)
Quick Facts
- Property Type: Unknown
- Bedrooms: None
- Bathrooms: 2
- Living Area: 40 sq ft (3.7 m²)
- Lot Size: 40.0000 acres (16.19 ha)
- Frontage: 1,941 ft (591.6 m)
Costs
- Annual Taxes: $7,066.99
Listing Provided by: KELLER WILLIAMS LIFESTYLES
Board: London and St. Thomas Association of REALTORS®
Data provided via CREA DDF®.
Detailed Features
Interior & Systems
- Heating: Not known, Wood
- Cooling: Fully air conditioned
- Appliances: Washer, Dishwasher, Dryer, Microwave, Freezer, Hood Fan
Exterior & Construction
- Sewer: Septic System
- Water: Municipal water
Lot & Land
- Lot Size: 40.0000 acres (16.19 ha)
- Frontage: 1,941 ft (591.6 m)
- Zoning: A1
Community & Neighbourhood
- Neighbourhood: Rural West Elgin
Listing Information
Listing History
Buy/Sell/Terminated/Expired listing history for 25728 MCMURCHY LINE, West Elgin, Ontario, N0L2P0
Location & Neighborhood
🚗 Travel times
Neighborhood Walkability
Mortgage & Cost Calculators
Nearby Homes (Within 2km)
Similar Homes
Similar Properties
No rental comparables found in this area.
Sold Comparables
Access to sold property data requires a registered and verified account with TRREB DDF integration.
Coming SoonRented Comparables
Access to rented property data requires a registered and verified account with TRREB DDF integration.
Coming Soon








