2567 STEVENSVILLE ROAD, Fort Erie (Stevensville), Ontario, L0S1S0
MLS: X12712294 | Vacant Land
$999,500





Property Description
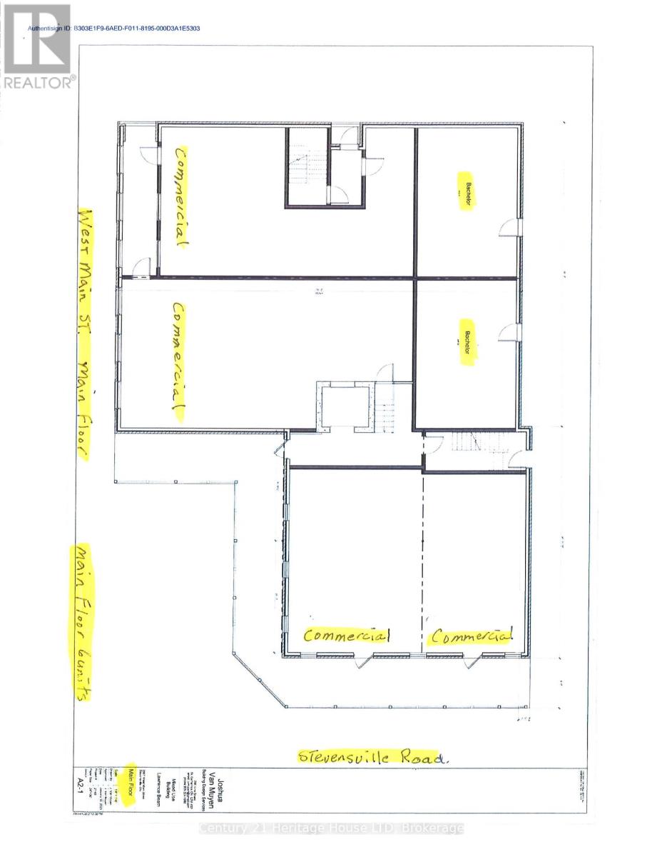
Great Investment opportunity! Golden opportunity to bring back the nostalgia of once was at this prime corner property in the quaint village of Stevensville. 18 units in total, combination of 4 commercial and 14 residential units to be built. SITE PLAN APPROVED. GRANTS AVAILABLE FROM THE MUNICIPALITY. Buyer responsible for own due diligence. (id:64974)
Quick Facts
- Property Type: Vacant Land
- Bedrooms: None
- Bathrooms: None
- Living Area: 23,078 sq ft (2,144.0 m²)
- Frontage: 119 ft (36.2 m)
Costs
- Annual Taxes: $3,317.00 (2025)
Listing Provided by: Century 21 Heritage House LTD
Board: Niagara Association of REALTORS®
Data provided via CREA DDF®.
Detailed Features
Exterior & Construction
- Water: Municipal water
Lot & Land
- Frontage: 119 ft (36.2 m)
- Zoning: CMU5
Community & Neighbourhood
- Neighbourhood: 328 - Stevensville
Listing Information
Listing History
Buy/Sell/Terminated/Expired listing history for 2567 STEVENSVILLE ROAD, Fort Erie (Stevensville), Ontario, L0S1S0
Location & Neighborhood
🚗 Travel times
Neighborhood Walkability
Mortgage & Cost Calculators
Nearby Homes (Within 2km)
Similar Homes
Similar Properties
No rental comparables found in this area.
Sold Comparables
Access to sold property data requires a registered and verified account with TRREB DDF integration.
Coming SoonRented Comparables
Access to rented property data requires a registered and verified account with TRREB DDF integration.
Coming Soon























