2566 5 CONCESSION S, Clearview, Ontario, L0M1G0
MLS: S12722310 | House (Freehold)
$2,950,000























































Property Description
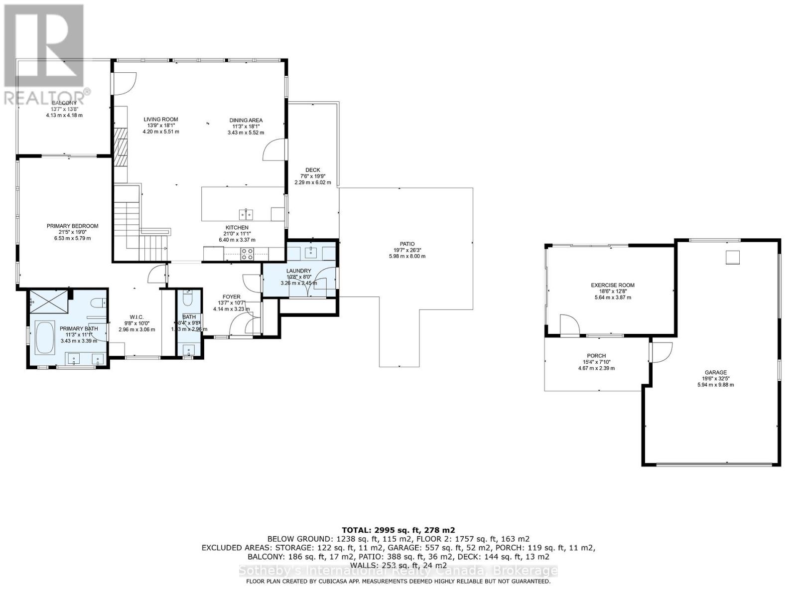
"Viewfield" an exceptional three-bedroom home, where you can experience the most stunning sunrise and sunset views. Set on 1.3 professionally landscaped acres outside the vibrant village of Creemore. Tucked at the end of a maple-lined driveway, the home exudes the peaceful elegance of a European retreat. Inside, the bright and airy layout is designed to impress. Oversized windows frame panoramic views of rolling hills and farmland, while the open-concept main floor blends everyday comfort with sophisticated style. The custom walnut kitchen features granite counters, wall oven and cooktop, and a large island with floating shelves perfect for cooking or gathering.In the great room, soaring 16-ft ceilings and a sleek Napoleon fireplace create a dramatic focal point, while the dining areas minimalist chandelier keeps the views front and center. Radiant in floor heating throughout the house is perfect for the cooler fall and winter days. The main-floor primary suite is a tranquil retreat, with a private dressing room, spa-like ensuite, and floor-to-ceiling windows offering abundant natural light. Downstairs, the walkout lower level is perfect for guests or extended stays, with a large family room, wet bar, 3 piece washroom, pantry, and additional storage. Working from home you can find your own space in the lovely office with built in shelving and desk. The 2 guest bedrooms are spacious with one of them having private access to a walk out with views as far as the eye can see. Step outside to a private backyard oasis with a new heated in-ground saltwater pool (2023), surrounded by limestone and concrete patios, mature trees, and a privacy fence. A bonus studio/yoga room with sliding glass doors overlooking the hills of Creemore.With cedar, Eramosa stone, and stucco finishes, the home blends seamlessly into its natural setting. Offering over 3,000 sq ft of finished space plus a large garage. Hundreds of thousands spent since owners have purchased. 5 minutes to Creemore. (id:64974)
Quick Facts
- Property Type: House (Freehold)
- Style: Bungalow
- Bedrooms: 4 (1 above, 3 below)
- Bathrooms: 3 (1 half)
- Ownership: Freehold
- Attached: No
- Fireplaces: Yes
- Parking: 6 spaces (Detached Garage, Garage)
- Frontage: 134 ft (40.8 m)
Costs
- Annual Taxes: $7,605.09
Listing Provided by: Sotheby's International Realty Canada
Board: OnePoint Association of REALTORS®
Data provided via CREA DDF®.
Detailed Features
Interior & Systems
- Heating: Radiant heat, Propane
- Cooling: Central air conditioning
- Basement: Finished, Walk out, N/A
- Appliances: Washer, Refrigerator, Central Vacuum, Dishwasher, Stove, Dryer, Microwave, Furniture, Window Coverings, Garage door opener, Water Heater
- Utilities: Electricity
- Security: Alarm system
Exterior & Construction
- Style: Bungalow
- Exterior: Wood, Stucco
- Foundation: Concrete
- Sewer: Septic System
- Water: Drilled Well
Lot & Land
- Frontage: 134 ft (40.8 m)
- Features: Wooded area, Sloping, Rolling, Flat site
- View: View, Valley view
- Pool: Inground pool, Salt Water Pool
- Zoning: Agriculture
Community & Neighbourhood
- Neighbourhood: Rural Clearview
Room Details (10 rooms)
Listing Information
Listing History
Buy/Sell/Terminated/Expired listing history for 2566 5 CONCESSION S, Clearview, Ontario, L0M1G0
Location & Neighborhood
🚗 Travel times
Neighborhood Walkability
Mortgage & Cost Calculators
Nearby Homes (Within 2km)
Similar Homes
Similar Properties
No rental comparables found in this area.
Sold Comparables
Access to sold property data requires a registered and verified account with TRREB DDF integration.
Coming SoonRented Comparables
Access to rented property data requires a registered and verified account with TRREB DDF integration.
Coming Soon














