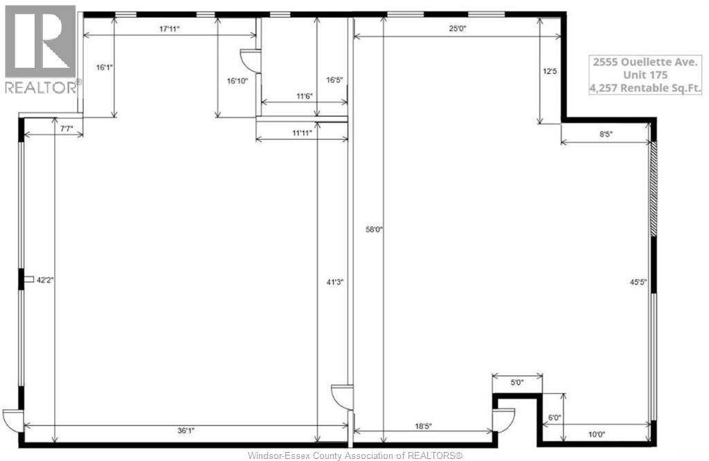
2555 OUELLETTE AVENUE Unit# 175, Windsor, Ontario, N8X1L9
MLS: 25031340 | Industrial
$12.00 / square feet









Property Description
This spacious 4,257 sq. ft. professional office suite with garage door is now available for lease. Situated in a central, high-demand location within a prestigious office building, it's surrounded by a variety of complementary businesses and professional services. Enjoy easy access to a wide range of nearby restaurants, shops, and amenities, providing convenience for both employees and clients. Utilities are included in the additional rent. (id:64974)
Quick Facts
- Property Type: Industrial
- Bedrooms: None
- Bathrooms: None
- Living Area: 4,257 sq ft (395.5 m²)
- Above Grade: 4,257 sq ft (395.5 m²)
- Ownership: Freehold
Listing Provided by: ROYAL LEPAGE BINDER REAL ESTATE
Board: Windsor-Essex County Association of REALTORS®
Data provided via CREA DDF®.
Detailed Features
Interior & Systems
- Heating: Forced air, Natural gas, Furnace
- Cooling: Air Conditioned
- Flooring: Concrete
Lot & Land
- Zoning: MD1.4
Listing Information
Listing History
Buy/Sell/Terminated/Expired listing history for 2555 OUELLETTE AVENUE Unit# 175, Windsor, Ontario, N8X1L9
Location & Neighborhood
🚗 Travel times
Neighborhood Walkability
Mortgage & Cost Calculators
Similar Properties
No active comparables found in this area.
Sold Comparables
Access to sold property data requires a registered and verified account with TRREB DDF integration.
Coming SoonRented Comparables
Access to rented property data requires a registered and verified account with TRREB DDF integration.
Coming Soon














