25 EDISON DRIVE, Bayham (Vienna), Ontario, N0J1Z0
MLS: X12980060 | House (Freehold)
$609,000

















































Property Description
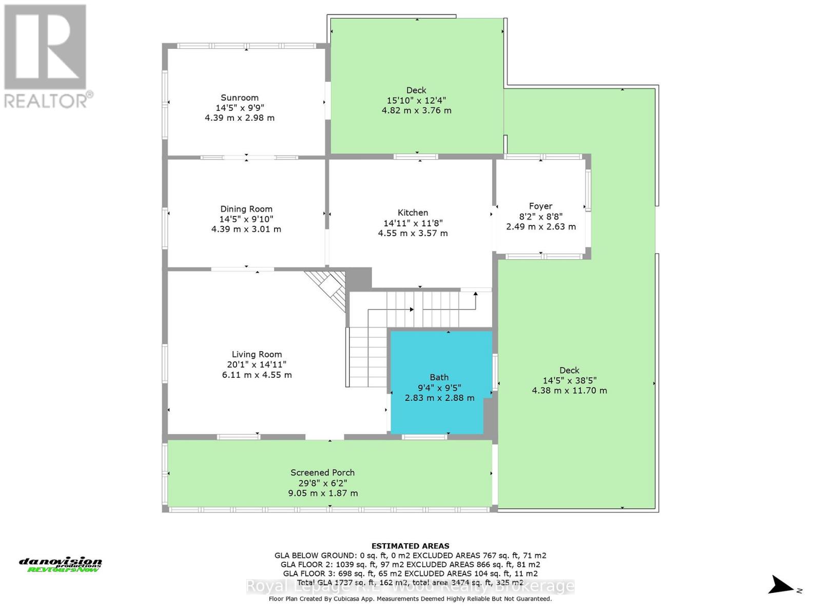
Rare opportunity to own two properties for the price of one. This offering includes a beautifully renovated century home situated on over 0.5 acres, plus a separate 1-acre riverfront lot located directly across the street.The main home features a spacious and well-maintained layout, blending original character with modern updates. The renovated kitchen is equipped with stainless steel appliances and slate flooring, and connects conveniently to a mudroom. A generous dining room with built-in cabinetry, quality millwork, and ample natural light anchors the main living area. Additional living spaces include a cozy living room, a rear oversized sunroom, and a front four-season sunroom with views toward the riverfront lot.The main floor also offers a renovated 3-piece bathroom with laundry. Upstairs, there are three bedrooms and an updated 4-piece bathroom featuring a clawfoot tub.Exterior features include a detached double car garage, fully fenced yard, and a large deck with panoramic views of the surrounding valley and river.The included riverfront parcel offers a private recreational retreat complete with a fire pit, small cabin, and solar power system.A unique property ideal for those seeking space, privacy, and direct access to nature. (id:64974)
Quick Facts
- Property Type: House (Freehold)
- Bedrooms: 3 (3 above)
- Bathrooms: 2
- Ownership: Freehold
- Attached: No
- Parking: 12.0 spaces (Detached Garage, Garage)
- Frontage: 126 ft (38.4 m)
Costs
- Annual Taxes: $2,750.00
Listing Provided by: Royal Lepage R.E. Wood Realty Brokerage
Board: Woodstock Ingersoll Tillsonburg and Area Association of REALTORS® (WITAAR)
Data provided via CREA DDF®.
Detailed Features
Interior & Systems
- Heating: Forced air, Natural gas
- Cooling: None
- Basement: Full
- Appliances: Washer, Refrigerator, Gas stove(s), Dishwasher, Dryer, Window Coverings
- Utilities: Sewer, Electricity, Cable
Exterior & Construction
- Exterior: Vinyl siding
- Foundation: Concrete
- Sewer: Sanitary sewer
- Water: Municipal water
Lot & Land
- Frontage: 126 ft (38.4 m)
- View: River view, Direct Water View
- Waterfront: Waterfront on creek
- Water Body: Big Otter Creek
- Zoning: H-R1
Community & Neighbourhood
- Neighbourhood: Vienna
Listing Information
Listing History
MLS listing activity for 25 EDISON DRIVE, Bayham (Vienna), Ontario, N0J1Z0 — dates reflect when changes were recorded in the DDF
🚗 Travel times
Neighborhood Walkability
Mortgage & Cost Calculators
Nearby Homes ?Nearby Homes — Search CriteriaSearch Radius1 kmPrice Range±5%Match BedroomsYesMatch BathroomsYes

32 EDISON DRIVE, Bayham (Vienna)
House$399,000
$2,330/yr taxListing Courtesy of SHOWCASE EAST ELGIN REALTY INC

26 OAK STREET, Bayham (Vienna)
House$613,999
$3,844/yr taxListing Courtesy of RE/MAX CENTRE CITY REALTY INC.

31 CHAPEL Street, Vienna
House$799,900
$6,390/yr taxListing Courtesy of RE/MAX Twin City Realty Inc.

31 CHAPEL STREET, Bayham (Vienna)
House$799,900
$6,390/yr taxListing Courtesy of RE/MAX TWIN CITY REALTY INC.

27 ANN STREET, Bayham (Vienna)
House$799,900
$4,343/yr taxListing Courtesy of RE/MAX Tri-County Realty Inc Brokerage

38 FULTON STREET, Bayham (Vienna)
House$619,000
$3,977/yr taxListing Courtesy of ROYAL LEPAGE TRILAND REALTY
Similar Homes ?Similar Homes — Search CriteriaSearch Radius5 kmPrice Range±5%Match Home TypeYesMatch BedroomsYes

26 OAK STREET, Bayham (Vienna)
House$613,999
$3,844/yr taxListing Courtesy of RE/MAX CENTRE CITY REALTY INC.

38 FULTON STREET, Bayham (Vienna)
House$619,000
$3,977/yr taxListing Courtesy of ROYAL LEPAGE TRILAND REALTY

102 - 1115 DOUGLAS MCCURDY COMM DRIVE E, Mississauga (Lakeview)
Condo - Row / Townhouse$609,000
$4,335/yr taxListing Courtesy of RE/MAX GOLD REALTY INC.

112 - 7 BOND CRESCENT, Richmond Hill (Oak Ridges)
Condo - Apartment$609,000
$3,095/yr taxListing Courtesy of HARVEY KALLES REAL ESTATE LTD.

1613 - 103 THE QUEENSWAY WAY, Toronto (High Park-Swansea)
Condo - Apartment$609,000
$2,956/yr taxListing Courtesy of RE/MAX HALLMARK REALTY LTD.

1310 - 55 CHARLES STREET E, Toronto (Church-Yonge Corridor)
Condo - Apartment$609,000
$1,770/yr taxListing Courtesy of RE/MAX HALLMARK REALTY LTD.

308 - 4 BRIAR HILL HEIGHTS W, New Tecumseth (Alliston)
Condo - Apartment$609,000
$3,542/yr taxListing Courtesy of SUTTON GROUP INCENTIVE REALTY INC.

2018 - 15 NORTHTOWN WAY, Toronto (Willowdale East)
Condo - Apartment$609,000
$2,790/yr taxListing Courtesy of ELITE CAPITAL REALTY INC.

1603 - 801 BAY STREET, Toronto (Bay Street Corridor)
Condo - Apartment$609,000
$3,386/yr taxListing Courtesy of EXP REALTY

3204 - 56 ANNIE CRAIG DRIVE, Toronto (Mimico)
Condo - Apartment$609,000
$3,062/yr taxListing Courtesy of RIGHT AT HOME REALTY

301 - 620 SAUVE STREET, Milton (BE Beaty)
Condo - Apartment$609,000
$2,751/yr taxListing Courtesy of RE/MAX CONDOS PLUS CORPORATION

508 - 9075 JANE STREET, Vaughan (Concord)
Condo - Apartment$609,000
$3,274/yr taxListing Courtesy of RE/MAX REAL ESTATE CENTRE INC.

10 - 4300 KALAR ROAD, Niagara Falls (Ascot)
Condo - Row / Townhouse$609,000
$4,184/yr taxListing Courtesy of RE/MAX NIAGARA REALTY LTD, BROKERAGE

45 PINE RIDGE GATE E, Gravenhurst (Muskoka (S))
House$609,000
$3,964/yr taxListing Courtesy of Chestnut Park Real Estate

4 - 5605 OSCAR PETERSON BOULEVARD, Mississauga (Churchill Meadows)
Condo - Apartment$609,000
$3,763/yr taxListing Courtesy of RE/MAX REAL ESTATE CENTRE INC.
Similar Properties ?Active Comparables — Search CriteriaSearch Radius2 kmPrice Range±5%Match Home TypeYesMatch BedroomsYes

26 OAK STREET, Bayham (Vienna)
House$613,999
$3,844/yr taxListing Courtesy of RE/MAX CENTRE CITY REALTY INC.

38 FULTON STREET, Bayham (Vienna)
House$619,000
$3,977/yr taxListing Courtesy of ROYAL LEPAGE TRILAND REALTY
No rental comparables found in this area.
Sold Comparables
Access to sold property data requires a registered and verified account with TRREB DDF integration.
Coming SoonRented Comparables
Access to rented property data requires a registered and verified account with TRREB DDF integration.
Coming SoonBook a Viewing
25 EDISON DRIVE, Bayham (Vienna), Ontario, N0J1Z0
