2480 RIVERSIDE DRIVE, Timmins (MTJ - 101 West), Ontario, P4R1M9
MLS: T12304068 | Retail
$21.00 / square feet














Property Description
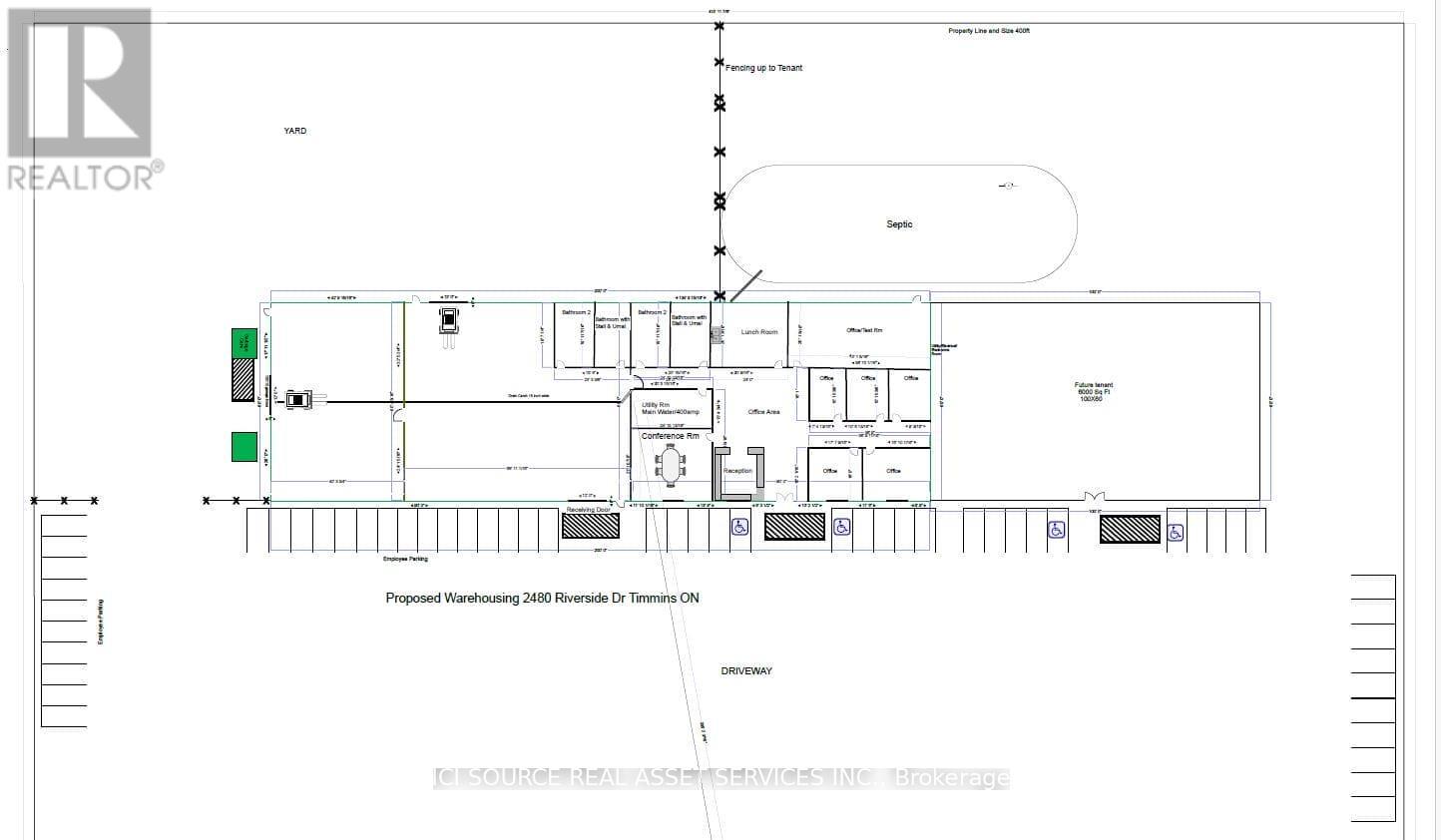
Landlord looking to find a client to build for, Office, warehouse, garage etc. Size from 10,000 to 25,000 Sq ft. Property is half developed already with long term tenants. Mining, or related to mining industry is preferred for a new client. Very clean area, easy access, all fenced *For Additional Property Details Click The Brochure Icon Below* (id:64974)
Quick Facts
- Property Type: Retail
- Bedrooms: None
- Bathrooms: None
- Living Area: 25,000 sq ft (2,322.6 m²)
- Lot Size: 6.2200 acres (2.52 ha)
- Frontage: 400 ft (121.9 m)
Costs
- Annual Taxes: $59,133.00
Listing Provided by: ICI SOURCE REAL ASSET SERVICES INC.
Board: Toronto Regional Real Estate Board
Data provided via CREA DDF®.
Detailed Features
Interior & Systems
- Heating: Forced air, Natural gas
- Cooling: Fully air conditioned
Exterior & Construction
- Sewer: Septic System
- Water: Municipal water
Lot & Land
- Lot Size: 6.2200 acres (2.52 ha)
- Frontage: 400 ft (121.9 m)
- Zoning: Commercial/Industrial
Community & Neighbourhood
- Neighbourhood: MTJ - 101 West
Listing Information
Listing History
Buy/Sell/Terminated/Expired listing history for 2480 RIVERSIDE DRIVE, Timmins (MTJ - 101 West), Ontario, P4R1M9
Location & Neighborhood
🚗 Travel times
Neighborhood Walkability
Mortgage & Cost Calculators
Similar Properties
No active comparables found in this area.
Sold Comparables
Access to sold property data requires a registered and verified account with TRREB DDF integration.
Coming SoonRented Comparables
Access to rented property data requires a registered and verified account with TRREB DDF integration.
Coming Soon









