2462 DUNNING ROAD, Ottawa, Ontario, K0A3E0
MLS: X12924188 | House (Freehold)
$625,000




















































Property Description
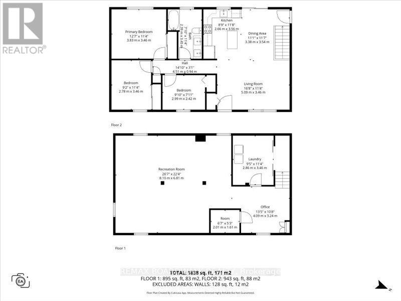
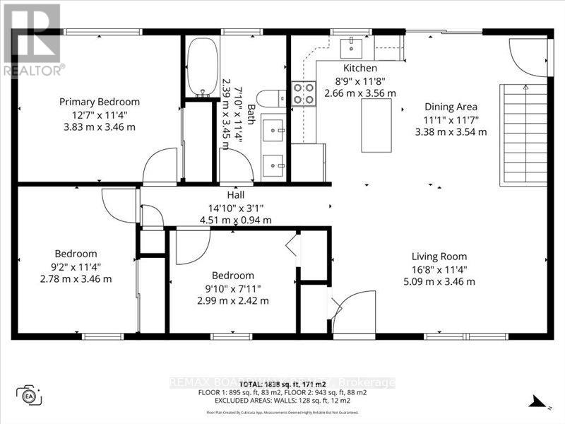
Welcome to this beautifully updated 3-bedroom, 1-bath bungalow featuring a bright open-concept flat ceilings and pot lights throughout. Located in Cumberland, just 5 min from Orleans. The living, dining, and kitchen areas flow seamlessly together, highlighted by luxury vinyl flooring and a modern fireplace with a warm wood-accent surround. The updated kitchen features stainless steel appliances, a double sink, a tiled backsplash, a centre island, and ample workspace for cooking and entertaining. A patio door off the dining area leads to a large deck overlooking the private yard, surrounded by mature hedges and complete with a storage shed. The home offers three comfortable bedrooms, including a spacious primary bedroom with ample closet space. The fully updated 5-piece bathroom features dual sinks and a white subway tile bathtub surround for a clean, modern look. Additional highlights include vinyl windows, a newer roof, a newer furnace, and a newer septic tank. Recent upgrades include septic tank, plumbing, electrical, insulation, water softener, reverse osmosis system, well pump, and parging, along with kitchen, bath, flooring, Vinyl windows, furnace, and Roof. The property also features a convenient drive-thru driveway from Dunning Road to French Hill Road. A hardwood staircase with metal spindles leads to the lower level, where you'll find a bright laundry room and a spacious rec room with five large windows and a suspended ceiling with pot lights, offering plenty of potential for an additional bedroom and bathroom. This move-in-ready home blends modern updates with functional living in a peaceful setting, just minutes from city convenience. (id:64974)
Quick Facts
- Property Type: House (Freehold)
- Style: Bungalow
- Bedrooms: 3 (3 above)
- Bathrooms: 1
- Ownership: Freehold
- Attached: No
- Fireplaces: 1
- Parking: 10.0 spaces (No Garage)
Costs
- Annual Taxes: $2,912.00
Listing Provided by: REMAX BOARDWALK REALTY
Board: Ottawa Real Estate Board
Data provided via CREA DDF®.
Detailed Features
Interior & Systems
- Heating: Forced air, Propane
- Cooling: Central air conditioning
- Basement: Finished, Full
- Appliances: Washer, Refrigerator, Dishwasher, Stove, Dryer, Water Treatment, Hood Fan
Exterior & Construction
- Style: Bungalow
- Exterior: Brick, Vinyl siding
- Foundation: Concrete
- Sewer: Septic System
Lot & Land
- Features: Wooded area
Community & Neighbourhood
- Building: Fireplace(s)
- Neighbourhood: 1116 - Cumberland West
Room Details (9 rooms)
Listing Information
Listing History
MLS listing activity for 2462 DUNNING ROAD, Ottawa, Ontario, K0A3E0 — dates reflect when changes were recorded in the DDF
Location & Neighborhood
🚗 Travel times
Neighborhood Walkability
Mortgage & Cost Calculators
Nearby Homes ?Nearby Homes — Search CriteriaSearch Radius1 kmPrice Range±5%Match BedroomsYesMatch BathroomsYes
Similar Homes ?Similar Homes — Search CriteriaSearch Radius5 kmPrice Range±5%Match Home TypeYesMatch BedroomsYes

2431 DUNNING ROAD, Ottawa
House$649,900
$3,422/yr taxListing Courtesy of RE/MAX HALLMARK REALTY GROUP

74 MEAGAN LANE, Quinte West (Frankford Ward)
House$625,000
$4,404/yr taxListing Courtesy of KELLER WILLIAMS ENERGY REAL ESTATE

15 - 6 WILDROSE TRAIL, Collingwood
Condo - Row / Townhouse$625,000
$3,890/yr taxListing Courtesy of Century 21 Millennium Inc.

302 - 20 GORE STREET, Kingston (Central City East)
Condo - Apartment$625,000
$5,592/yr taxListing Courtesy of GORDON'S DOWNSIZING & ESTATE SERVICES LTD., BROKERAGE

1215E - 576 FRONT STREET W, Toronto (Waterfront Communities)
Condo - Apartment$625,000
$3,522/yr taxListing Courtesy of RE/MAX DASH REALTY

330 PHILLIP Street Unit# CP232, Waterloo
Condo - Apartment$625,000
$4,206/yr taxListing Courtesy of Chestnut Park Realty Southwestern Ontario Ltd., Brokerage

3211 - 1 BLOOR STREET E, Toronto (Church-Yonge Corridor)
Condo - Apartment$625,000
$4,261/yr taxListing Courtesy of RE/MAX ROUGE RIVER REALTY LTD.

154 FOREST Street E, Dunnville
House$625,000
$3,372/yr taxListing Courtesy of Royal LePage State Realty Inc.

End of Warnock RD, Iron Bridge
Single Family$625,000
$4,750/yr taxListing Courtesy of Royal LePage® Northern Advantage

28 DEARING DRIVE, South Huron (Stephen)
Row / Townhouse$625,000
$3,000/yr taxListing Courtesy of TEAM GLASSER REAL ESTATE BROKERAGE INC.

152 BURNETTS GROVE CIRCLE, Ottawa
House$625,000
$3,851/yr taxListing Courtesy of INNOVATION REALTY LTD.

77556 MELENA DRIVE, Bluewater (Bayfield)
House$625,000
$2,247/yr taxListing Courtesy of RE/MAX Reliable Realty Inc

322 - 55 MERCER STREET, Toronto (Waterfront Communities)
Condo - Apartment$625,000
$1,907/yr taxListing Courtesy of CENTURY 21 ATRIA REALTY INC.

2301 - 88 BLUE JAYS WAY, Toronto (Waterfront Communities)
Condo - Apartment$625,000
$3,718/yr taxListing Courtesy of ROYAL LEPAGE REAL ESTATE SERVICES LTD.

40723 HIGHWAY 17 HIGHWAY, Head, Clara and Maria
Other$625,000
$1,928/yr taxListing Courtesy of ROYAL LEPAGE PROALLIANCE REALTY
Similar Properties ?Active Comparables — Search CriteriaSearch Radius2 kmPrice Range±5%Match Home TypeYesMatch BedroomsYes
No rental comparables found in this area.
Sold Comparables
Access to sold property data requires a registered and verified account with TRREB DDF integration.
Coming SoonRented Comparables
Access to rented property data requires a registered and verified account with TRREB DDF integration.
Coming SoonBook a Viewing
2462 DUNNING ROAD, Ottawa, Ontario, K0A3E0
