243 LAMARCHE AVENUE, Ottawa, Ontario, K1W0M5
MLS: X12965852 | Townhouse (Condo)
$2,150 / monthly












Property Description
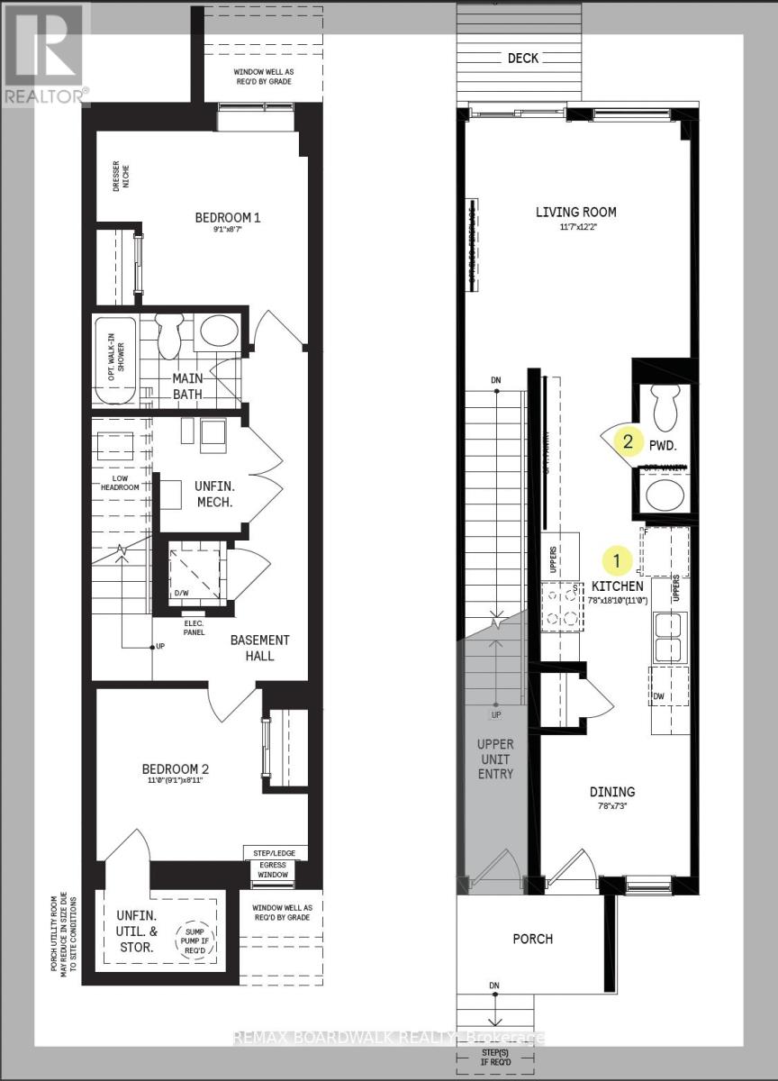
Brand New, Never Lived In! Bright 2-bedroom, 1.5-bathroom lower stacked condo by Caivan with 900 sq ft of living space. Two bedrooms and a full bathroom with a tub/shower combo complete the lower level with laundry, while an open-concept kitchen, living, dining, and powder room shine upstairs. Front and rear yard access which is convenient for groceries. Enjoy all that Orléans Village has to offer, from walking paths and a recreation complex to easy access to transit, Highway 417, shops, and restaurants. Available May 15th! (id:64974)
Quick Facts
- Property Type: Townhouse (Condo)
- Bedrooms: 2 (2 below)
- Bathrooms: 2 (1 half)
- Ownership: Condo/Strata
- Attached: Yes
- Parking: 1.0 space (Garage)
Listing Provided by: REMAX BOARDWALK REALTY
Board: Ottawa Real Estate Board
Data provided via CREA DDF®.
Detailed Features
Interior & Systems
- Heating: Forced air, Natural gas
- Cooling: Central air conditioning
- Basement: None
- Appliances: Washer, Refrigerator, Dishwasher, Stove, Dryer, Water Heater
Exterior & Construction
- Exterior: Stone, Vinyl siding
Lot & Land
- Features: In suite Laundry
Community & Neighbourhood
- Community: Pets not Allowed, Community Centre
- Building: Visitor Parking
- Neighbourhood: 2012 - Chapel Hill South - Orleans Village
Room Details (5 rooms)
Listing Information
Listing History
MLS listing activity for 243 LAMARCHE AVENUE, Ottawa, Ontario, K1W0M5 — dates reflect when changes were recorded in the DDF
🚗 Travel times
Neighborhood Walkability
Mortgage & Cost Calculators
Nearby Homes ?Nearby Homes — Search CriteriaSearch Radius1 kmPrice Range±5%Match BedroomsYesMatch BathroomsYes

516 LOURY ROW, Ottawa
Row / Townhouse$644,900
$4,660/yr taxListing Courtesy of EXP REALTY

2B CERCEAU PRIVATE, Ottawa
Other$2,200/mo
Listing Courtesy of RE/MAX HALLMARK REALTY GROUP

1A CERCEAU PRIVATE, Ottawa
Other$2,400/mo
Listing Courtesy of RE/MAX HALLMARK REALTY GROUP

56 JARGEAU ROAD, Ottawa
Row / Townhouse$685,000
$4,648/yr taxListing Courtesy of LIVIO REAL ESTATE

36 JARGEAU ROAD, Ottawa
Row / Townhouse$649,900
$4,586/yr taxListing Courtesy of ROYAL LEPAGE INTEGRITY REALTY

577 ESCALA PRIVATE, Ottawa
Row / Townhouse$483,990
Listing Courtesy of AVENUE NORTH REALTY INC.

142 AUBRAIS CRESCENT, Ottawa
House$929,999
$6,329/yr taxListing Courtesy of EXECUTIVE HOMES REALTY INC.

6356 MARY JANE CRESCENT, Ottawa
Condo - Row / Townhouse$399,999
$2,783/yr taxListing Courtesy of ROYAL LEPAGE TEAM REALTY

2239 PAGE ROAD, Ottawa
House$1,299,000
$7,000/yr taxListing Courtesy of HOME RUN REALTY INC.

6322 SABLEWOOD PLACE, Ottawa
Row / Townhouse$635,000
$3,817/yr taxListing Courtesy of EXP REALTY

233 BEAUGENCY STREET, Ottawa
House$1,099,900
$6,759/yr taxListing Courtesy of ROYAL LEPAGE PERFORMANCE REALTY

2023 ROLLING BROOK DRIVE, Ottawa
House$829,900
$5,839/yr taxListing Courtesy of ROYAL LEPAGE PERFORMANCE REALTY

1832 LORANGER COURT, Ottawa
Condo - Row / Townhouse$444,000
$2,866/yr taxListing Courtesy of EXP REALTY

36 - 1867 SIMARD DRIVE, Ottawa
Condo - Row / Townhouse$399,900
$2,844/yr taxListing Courtesy of ROYAL LEPAGE INTEGRITY REALTY

2104 SANDY OAKS DRIVE, Ottawa
House$944,900
$5,311/yr taxListing Courtesy of ROYAL LEPAGE INTEGRITY REALTY
Similar Homes ?Similar Homes — Search CriteriaSearch Radius5 kmPrice Range±5%Match Home TypeYesMatch BedroomsYes

2B CERCEAU PRIVATE, Ottawa
Other$2,200/mo
Listing Courtesy of RE/MAX HALLMARK REALTY GROUP

B - 685 EVERLASTING CRESCENT, Ottawa
Other$2,100/mo
Listing Courtesy of ROYAL LEPAGE TEAM REALTY

529 ELM Street Unit# 16, Port Colborne
Apartment$2,050/mo
Listing Courtesy of eXp Realty

16 - 529 ELM STREET, Port Colborne (Main Street)
Condo - Other$2,050/mo
Listing Courtesy of EXP REALTY

4305 - 950 PORTAGE PARKWAY, Vaughan (Vaughan Corporate Centre)
Condo - Apartment$2,050/mo
Listing Courtesy of HOMELIFE LANDMARK REALTY INC.

7 BURBANK PL (MAIN) PLACE, Barrie (Wellington)
House$2,050/mo
Listing Courtesy of EXP REALTY

3309 - 5105 HURONTARIO STREET N, Mississauga (Hurontario)
Condo - Apartment$2,049/mo
Listing Courtesy of PMA BRETHOUR REAL ESTATE CORPORATION INC.

10B - 100 LIBERTY STREET N, Clarington (Bowmanville)
Row / Townhouse$2,049/mo
Listing Courtesy of HOMEWISE REAL ESTATE

2011 - 2550 SIMCOE STREET N, Oshawa (Windfields)
Condo - Apartment$2,049/mo
Listing Courtesy of HOMELIFE LANDMARK REALTY INC.

705 - 319 JARVIS STREET, Toronto (Moss Park)
Condo - Apartment$2,049/mo
Listing Courtesy of RE/MAX MILLENNIUM REAL ESTATE

709 - 931 WONDERLAND ROAD S, London South (South M)
Condo - Apartment$2,049/mo
Listing Courtesy of SUTTON GROUP - SELECT REALTY

127 - 5611 VALLEY WAY, Niagara Falls (Cherrywood)
Condo - Apartment$2,045/mo
Listing Courtesy of RE/MAX HENDRIKS TEAM REALTY

40 PALACE Street Unit# M15, Kitchener
Condo - Apartment$2,045/mo
Listing Courtesy of CONDO CULTURE INC. - BROKERAGE 2

206 - 990 AVENUE ROAD, Toronto (Yonge-Eglinton)
Condo - Apartment$2,045/mo
Listing Courtesy of ROYAL LEPAGE SIGNATURE REALTY

309 - 33318 RICHMOND STREET, Lucan Biddulph (Lucan)
Other$2,045/mo
Listing Courtesy of ROYAL LEPAGE TRILAND REALTY
Similar Properties ?Active Comparables — Search CriteriaSearch Radius2 kmPrice Range±5%Match Home TypeYesMatch BedroomsYes

2B CERCEAU PRIVATE, Ottawa
Other$2,200/mo
Listing Courtesy of RE/MAX HALLMARK REALTY GROUP

B - 685 EVERLASTING CRESCENT, Ottawa
Other$2,100/mo
Listing Courtesy of ROYAL LEPAGE TEAM REALTY

529 ELM Street Unit# 16, Port Colborne
Apartment$2,050/mo
Listing Courtesy of eXp Realty

16 - 529 ELM STREET, Port Colborne (Main Street)
Condo - Other$2,050/mo
Listing Courtesy of EXP REALTY

4305 - 950 PORTAGE PARKWAY, Vaughan (Vaughan Corporate Centre)
Condo - Apartment$2,050/mo
Listing Courtesy of HOMELIFE LANDMARK REALTY INC.

7 BURBANK PL (MAIN) PLACE, Barrie (Wellington)
House$2,050/mo
Listing Courtesy of EXP REALTY

3309 - 5105 HURONTARIO STREET N, Mississauga (Hurontario)
Condo - Apartment$2,049/mo
Listing Courtesy of PMA BRETHOUR REAL ESTATE CORPORATION INC.

10B - 100 LIBERTY STREET N, Clarington (Bowmanville)
Row / Townhouse$2,049/mo
Listing Courtesy of HOMEWISE REAL ESTATE

2011 - 2550 SIMCOE STREET N, Oshawa (Windfields)
Condo - Apartment$2,049/mo
Listing Courtesy of HOMELIFE LANDMARK REALTY INC.

705 - 319 JARVIS STREET, Toronto (Moss Park)
Condo - Apartment$2,049/mo
Listing Courtesy of RE/MAX MILLENNIUM REAL ESTATE

709 - 931 WONDERLAND ROAD S, London South (South M)
Condo - Apartment$2,049/mo
Listing Courtesy of SUTTON GROUP - SELECT REALTY

127 - 5611 VALLEY WAY, Niagara Falls (Cherrywood)
Condo - Apartment$2,045/mo
Listing Courtesy of RE/MAX HENDRIKS TEAM REALTY

40 PALACE Street Unit# M15, Kitchener
Condo - Apartment$2,045/mo
Listing Courtesy of CONDO CULTURE INC. - BROKERAGE 2

206 - 990 AVENUE ROAD, Toronto (Yonge-Eglinton)
Condo - Apartment$2,045/mo
Listing Courtesy of ROYAL LEPAGE SIGNATURE REALTY

309 - 33318 RICHMOND STREET, Lucan Biddulph (Lucan)
Other$2,045/mo
Listing Courtesy of ROYAL LEPAGE TRILAND REALTY
No rental comparables found in this area.
Sold Comparables
Access to sold property data requires a registered and verified account with TRREB DDF integration.
Coming SoonRented Comparables
Access to rented property data requires a registered and verified account with TRREB DDF integration.
Coming SoonBook a Viewing
243 LAMARCHE AVENUE, Ottawa, Ontario, K1W0M5
