2416 SUNNINGDALE ROAD W, Middlesex Centre, Ontario, N6H5L2
MLS: X12991416 | House (Freehold)
$2,099,999



















































Property Description
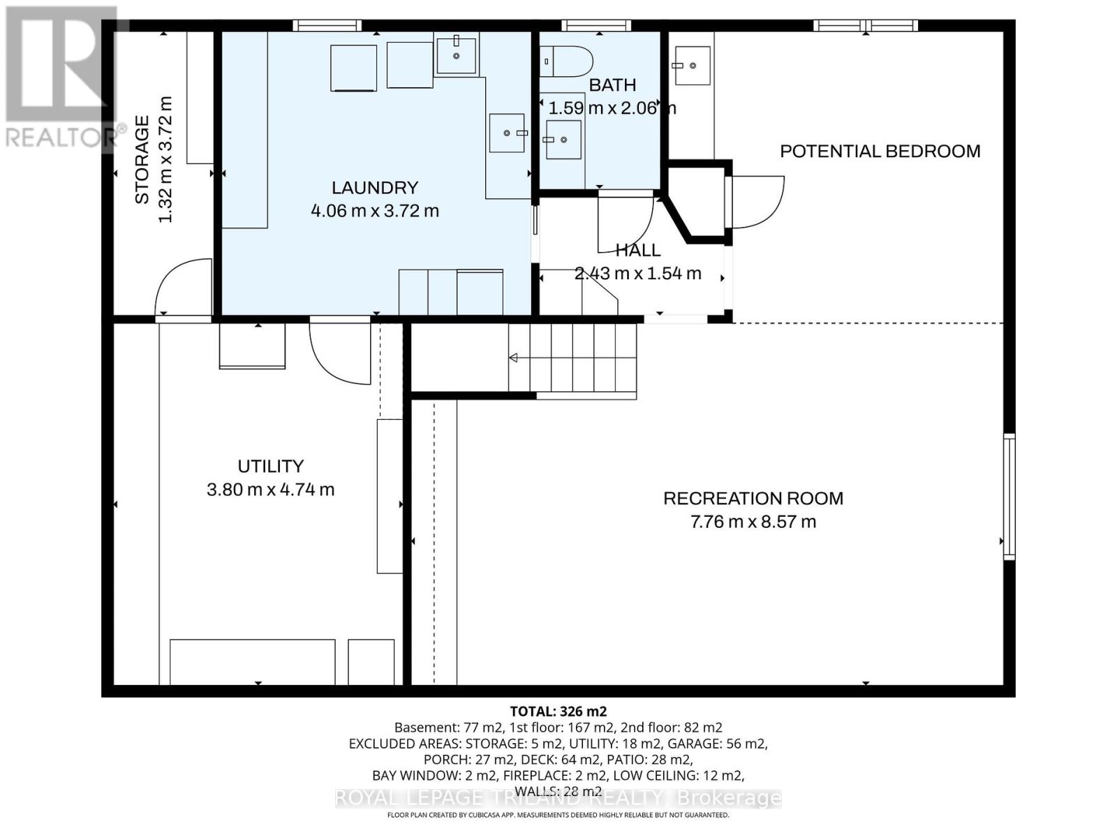
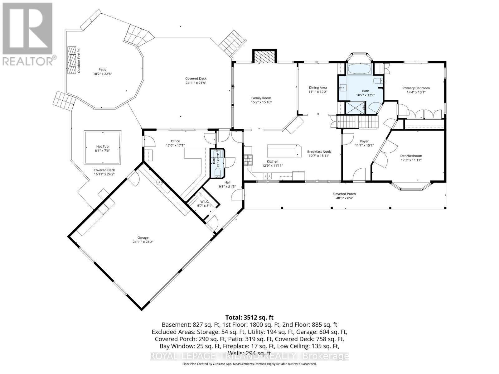
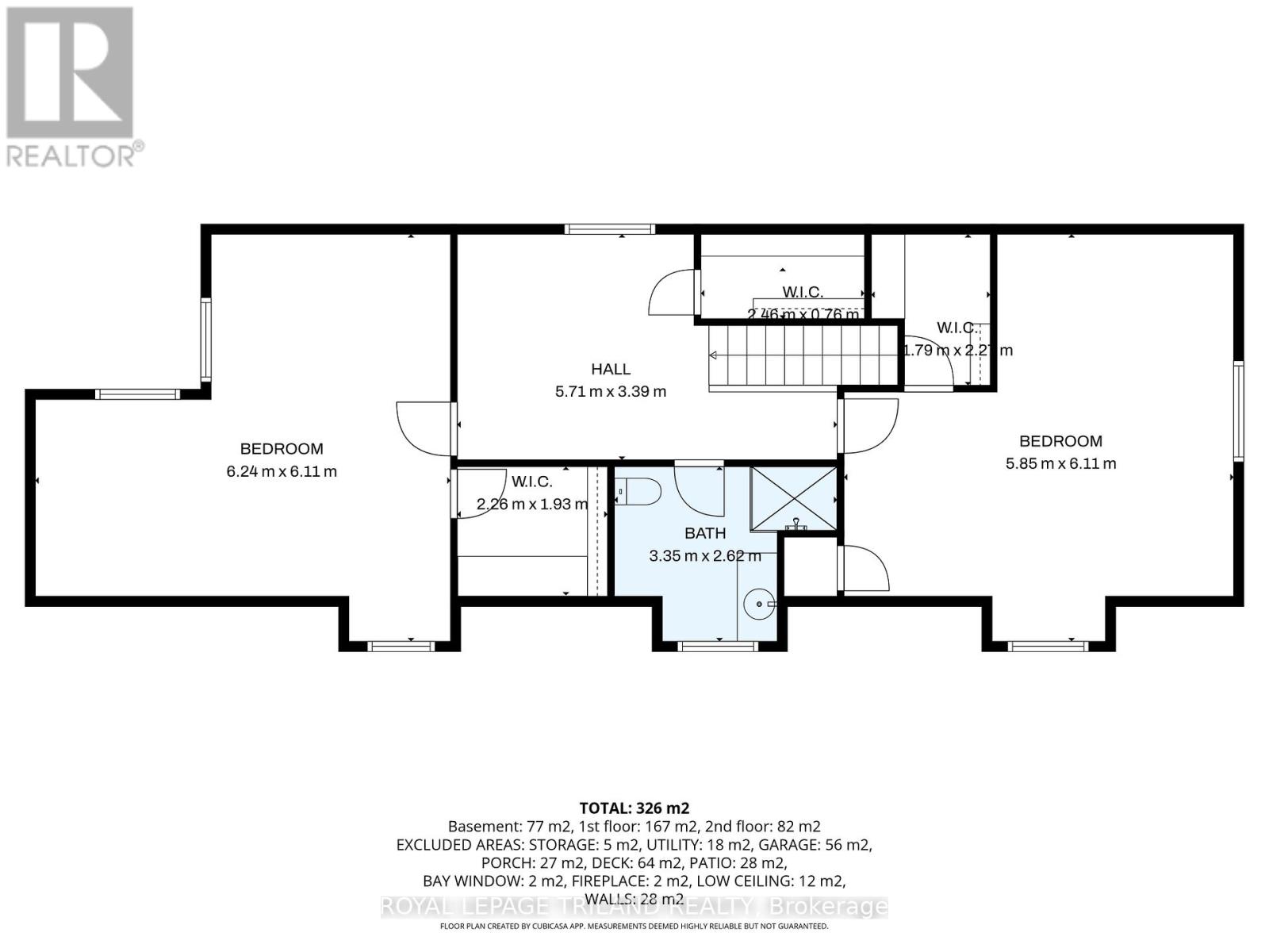
Discover the perfect balance of space, privacy, and convenience with this exceptional country estate situated just steps outside London's city limits. Set on nearly 3 acres of beautifully expansive land, this rare offering provides the tranquility of rural living without sacrificing access to amenities. Your country retreat features over 3,300 square feet of above-grade living space, carefully designed to suit both comfortable living and elegant entertaining. Every room in this home is welcoming, spacious, and filled with natural light. Complemented by picturesque views in all directions that create a warm and inviting atmosphere throughout. The main floor features the primary bedroom, 1.5 bathrooms, a spacious eat-in kitchen, a dining area, a den/bedroom, and a formal living space, enhanced by a versatile room currently used as an office. Upstairs, a private retreat awaits, with two large bedrooms, another full bathroom, and a sitting area. Downstairs, a spacious family room is perfect for movie nights or entertaining. An additional bathroom and laundry room are included, with the potential to add one or two more bedrooms and plenty of storage space. A key feature of this property is the spacious 2,700-square-foot workshop, offering a great opportunity for hobbyists, entrepreneurs, or anyone needing versatile space. Whether you envision a home-based business, vehicle storage, or the ultimate workshop-don't miss this chance. They don't come around often! Surrounded by open skies and mature landscaping, this property is a peaceful sanctuary where wildlife thrives among the ponds, trees and fields surrounding. This property is a peaceful escape from city life stress, yet it remains just minutes from shopping, dining, and schools. It offers a rare chance to enjoy the best of both worlds: peaceful country living with all the conveniences of London nearby. This is more than a home; it's a lifestyle. Experience the space, freedom, and potential you've been waiting for. (id:64974)
Quick Facts
- Property Type: House (Freehold)
- Bedrooms: 4 (4 above)
- Bathrooms: 4 (2 half)
- Ownership: Freehold
- Attached: No
- Fireplaces: Yes
- Parking: 12.0 spaces (Attached Garage, Garage, RV, Inside Entry)
- Frontage: 350 ft (106.7 m)
Costs
- Annual Taxes: $7,431.00 (2026)
Listing Provided by: ROYAL LEPAGE TRILAND REALTY
Board: London and St. Thomas Association of REALTORS®
Data provided via CREA DDF®.
Detailed Features
Interior & Systems
- Heating: Forced air, Propane
- Cooling: Central air conditioning
- Basement: Finished, Full
- Appliances: Washer, Water softener, Hot Tub, Central Vacuum, Range, Dryer, Freezer, Oven - Built-In, Furniture, Garage door opener remote(s), Water Heater
- Utilities: Electricity, Cable
- Security: Alarm system, Smoke Detectors
Exterior & Construction
- Exterior: Wood, Stone
- Foundation: Poured Concrete
- Sewer: Septic System
- Water: Drilled Well
Lot & Land
- Frontage: 350 ft (106.7 m)
- Features: Gazebo, Sump Pump
- Zoning: AR
Community & Neighbourhood
- Community: School Bus
- Building: Fireplace(s)
- Neighbourhood: Rural Middlesex Centre
Room Details (10 rooms)
Listing Information
Listing History
MLS listing activity for 2416 SUNNINGDALE ROAD W, Middlesex Centre, Ontario, N6H5L2 — dates reflect when changes were recorded in the DDF
🚗 Travel times
Neighborhood Walkability
Mortgage & Cost Calculators
Similar Homes ?Similar Homes — Search CriteriaSearch Radius5 kmPrice Range±5%Match Home TypeYesMatch BedroomsYes

1318 CONCESSION 6, Hamilton
House$2,099,999
$11,010/yr taxListing Courtesy of RE/MAX ESCARPMENT REALTY INC.

1318 CONCESSION RD 6 W, Millgrove
House$2,099,999
$11,010/yr taxListing Courtesy of RE/MAX Escarpment Realty Inc.

28 RUSTLEWOOD AVENUE, Kawartha Lakes (Manvers)
House$2,100,000
$7,764/yr taxListing Courtesy of ROYAL SERVICE REAL ESTATE INC.

1520 ROSEMOUNT ROAD, Tay
House$2,100,000
$7,694/yr taxListing Courtesy of FARIS TEAM REAL ESTATE BROKERAGE

155 GEORGIAN BAY LANE, Blue Mountains
Condo$2,100,000
$9,790/yr taxListing Courtesy of Sotheby's International Realty Canada

87 UNIVERSITY AVENUE W, Guelph (Dovercliffe Park/Old University)
House$2,100,000
$8,764/yr taxListing Courtesy of Royal LePage Royal City Realty

7 STARRETT STREET, King (Nobleton)
House$2,100,000
$8,858/yr taxListing Courtesy of Royal LePage Our Neighbourhood Realty

11 MAPLE HILL Drive, Kitchener
House$2,100,000
$14,943/yr taxListing Courtesy of Royal LePage Wolle Realty

17 SIR ADAM BECK ROAD, Stratford
House$2,100,000
$14,151/yr taxListing Courtesy of Home and Company Real Estate Corp Brokerage

156 CRAIGHURST AVENUE, Toronto (Lawrence Park South)
House$2,100,000
$9,434/yr taxListing Courtesy of SAGE REAL ESTATE LIMITED

24518 MCCOWAN ROAD, Georgina (Belhaven)
House$2,100,000
$6,339/yr taxListing Courtesy of RE/MAX HALLMARK CHAY REALTY

152 CONFEDERATION STREET, Halton Hills (Glen Williams)
House$2,100,000
$4,663/yr taxListing Courtesy of ROYAL LEPAGE MEADOWTOWNE REALTY

78 YONGEHURST ROAD, Richmond Hill (North Richvale)
House$2,100,000
$11,608/yr taxListing Courtesy of ROYAL LEPAGE TERREQUITY REALTY

13 JANET LANE, Carling
House$2,100,000
$7,001/yr taxListing Courtesy of RE/MAX Parry Sound Muskoka Realty Ltd

37 MACKAY DRIVE, Richmond Hill (South Richvale)
House$2,100,000
$8,840/yr taxListing Courtesy of REMAX YOUR COMMUNITY REALTY
Similar Properties ?Active Comparables — Search CriteriaSearch Radius2 kmPrice Range±5%Match Home TypeYesMatch BedroomsYes
No active comparables found in this area.
No rental comparables found in this area.
Sold Comparables
Access to sold property data requires a registered and verified account with TRREB DDF integration.
Coming SoonRented Comparables
Access to rented property data requires a registered and verified account with TRREB DDF integration.
Coming SoonBook a Viewing
2416 SUNNINGDALE ROAD W, Middlesex Centre, Ontario, N6H5L2
