2416 MISSISSAUGA ROAD, Mississauga (Sheridan), Ontario, L5H2L1
MLS: W12476807 | House (Freehold)
$4,899,000



















































Property Description
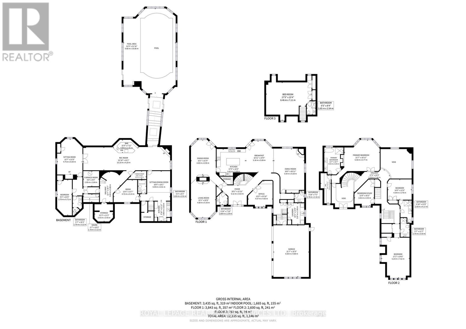
Magnificent Mississauga Estate! Nestled in one of GTA most prestigious Streets, near mega mansion homes! This Mansion offers over 1/2 Acre lot creating a serene, Muskoka-Like Setting, features Quality Custom-Built Boasts outstanding size at 12,321 sqft of Living Space with 8900 sqft above grade (as per floor Plan),a Resort-Style Indoor Swimming Pool! Deep front setback ensures privacy, Exceptional Curb Appeal complemented by the Elegant Architecture, beautiful Landscaped garden, Mature trees, Iron fenced with 2 auto double-door Gates. From glass doors enclosed foyer, you are Invited by a soaring 2-story elegant foyer with solid brass art deco railing spiral stairs. Spectacular Family room features Cathedral-Like open & grand atmosphere. Impressive Living room & Dining rooms showcase 10.5' &10' coffered ceilings, with gorgeous 2-side fireplace between. The State-of-Art chef-inspired gourmet Kitchen features Luxurious elements & huge Custom island; Very spacious breakfast area w/o to sundeck. The office w/wood bookshelves & wall panels. 2 stairs leading to 2nd level, stunning overlooks the family room. Primary Bedroom features 2-side fireplace, new luxury 5pc ensuite, and large windows overlook back garden. Large 2nd bedroom has its own ensuite, A private stairs leading to the huge & tranquil 5th bedroom on 3rd floor offers its own cooling system. Entertaining basement boasts 9' ceiling, self-contained unit, Sauna, 2 bathrooms, Rec room with Wet Bar and walks up to the inspired Indoor Pool with Skylights, perfect for family activities! Interlocking front yard w/Circular Driveway, 3 walkouts leading to East facing back garden, perennial landscaped gardens provide outdoor entertaining and relaxing in tranquility! It located minutes from top-rated schools, shopping centers, Mississauga Golf & Country Club, UTM, Erindale Park, Go Station, easy QEW access. This Estate offers a First-Class Living experience with a blend of Peaceful Retreat & Enriched Home Comforts!! (id:64974)
Quick Facts
- Property Type: House (Freehold)
- Bedrooms: 7 (5 above, 2 below)
- Bathrooms: 8 (2 half)
- Ownership: Freehold
- Attached: No
- Fireplaces: 5
- Parking: 12.0 spaces (Attached Garage, Garage)
- Frontage: 117 ft (35.7 m)
Costs
- Annual Taxes: $27,123.33
Listing Provided by: ROYAL LEPAGE REAL ESTATE SERVICES LTD.
Board: Toronto Regional Real Estate Board
Data provided via CREA DDF®.
Detailed Features
Interior & Systems
- Heating: Forced air, Natural gas
- Cooling: Central air conditioning
- Basement: Finished, Separate entrance, Walk out, N/A, N/A
- Appliances: Refrigerator, Sauna, Central Vacuum, Oven, Microwave, Alarm System, Cooktop, Hood Fan, Window Coverings, Garage door opener remote(s)
- Flooring: Tile, Hardwood
- Security: Alarm system
Exterior & Construction
- Exterior: Brick
- Foundation: Concrete
- Fencing: Fenced yard, Fully Fenced
- Sewer: Sanitary sewer
- Water: Municipal water
Lot & Land
- Frontage: 117 ft (35.7 m)
- Features: Wooded area, Irregular lot size, Conservation/green belt, Sump Pump, In-Law Suite, Sauna
- Pool: Indoor pool
- Zoning: R1
Community & Neighbourhood
- Building: Fireplace(s)
- Neighbourhood: Sheridan
Room Details (18 rooms)
Listing Information
Listing History
MLS listing activity for 2416 MISSISSAUGA ROAD, Mississauga (Sheridan), Ontario, L5H2L1 — dates reflect when changes were recorded in the DDF
🚗 Travel times
Neighborhood Walkability
Mortgage & Cost Calculators
Nearby Homes ?Nearby Homes — Search CriteriaSearch Radius1 kmPrice Range±5%Match BedroomsYesMatch BathroomsYes

2032 SHANNON DRIVE, Mississauga (Sheridan)
House$1,629,000
$9,780/yr taxListing Courtesy of SAM MCDADI REAL ESTATE INC.

1832 CHESBRO COURT, Mississauga (Sheridan)
House$2,999,000
$15,629/yr taxListing Courtesy of CENTURY 21 PERCY FULTON LTD.

1978 SHANNON DRIVE, Mississauga (Sheridan)
House$1,885,000
$9,946/yr taxListing Courtesy of CITYSCAPE REAL ESTATE LTD.

2212 MISSISSAUGA ROAD, Mississauga (Sheridan)
House$1,895,000
$9,788/yr taxListing Courtesy of RE/MAX REAL ESTATE CENTRE INC.

1569 WEMBURY ROAD, Mississauga (Lorne Park)
House$2,999,999
$19,519/yr taxListing Courtesy of ROYAL LEPAGE REAL ESTATE SERVICES PHINNEY REAL ESTATE

2090 STONEHOUSE CRESCENT, Mississauga (Sheridan)
House$2,498,000
$12,272/yr taxListing Courtesy of RIGHT AT HOME REALTY

1962 CALGARY COURT, Mississauga (Lorne Park)
House$2,069,000
$11,052/yr taxListing Courtesy of ROYAL LEPAGE REAL ESTATE SERVICES PHINNEY REAL ESTATE

UPPER - 1749 WEMBURY ROAD, Mississauga (Lorne Park)
House$3,950/mo
Listing Courtesy of RE/MAX GOLD REALTY INC.

LOWER - 1749 WEMBURY ROAD, Mississauga (Lorne Park)
House$2,200/mo
Listing Courtesy of RE/MAX GOLD REALTY INC.

1585 CROMBIE ROAD, Mississauga (Lorne Park)
House$1,649,000
$9,656/yr taxListing Courtesy of REAL ONE REALTY INC.

1549 ELITE ROAD, Mississauga (Lorne Park)
House$2,560,000
$12,324/yr taxListing Courtesy of HOMELIFE LANDMARK REALTY INC.

1649 WEDMORE WAY, Mississauga (Lorne Park)
House$2,699,000
$18,403/yr taxListing Courtesy of CENTURY 21 PERCY FULTON LTD.
Similar Homes ?Similar Homes — Search CriteriaSearch Radius5 kmPrice Range±5%Match Home TypeYesMatch BedroomsYes

3346 LAKESHORE Road W, Oakville
House$4,899,000
$18,145/yr taxListing Courtesy of RE/MAX Escarpment Realty Inc.

3346 LAKESHORE ROAD W, Oakville (BR Bronte)
House$4,899,000
$18,145/yr taxListing Courtesy of RE/MAX Escarpment Realty Inc., Brokerage

16067 HEART LAKE ROAD, Caledon
House$4,900,000
$14,219/yr taxListing Courtesy of COMMITMENT REALTY LTD.

2623 CON 10 N NOTTAWASAGA SIDE ROAD N, Clearview
House$4,900,000
$7,549/yr taxListing Courtesy of Royal LePage Locations North

1516 DUNCAN ROAD, Oakville (MO Morrison)
House$4,895,000
$14,924/yr taxListing Courtesy of Engel & Volkers Oakville

3122 CEDAR SPRINGS Road, Burlington
House$4,890,000
$17,972/yr taxListing Courtesy of Keller Williams Edge Realty

3122 CEDAR SPRINGS ROAD, Burlington
House$4,890,000
$17,972/yr taxListing Courtesy of KELLER WILLIAMS EDGE REALTY

5735 CONCESSION RD 6, Adjala-Tosorontio
House$4,890,000
$10,160/yr taxListing Courtesy of COLDWELL BANKER RONAN REALTY

46 ADMIRAL ROAD, Toronto (Annex)
House$4,850,000
$17,540/yr taxListing Courtesy of CHESTNUT PARK REAL ESTATE LIMITED

B433 CAMPBELL ISLAND, TWP. OF THE ARCHIPELAGO, The Archipelago (Archipelago)
House$4,950,000
$15,545/yr taxListing Courtesy of ROYAL LEPAGE MEADOWTOWNE REALTY

6952 SECOND LINE, New Tecumseth
House$4,950,000
$7,115/yr taxListing Courtesy of MOFFAT DUNLAP REAL ESTATE LIMITED

18 DEXSHIRE DRIVE, Ajax (Northeast Ajax)
House$4,950,000
$41,965/yr taxListing Courtesy of SUTTON GROUP-HERITAGE REALTY INC.

700 - 38 AVENUE ROAD, Toronto (Annex)
Condo - Apartment$4,980,000
$21,062/yr taxListing Courtesy of SUTTON GROUP OLD MILL REALTY INC.

63 GORDON ROAD, Toronto (St. Andrew-Windfields)
House$4,980,000
$23,447/yr taxListing Courtesy of RE/MAX REALTRON BARRY COHEN HOMES INC.

48 SILVERGROVE ROAD, Toronto (St. Andrew-Windfields)
House$4,988,000
$17,970/yr taxListing Courtesy of REAL BROKER ONTARIO LTD.
Similar Properties ?Active Comparables — Search CriteriaSearch Radius2 kmPrice Range±5%Match Home TypeYesMatch BedroomsYes
No active comparables found in this area.
No rental comparables found in this area.
Sold Comparables
Access to sold property data requires a registered and verified account with TRREB DDF integration.
Coming SoonRented Comparables
Access to rented property data requires a registered and verified account with TRREB DDF integration.
Coming SoonBook a Viewing
2416 MISSISSAUGA ROAD, Mississauga (Sheridan), Ontario, L5H2L1
