2406 - 10 DEERLICK COURT, Toronto (Parkwoods-Donalda), Ontario, M3A0A7
MLS: C12989748 | Apartment (Condo)
$528,000





































Property Description
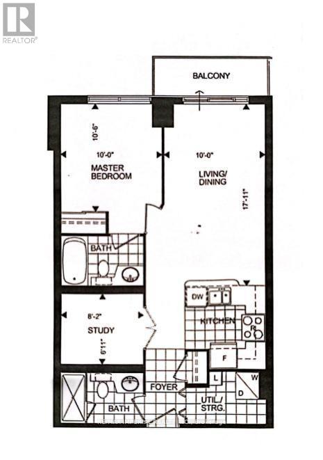
Experience the perfect balance of nature, modern design, and urban convenience in this beautifully upgraded penthouse-level 1+1 bedroom, 2-bathroom suite, complete with parking, set within the sought-after Ravine community. This north-facing residence offers 679 sq ft of thoughtfully designed living space (629 sq ft interior + 50 sq ft balcony) and is enhanced by impressive 10-ft ceilings that create a bright, open, and airy atmosphere. The open-concept kitchen is tastefully upgraded with quartz countertops, sleek cabinetry, stainless steel appliances, an upgraded stovetop, and convenient in-suite laundry. Stylish laminate flooring runs throughout, creating a clean and modern aesthetic.A standout feature of this offering is the premium parking space, ideally located on the first level just steps from the elevator for ultimate day-to-day convenience. The unit also includes a highly desirable ground-floor locker, making storage access quick and effortless.Ideally located with TTC access right at your doorstep and quick connections to Hwy 401 and the DVP, commuting is seamless. Enjoy nearby shopping and dining at Shops at Don Mills and Fairview Mall, while nature lovers will appreciate the peaceful surroundings of Brookbanks Park and the Deerlick Court Ravine just steps away. Residents enjoy an impressive collection of amenities including a 24-hour concierge, fitness centre with yoga studio, party and games rooms, rooftop sundeck lounge, outdoor terrace with BBQ and dining areas, dog spa, kids playroom, and visitor parking. Looking ahead, Phase II of The Ravine will introduce an exclusive residents-only clubhouse and indoor pool, further enhancing the lifestyle offering of this exceptional community. (id:64974)
Quick Facts
- Property Type: Apartment (Condo)
- Bedrooms: 2 (1 above, 1 below)
- Bathrooms: 2
- Ownership: Condo/Strata
- Attached: Yes
- Parking: 1.0 space (Garage, Underground)
Costs
- Annual Taxes: $2,650.00
- Condo/HOA Fee: $488.97 / monthly
- Corp: First Service Residential
- Includes: Common Area Maintenance, Heat, Insurance, Parking
Listing Provided by: RE/MAX WEST REALTY INC.
Board: Toronto Regional Real Estate Board
Data provided via CREA DDF®.
Detailed Features
Interior & Systems
- Heating: Forced air, Natural gas
- Cooling: Central air conditioning
- Basement: None
- Appliances: Washer, Refrigerator, Dishwasher, Stove, Dryer, Window Coverings
- Flooring: Laminate
Exterior & Construction
- Exterior: Concrete
Lot & Land
- Features: Balcony, Carpet Free
- Pool: Indoor pool
Community & Neighbourhood
- Community: Pets Allowed With Restrictions
- Building: Storage - Locker, Exercise Centre, Recreation Centre, Party Room, Security/Concierge
- Neighbourhood: Parkwoods-Donalda
Room Details (4 rooms)
Listing Information
Listing History
MLS listing activity for 2406 - 10 DEERLICK COURT, Toronto (Parkwoods-Donalda), Ontario, M3A0A7 — dates reflect when changes were recorded in the DDF
🚗 Travel times
Neighborhood Walkability
Mortgage & Cost Calculators
Nearby Homes ?Nearby Homes — Search CriteriaSearch Radius1 kmPrice Range±5%Match BedroomsYesMatch BathroomsYes

605 - 18 VALLEY WOODS ROAD, Toronto (Parkwoods-Donalda)
Condo - Apartment$519,900
$2,217/yr taxListing Courtesy of RE/MAX ACE REALTY INC.

310 - 18 VALLEY WOODS ROAD, Toronto (Parkwoods-Donalda)
Condo - Apartment$515,000
$2,111/yr taxListing Courtesy of RARE REAL ESTATE

1206 - 10 DEERLICK COURT, Toronto (Parkwoods-Donalda)
Condo - Apartment$2,300/mo
Listing Courtesy of WORLD CLASS REALTY POINT

2108 - 10 DEERLICK COURT, Toronto (Parkwoods-Donalda)
Condo - Apartment$2,250/mo
Listing Courtesy of COLDWELL BANKER THE REAL ESTATE CENTRE

304 - 10 DEERLICK COURT, Toronto (Parkwoods-Donalda)
Condo - Apartment$1,900/mo
Listing Courtesy of RIGHT AT HOME REALTY

1606 - 10 DEERLICK COURT, Toronto (Parkwoods-Donalda)
Condo - Apartment$2,350/mo
Listing Courtesy of CENTURY 21 ATRIA REALTY INC.

2310 - 10 DEERLICK COURT, Toronto (Parkwoods-Donalda)
Condo - Apartment$2,400/mo
Listing Courtesy of HOMELIFE NEW WORLD REALTY INC.

1501 - 10 DEERLICK COURT E, Toronto (Parkwoods-Donalda)
Condo - Apartment$2,499/mo
Listing Courtesy of REALBIZ REALTY INC.

104 - 10 DEERLICK COURT, Toronto (Parkwoods-Donalda)
Condo - Apartment$2,150/mo
Listing Courtesy of RE/MAX DASH REALTY

605 - 10 DEERLICK COURT, Toronto (Parkwoods-Donalda)
Condo - Apartment$497,800
$2,511/yr taxListing Courtesy of RE/MAX ALL-STARS REALTY INC.

202 - 10 DEERLICK COURT, Toronto (Parkwoods-Donalda)
Condo - Apartment$2,200/mo
Listing Courtesy of RE/MAX WEST REALTY INC.

913 - 10 DEERLICK CRESCENT, Toronto (Parkwoods-Donalda)
Condo - Apartment$2,350/mo
Listing Courtesy of ROYAL LEPAGE IGNITE REALTY

514 - 10 DEERLICK COURT, Toronto (Parkwoods-Donalda)
Condo - Apartment$2,300/mo
Listing Courtesy of HOMELIFE/BAYVIEW REALTY INC.

810 - 10 DEERLICK COURT, Toronto (Parkwoods-Donalda)
Condo - Apartment$649,900
$3,299/yr taxListing Courtesy of CMI REAL ESTATE INC.

1310 - 10 DEERLICK COURT, Toronto (Parkwoods-Donalda)
Condo - Apartment$2,600/mo
Listing Courtesy of RE/MAX ULTIMATE REALTY INC.
Similar Homes ?Similar Homes — Search CriteriaSearch Radius5 kmPrice Range±5%Match Home TypeYesMatch BedroomsYes

108 - 1720 EGLINTON AVENUE E, Toronto (Victoria Village)
Condo - Apartment$529,999
$2,346/yr taxListing Courtesy of LPT REALTY

603 - 15 SINGER COURT, Toronto (Bayview Village)
Condo - Apartment$525,000
$2,458/yr taxListing Courtesy of RE/MAX ALL-STARS REALTY INC.

324 - 1210 DON MILLS ROAD, Toronto (Banbury-Don Mills)
Condo - Apartment$525,000
$2,541/yr taxListing Courtesy of ROYAL LEPAGE SIGNATURE REALTY

309 - 3220 SHEPPARD AVENUE E, Toronto (Tam O'Shanter-Sullivan)
Condo - Apartment$525,000
$2,036/yr taxListing Courtesy of RE/MAX REAL ESTATE CENTRE INC.

3220 SHEPPARD Avenue E, Toronto
Condo - Apartment$525,000
$2,035/yr taxListing Courtesy of RE/MAX Real Estate Centre Inc.

813 - 1720 EGLINTON AVENUE E, Toronto (Victoria Village)
Condo - Apartment$534,900
$2,149/yr taxListing Courtesy of Royal LePage Our Neighbourhood Realty

610 - 2150 LAWRENCE AVENUE, Toronto (Wexford-Maryvale)
Condo - Apartment$535,000
$1,950/yr taxListing Courtesy of SOLTANIAN REAL ESTATE INC.

1206 - 66 FOREST MANOR ROAD, Toronto (Henry Farm)
Condo - Apartment$536,000
$3,273/yr taxListing Courtesy of HOMELIFE NEW WORLD REALTY INC.

808 - 95 MCMAHON DRIVE, Toronto (Bayview Village)
Condo - Apartment$520,000
$2,488/yr taxListing Courtesy of PROMPTON REAL ESTATE SERVICES CORP.

605 - 18 VALLEY WOODS ROAD, Toronto (Parkwoods-Donalda)
Condo - Apartment$519,900
$2,217/yr taxListing Courtesy of RE/MAX ACE REALTY INC.

PH2 - 35 BRIAN PECK CRESCENT, Toronto (Thorncliffe Park)
Condo - Apartment$519,000
$2,617/yr taxListing Courtesy of RE/MAX HALLMARK REALTY LTD.

3710 - 55 ANN O'REILLY ROAD, Toronto (Henry Farm)
Condo - Apartment$518,800
$2,634/yr taxListing Courtesy of RIGHT AT HOME REALTY

#1507 - 27 MCMAHON DRIVE, Toronto (Bayview Village)
Condo - Apartment$538,000
$2,877/yr taxListing Courtesy of HOMELIFE LANDMARK RH REALTY

313 - 50 FOREST MANOR ROAD, Toronto (Henry Farm)
Condo - Apartment$518,000
$2,315/yr taxListing Courtesy of HOMELIFE LANDMARK REALTY INC.

307 - 19 BARBERRY PLACE, Toronto (Bayview Village)
Condo - Apartment$518,000
$2,390/yr taxListing Courtesy of RE/MAX IMPERIAL REALTY INC.
Similar Properties ?Active Comparables — Search CriteriaSearch Radius2 kmPrice Range±5%Match Home TypeYesMatch BedroomsYes

1206 - 66 FOREST MANOR ROAD, Toronto (Henry Farm)
Condo - Apartment$536,000
$3,273/yr taxListing Courtesy of HOMELIFE NEW WORLD REALTY INC.

605 - 18 VALLEY WOODS ROAD, Toronto (Parkwoods-Donalda)
Condo - Apartment$519,900
$2,217/yr taxListing Courtesy of RE/MAX ACE REALTY INC.

3710 - 55 ANN O'REILLY ROAD, Toronto (Henry Farm)
Condo - Apartment$518,800
$2,634/yr taxListing Courtesy of RIGHT AT HOME REALTY

313 - 50 FOREST MANOR ROAD, Toronto (Henry Farm)
Condo - Apartment$518,000
$2,315/yr taxListing Courtesy of HOMELIFE LANDMARK REALTY INC.

1208 - 66 FOREST MANOR ROAD, Toronto (Henry Farm)
Condo - Apartment$538,000
$3,356/yr taxListing Courtesy of HOMELIFE LANDMARK REALTY INC.

1338 YORK MILLS Road Unit# 1603, North York
Condo - Apartment$540,000
$1,478/yr taxListing Courtesy of RE/MAX Real Estate Centre Inc.

310 - 18 VALLEY WOODS ROAD, Toronto (Parkwoods-Donalda)
Condo - Apartment$515,000
$2,111/yr taxListing Courtesy of RARE REAL ESTATE

608 - 55 ANN O'REILLY ROAD, Toronto (Henry Farm)
Condo - Apartment$549,000
$2,873/yr taxListing Courtesy of REMAX YOUR COMMUNITY REALTY

414 - 38 FOREST MANOR ROAD, Toronto (Henry Farm)
Condo - Apartment$549,990
$2,828/yr taxListing Courtesy of SKYLETTE MARKETING REALTY INC.

1311 - 62 FOREST MANOR ROAD, Toronto (Henry Farm)
Condo - Apartment$2,900/mo
Listing Courtesy of HOMELIFE NEW WORLD REALTY INC.

1109 - 275 YORKLAND BOULEVARD, Toronto (Henry Farm)
Condo - Apartment$2,895/mo
Listing Courtesy of ROYAL LEPAGE TERREQUITY REALTY

803 - 36 FOREST MANOR ROAD, Toronto (Henry Farm)
Condo - Apartment$2,850/mo
Listing Courtesy of HOMELIFE LANDMARK REALTY INC.

808 - 18 VALLEY WOODS ROAD, Toronto (Parkwoods-Donalda)
Condo - Apartment$2,800/mo
Listing Courtesy of BOSLEY REAL ESTATE LTD.

108 - 36 FOREST MANOR ROAD, Toronto (Henry Farm)
Condo - Apartment$2,800/mo
Listing Courtesy of RE/MAX HALLMARK FIRST GROUP REALTY LTD.

2309 - 18 GRAYDON HALL DR DRIVE, Toronto (Parkwoods-Donalda)
Condo - Apartment$2,750/mo
Listing Courtesy of RE/MAX HALLMARK REALTY LTD.

3210 - 2015 SHEPPARD AVENUE E, Toronto (Henry Farm)
Condo - Apartment$2,750/mo
Listing Courtesy of ROYAL LEPAGE SIGNATURE REALTY

705 - 52 FOREST MANOR ROAD, Toronto (Henry Farm)
Condo - Apartment$2,720/mo
Listing Courtesy of SMART SOLD REALTY

4303 - 325 YORKLAND BOULEVARD, Toronto (Henry Farm)
Condo - Apartment$2,650/mo
Listing Courtesy of HOMELIFE/FUTURE REALTY INC.

2304 - 50 FOREST MANOR ROAD, Toronto (Henry Farm)
Condo - Apartment$2,650/mo
Listing Courtesy of CENTURY 21 ATRIA REALTY INC.

608 - 55 ANN O'REILLY ROAD, Toronto (Henry Farm)
Condo - Apartment$2,600/mo
Listing Courtesy of REMAX YOUR COMMUNITY REALTY

303 - 56 FOREST MANOR ROAD, Toronto (Henry Farm)
Condo - Apartment$2,600/mo
Listing Courtesy of HOMELIFE LANDMARK REALTY INC.

1310 - 10 DEERLICK COURT, Toronto (Parkwoods-Donalda)
Condo - Apartment$2,600/mo
Listing Courtesy of RE/MAX ULTIMATE REALTY INC.

186 - 65 CURLEW DRIVE, Toronto (Parkwoods-Donalda)
Condo - Row / Townhouse$2,599/mo
Listing Courtesy of HOMELIFE/MIRACLE REALTY LTD

2601 - 70 FOREST MANOR ROAD, Toronto (Henry Farm)
Condo - Apartment$2,590/mo
Listing Courtesy of RE/MAX EXCEL REALTY LTD.
Sold Comparables
Access to sold property data requires a registered and verified account with TRREB DDF integration.
Coming SoonRented Comparables
Access to rented property data requires a registered and verified account with TRREB DDF integration.
Coming SoonRequest a Tour
2406 - 10 DEERLICK COURT, Toronto (Parkwoods-Donalda), Ontario, M3A0A7
