24 BRIAR HILL ROAD, Rideau Lakes, Ontario, K0E1N0
MLS: X12833348 | House (Freehold)
$399,000





















Property Description
Discover the opportunity to put your personal touch on this 2 bedroom, 1 bathroom home, started in 2022 and ready for its new owners vision. Much of the hard work has already been completed, with only finishing touches left to transform it into your dream property. Built on a Legalett 3200E GeoSlab foundation, the home features electric in-slab radiant floor heating, keeping the entire house evenly heated from the ground up. Set on a property surrounded by mature trees, the home offers both privacy and natural beauty. Adding to its unique appeal, the property also includes the historic Morton schoolhouse, now upgraded with 200-amp service, it's a versatile space with endless possibilities as a workshop, studio, guesthouse, or a remarkable restoration project. This home is perfect for anyone looking for a unique property with room to add their personal touch. Don't miss this rare chance to create a home that reflects your style, all while enjoying the benefits of modern construction paired with a piece of local history. (id:64974)
Quick Facts
- Property Type: House (Freehold)
- Style: Bungalow
- Bedrooms: 2 (2 above)
- Bathrooms: 1
- Ownership: Freehold
- Attached: No
- Parking: 10 spaces (No Garage)
- Frontage: 281 ft (85.6 m)
Costs
- Annual Taxes: $999.54
Listing Provided by: RIDEAU REALTY LIMITED
Board: Rideau - St. Lawrence Real Estate Board
Data provided via CREA DDF®.
Detailed Features
Interior & Systems
- Heating: Other
- Cooling: None
- Basement: None
- Appliances: Washer, Refrigerator, Dishwasher, Stove, Dryer, Microwave, Hood Fan
Exterior & Construction
- Style: Bungalow
- Foundation: Slab
- Sewer: Septic System
Lot & Land
- Frontage: 281 ft (85.6 m)
- Features: Irregular lot size, Carpet Free
- Zoning: RG
Community & Neighbourhood
- Neighbourhood: 817 - Rideau Lakes (South Crosby) Twp
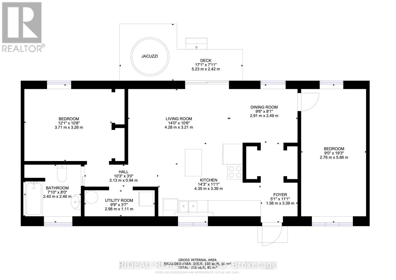
Room Details (7 rooms)
Listing Information
Listing History
Buy/Sell/Terminated/Expired listing history for 24 BRIAR HILL ROAD, Rideau Lakes, Ontario, K0E1N0
Location & Neighborhood
🚗 Travel times
Neighborhood Walkability
Mortgage & Cost Calculators
Nearby Homes (Within 2km)
Similar Homes
Similar Properties
No rental comparables found in this area.
Sold Comparables
Access to sold property data requires a registered and verified account with TRREB DDF integration.
Coming SoonRented Comparables
Access to rented property data requires a registered and verified account with TRREB DDF integration.
Coming Soon











