24 & 25 - 11 PATTERSON ROAD, Barrie (0 North), Ontario, L4N7W5
MLS: S12670086 | Offices
$1,001,000

































Property Description
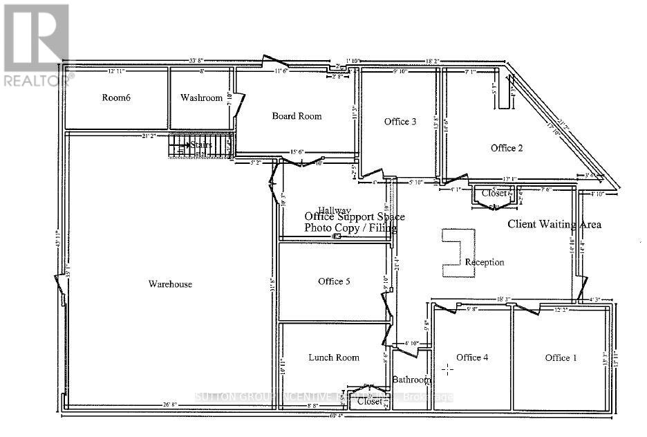
Stop paying someone else's mortgage -- own your workspace in the heart of Barrie, just minutes from downtown and Hwy 400. This professionally finished office spans two commercial condo units and was fully renovated in 2019. The front office area features a welcoming reception, waiting area, bright boardroom with custom glass doors, staff/lunch room, four private offices, open work area, and two washrooms -- ideal for a wide range of professional users. At the rear, utilize an approximate 740 SF of warehouse space with a 19' clear height and a 10' x 12' roll-up door, plus an additional 182 SF mezzanine for extra storage. Comfort and efficiency are covered with ductless heat pumps in the front offices for added cooling (2020), updated central air (2020), and a new forced-air natural gas furnace (2023).Included are a built-in custom desk and hutch in the angled office, custom blinds throughout, fridge, dishwasher, microwave, HWT (owned) and boardroom table. Additional furnishings (including copier) may be available, subject to negotiation. Flexible possession. Monthly condo fees of $775.93 include water/sewer, snow removal, landscaping, insurance, management, non-exclusive parking, and building envelope maintenance. (id:64974)
Quick Facts
- Property Type: Offices
- Bedrooms: None
- Bathrooms: 2
- Living Area: 3,080 sq ft (286.1 m²)
Costs
- Annual Taxes: $7,219.82 (2025)
Listing Provided by: SUTTON GROUP INCENTIVE REALTY INC.
Board: Toronto Regional Real Estate Board
Data provided via CREA DDF®.
Detailed Features
Interior & Systems
- Heating: Forced air, Natural gas
- Cooling: Fully air conditioned
- Appliances: Dishwasher, Microwave, Blinds
Exterior & Construction
- Water: Municipal water
Lot & Land
- Zoning: HI (SP-135) - Highway Industrial
Community & Neighbourhood
- Neighbourhood: 400 North
Listing Information
Listing History
Buy/Sell/Terminated/Expired listing history for 24 & 25 - 11 PATTERSON ROAD, Barrie (0 North), Ontario, L4N7W5
Location & Neighborhood
🚗 Travel times
Neighborhood Walkability
Mortgage & Cost Calculators
Nearby Homes (Within 2km)
Similar Homes
Similar Properties
No rental comparables found in this area.
Sold Comparables
Access to sold property data requires a registered and verified account with TRREB DDF integration.
Coming SoonRented Comparables
Access to rented property data requires a registered and verified account with TRREB DDF integration.
Coming Soon

































