2350 GAINER STREET, Thorold (Allanburg/Thorold South), Ontario, L0S1A0
MLS: X12918944 | House (Freehold)
$2,999,900


















































Property Description
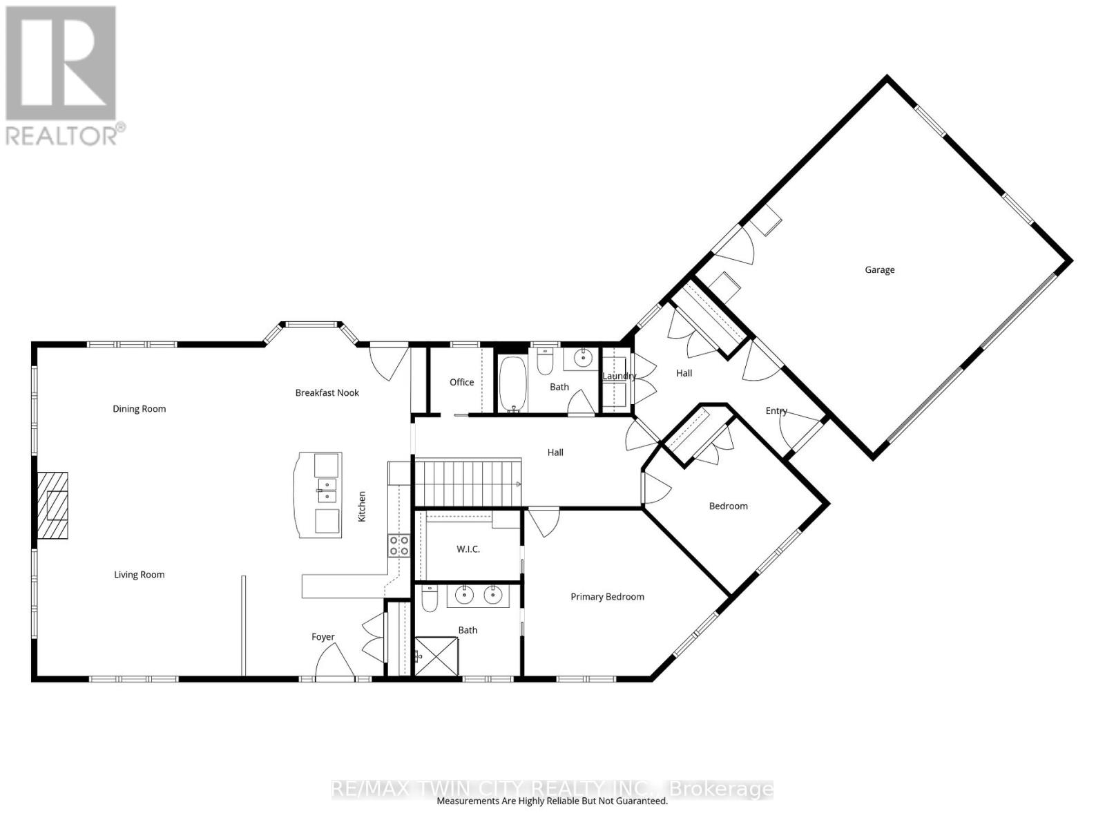
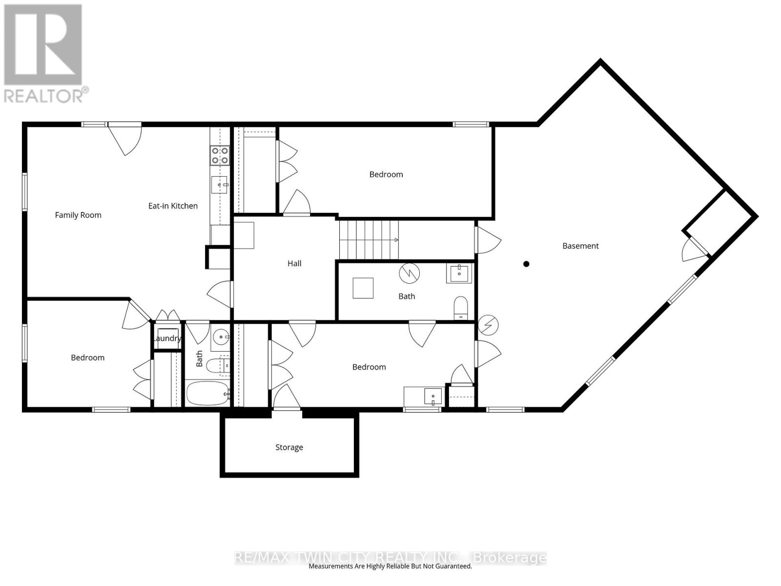
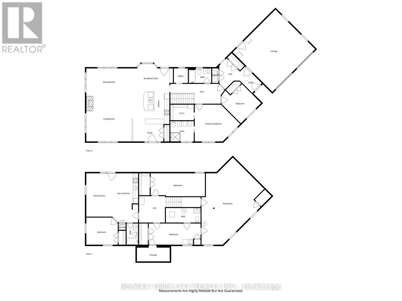
Welcome to 2350 Grainer Street in Thorold (Allanburg), a truly one-of-a-kind opportunity for hockey-loving families or entrepreneurs seeking a property that blends luxury living with strong income potential. This full brick bungalow offers approximately 3,000 sq. ft. of living space and was originally built by a builder for personal use, showcasing thoughtful design and quality construction throughout. The walkout basement features a private accessory dwelling unit complete with a full kitchen and separate entrance, ideal for extended family or rental income. Set on 5.95 acres with current development potential, the property includes a remarkable 120' x 80' detached structure housing a professional 80' x 40' ice rink, a fully equipped gym, and dedicated Zamboni room, all built with efficiency and high-quality materials in mind. The hobby business operated on-site has recently generated approximately $500,000 annually, presenting a turnkey revenue opportunity. Outdoors, enjoy a private retreat with an in-ground pool, expansive yard, pond, multiple patios, and an impressive 86-foot three-tier deck perfect for entertaining. The property will be sold furnished, with all rink, gym, pool, and lawn equipment included. Zoned R1A - Site Specific, it permits a home-based hockey training facility. Located on municipal services in a private setting with quick access to water and walking trails, this central location is just 3 km from St. Catharines, 10-20 minutes to Niagara Falls and surrounding towns, and 30 minutes to Buffalo, NY. Offering a rare combination of lifestyle, space, and business potential, this property is truly exceptional. (id:64974)
Quick Facts
- Property Type: House (Freehold)
- Style: Bungalow
- Bedrooms: 4 (4 above)
- Bathrooms: 4 (1 half)
- Ownership: Freehold
- Attached: No
- Fireplaces: Yes
- Parking: 12.0 spaces (Attached Garage, Garage)
- Frontage: 79 ft (24.1 m)
Costs
- Annual Taxes: $8,800.00
Listing Provided by: RE/MAX TWIN CITY REALTY INC.
Board: Toronto Regional Real Estate Board
Data provided via CREA DDF®.
Detailed Features
Interior & Systems
- Heating: Forced air, Natural gas
- Cooling: Central air conditioning
- Basement: Partially finished, N/A
- Appliances: Washer, Refrigerator, Dishwasher, Stove, Dryer, Microwave, Furniture, Window Coverings
Exterior & Construction
- Style: Bungalow
- Exterior: Brick
- Foundation: Poured Concrete
- Sewer: Sanitary sewer
- Water: Municipal water
Lot & Land
- Frontage: 79 ft (24.1 m)
- Pool: Inground pool
Community & Neighbourhood
- Neighbourhood: 556 - Allanburg/Thorold South
Room Details (18 rooms)
Listing Information
Listing History
MLS listing activity for 2350 GAINER STREET, Thorold (Allanburg/Thorold South), Ontario, L0S1A0 — dates reflect when changes were recorded in the DDF
🚗 Travel times
Neighborhood Walkability
Mortgage & Cost Calculators
Nearby Homes ?Nearby Homes — Search CriteriaSearch Radius1 kmPrice Range±5%Match BedroomsYesMatch BathroomsYes

2350 GAINER Street, Allanburg
House$2,999,900
$8,800/yr taxListing Courtesy of Re/Max Twin City Realty Inc

2240 CENTRE STREET, Thorold (Port Robinson)
House$729,000
Listing Courtesy of EMERALD REALTY GROUP LTD

1 ANCHOR ROAD, Thorold (Port Robinson)
House$1,450,000
$1,806/yr taxListing Courtesy of REVEL Realty Inc., Brokerage

16 (LOT 21) ANCHOR ROAD, Thorold (Allanburg/Thorold South)
House$899,999
Listing Courtesy of REVEL Realty Inc., Brokerage

40 ANCHOR ROAD, Thorold (Allanburg/Thorold South)
House$899,900
Listing Courtesy of REVEL Realty Inc., Brokerage

39 ANCHOR ROAD, Thorold (Allanburg/Thorold South)
House$999,999
Listing Courtesy of REVEL Realty Inc., Brokerage

229 VANILLA Trail, Thorold
House$749,900
$6,615/yr taxListing Courtesy of eXp Realty (Team Branch)

229 VANILLA TRAIL, Thorold (Rolling Meadows)
House$749,900
$6,615/yr taxListing Courtesy of EXP REALTY

212 VANILLA TRAIL, Thorold (Rolling Meadows)
House$749,000
$5,921/yr taxListing Courtesy of PONTIS REALTY INC.
Similar Homes ?Similar Homes — Search CriteriaSearch Radius5 kmPrice Range±5%Match Home TypeYesMatch BedroomsYes

2350 GAINER Street, Allanburg
House$2,999,900
$8,800/yr taxListing Courtesy of Re/Max Twin City Realty Inc

40 AUTUMN OLIVE WAY, Brampton (Toronto Gore Rural Estate)
House$2,999,900
$19,222/yr taxListing Courtesy of RE/MAX GOLD REALTY INC.

28 AVENUE ROAD, Richmond Hill (North Richvale)
House$2,999,900
$8,048/yr taxListing Courtesy of ROYAL LEPAGE URBAN REALTY

3503 LAKESHORE Road, Lincoln
House$2,999,900
$5,882/yr taxListing Courtesy of RE/MAX Escarpment Realty Inc.

2600 MAPLE Street, Pelham
House$2,999,900
$15,070/yr taxListing Courtesy of Real Broker Ontario Ltd.

538 RISHOR AVENUE, Douro-Dummer
House$2,999,900
$13,621/yr taxListing Courtesy of RE/MAX HALLMARK EASTERN REALTY

1316 DUNDAS Street, Burlington
House$2,999,900
$10,095/yr taxListing Courtesy of Keller Williams Edge Realty

60 SIR ROBERT PLACE, Middlesex Centre (Arva)
House$2,999,900
$21,689/yr taxListing Courtesy of CUSHMAN & WAKEFIELD SOUTHWESTERN ONTARIO

2600 MAPLE STREET, Pelham (North Pelham)
House$2,999,900
$15,070/yr taxListing Courtesy of REAL BROKER ONTARIO LTD.

198 PASMORE STREET, Guelph/Eramosa (Rockwood)
House$2,999,900
$10,528/yr taxListing Courtesy of Coldwell Banker Neumann Real Estate

711 BEACH BOULEVARD, Hamilton (Hamilton Beach)
House$2,999,900
$16,274/yr taxListing Courtesy of REAL BROKER ONTARIO LTD.

711 BEACH Boulevard, Hamilton
House$2,999,900
$16,274/yr taxListing Courtesy of REAL BROKER ONTARIO LTD BROKERAGE 1800R

4965 4TH CONCESSION, Amherstburg
House$2,999,900
Listing Courtesy of SOTHEBY'S INTERNATIONAL REALTY CANADA

3503 LAKESHORE ROAD, Lincoln (Lincoln Lake)
House$2,999,900
$5,882/yr taxListing Courtesy of RE/MAX ESCARPMENT REALTY INC.

4850 HILLSIDE Drive, Beamsville
House$2,999,900
$14,022/yr taxListing Courtesy of Royal LePage NRC Realty Inc.
Similar Properties ?Active Comparables — Search CriteriaSearch Radius2 kmPrice Range±5%Match Home TypeYesMatch BedroomsYes
Sold Comparables
Access to sold property data requires a registered and verified account with TRREB DDF integration.
Coming SoonRented Comparables
Access to rented property data requires a registered and verified account with TRREB DDF integration.
Coming SoonBook a Viewing
2350 GAINER STREET, Thorold (Allanburg/Thorold South), Ontario, L0S1A0

