235 EUGENIE STREET West Unit# 208, Windsor, Ontario, N8X2X7
MLS: 26006939 | Industrial
Contact for Price














Property Description
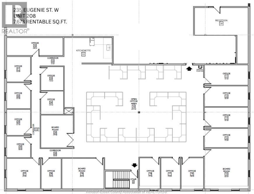
This spacious 7,673 sq. ft. professional office suite is now available for lease. A great mix of private offices and open area. Situated in a central, high-demand location within a prestigious office building, it's surrounded by a variety of complementary businesses and professional services. Enjoy easy access to a wide range of nearby restaurants, shops, and amenities, providing convenience for both employees and clients. Utilities are included in the additional rent. (id:64974)
Quick Facts
- Property Type: Industrial
- Bedrooms: None
- Bathrooms: None
- Living Area: 7,673 sq ft (712.8 m²)
- Above Grade: 7,673 sq ft (712.8 m²)
- Ownership: Freehold
Listing Provided by: ROYAL LEPAGE BINDER REAL ESTATE
Board: Windsor-Essex County Association of REALTORS®
Data provided via CREA DDF®.
Detailed Features
Interior & Systems
- Heating: Forced air, Natural gas, Furnace
- Cooling: Air Conditioned
- Flooring: Ceramic/Porcelain
Lot & Land
- Zoning: MD1.4
Listing Information
Listing History
MLS listing activity for 235 EUGENIE STREET West Unit# 208, Windsor, Ontario, N8X2X7 — dates reflect when changes were recorded in the DDF
🚗 Travel times
Neighborhood Walkability
Mortgage & Cost Calculators
Similar Properties ?Active Comparables — Search CriteriaSearch Radius2 kmPrice Range±5%Match Home TypeYesMatch BedroomsYes
No active comparables found in this area.

1636 HOWARD, Windsor
Warehouse$3,500/mo
Listing Courtesy of KW SIGNATURE

1883 TURNER ROAD Unit# C, Windsor
Industrial$2,500/mo
Listing Courtesy of KEY SOLUTIONS REALTY LTD.

125 TECUMSEH ROAD West, Windsor
Industrial$2,050/mo
Listing Courtesy of REMAX PREFERRED REALTY LTD. - 585

3395 HOWARD AVENUE Unit# 12, Windsor
Industrial$1,950/mo
Listing Courtesy of REAL BROKER ONTARIO LTD

300 EUGENIE STREET East Unit# SUITE E, Windsor
Industrial$1,650/mo
Listing Courtesy of RESULTS REALTY INC.

215 EUGENIE STREET West Unit# 280, Windsor
Industrial$1,500/mo
Listing Courtesy of ROYAL LEPAGE BINDER REAL ESTATE

1584 Tecumseh ROAD East, Windsor
Industrial$1,200/mo
Listing Courtesy of REALTY ONE GROUP ICONIC BROKERAGE
Sold Comparables
Access to sold property data requires a registered and verified account with TRREB DDF integration.
Coming SoonRented Comparables
Access to rented property data requires a registered and verified account with TRREB DDF integration.
Coming SoonBook a Viewing
235 EUGENIE STREET West Unit# 208, Windsor, Ontario, N8X2X7
