234 HENRY Street, Brantford, Ontario, N3T0Z0
MLS: 40688936 | Retail
$1.00 / square feet



Property Description
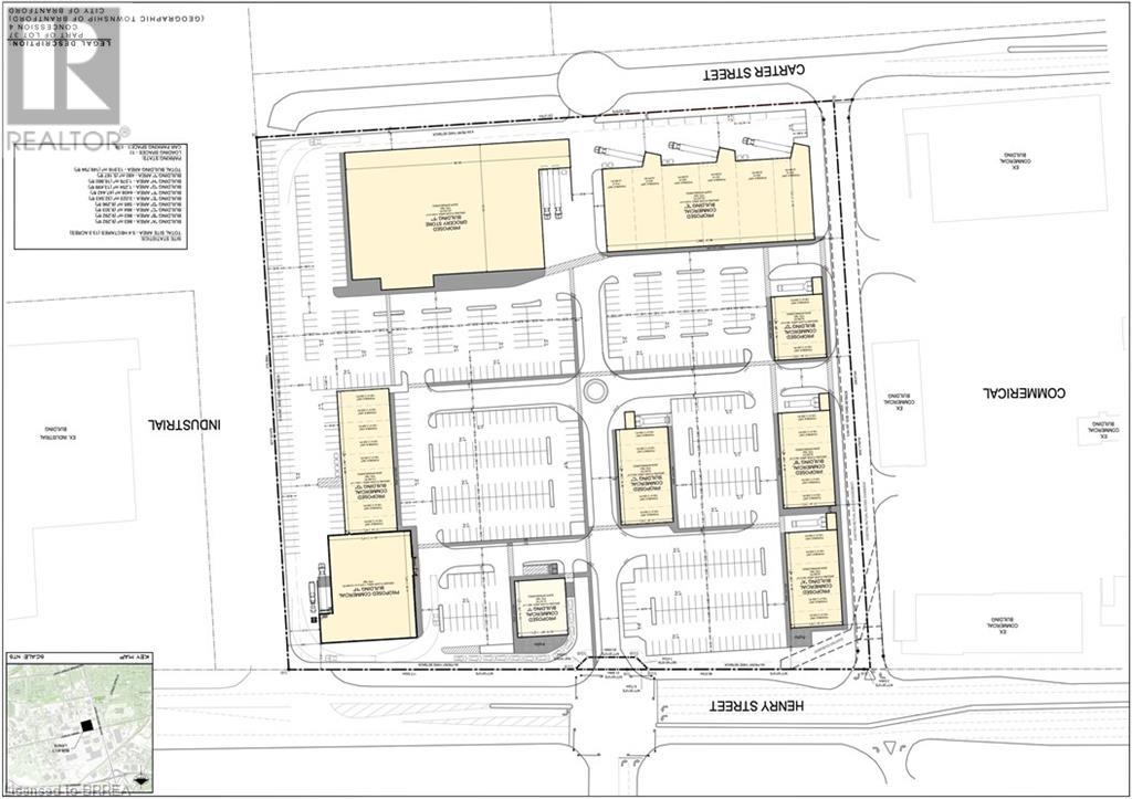
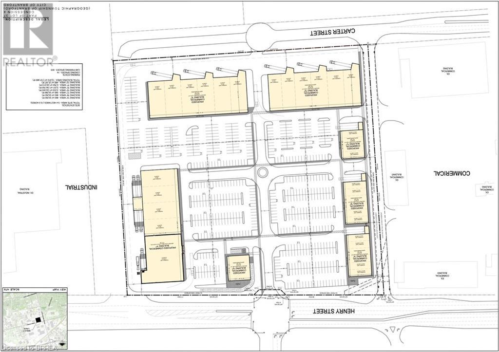
New to-be-constructed 13 acre Retail Site on busy thoroughfare in one of Brantford’s sought after Retail destinations. Just off Brantford's main traffic artery with approximately 31,800 vehicles passing by each day! This incredible site is minutes from multiple residential neighbourhoods and Highway 403. Shadow anchored by Lowes. Adaptable plans and square footages available ranging from 2,500sf to 100,000sf. Broad Major Commercial Centre Zoning MCC-5, which allows many commercial possibilities! (id:65010)
Quick Facts
- Property Type: Retail
- Bedrooms: None
- Bathrooms: None
Listing Provided by: CREA DDF® Member Brokerage
Data provided via CREA DDF®.
Detailed Features
Listing Information
Location & Neighborhood
🚗 Travel times
Neighborhood Walkability
Mortgage & Cost Calculators
Similar Properties
No active comparables found in this area.
Sold Comparables
Access to sold property data requires a registered and verified account with TRREB DDF integration.
Coming SoonRented Comparables
Access to rented property data requires a registered and verified account with TRREB DDF integration.
Coming Soon














