23 TRINITY Lane, Waterford, Ontario, N0E1Y0
MLS: 40804818 | Townhouse (Condo)
$539,000





























Property Description
Welcome to Waterford! Home of the Pumpkinfest! Ever thought of condo living? Is it time to downsize to less house maintenance and have time to travel or relax? Trinity Lane condo living gives you a quiet and friendly place to reside. The home is located close to shopping, schools, walking trails and all that Waterford has to offer. This units upper level offers 2 bedrooms, 1 bathroom, open concept kitchen/dining/living room with cathedral ceilings, and laundry. Everything needed for one level living. The lower level offers newly renovated 3pc bathroom and Rec room, along with an extra bedroom for your guest. With manageable condo fees of just $291.00 monthly, makes this home even more desirable. Book a showing today before it's gone. Upgrades: lower bathroom, new flooring and paint in lower Rec room (2024) carpet on stairs (2026) washer and dryer (2024) dishwasher (2025) (id:64974)
Quick Facts
- Property Type: Townhouse (Condo)
- Style: Bungalow
- Bedrooms: 3 (2 above, 1 below)
- Bathrooms: 2
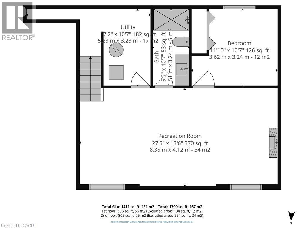
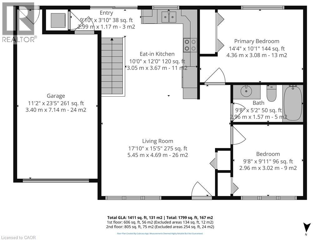
- Living Area: 1,411 sq ft (131.1 m²)
- Above Grade: 805 sq ft (74.8 m²)
- Below Grade: 606 sq ft (56.3 m²)
- Year Built: 2014
- Ownership: Condo/Strata
- Attached: Yes
- Parking: 2 spaces (Attached Garage)
Costs
- Annual Taxes: $3,085.00
- Condo/HOA Fee: $291.00 / monthly
- Includes: Landscaping, Insurance
Listing Provided by: RE/MAX Erie Shores Realty Inc. Brokerage
Board: Cornerstone Association of REALTORS®
Data provided via CREA DDF®.
Detailed Features
Interior & Systems
- Heating: Forced air
- Cooling: Central air conditioning
- Basement: Partially finished, Full
- Appliances: Washer, Refrigerator, Dishwasher, Dryer, Microwave, Window Coverings, Garage door opener
- Security: Smoke Detectors
Exterior & Construction
- Style: Bungalow
- Exterior: Brick
- Foundation: Poured Concrete
- Sewer: Municipal sewage system
- Water: Municipal water
Lot & Land
- Features: Paved driveway, Sump Pump, Automatic Garage Door Opener
- Zoning: R4
Community & Neighbourhood
- Community: Quiet Area
- Subdivision: Waterford
Room Details (8 rooms)
Listing Information
Listing History
Buy/Sell/Terminated/Expired listing history for 23 TRINITY Lane, Waterford, Ontario, N0E1Y0
Location & Neighborhood
🚗 Travel times
Neighborhood Walkability
Mortgage & Cost Calculators
Nearby Homes (Within 2km)
Similar Homes
Similar Properties
No rental comparables found in this area.
Sold Comparables
Access to sold property data requires a registered and verified account with TRREB DDF integration.
Coming SoonRented Comparables
Access to rented property data requires a registered and verified account with TRREB DDF integration.
Coming Soon
























