23 SUGARBUSH TRAIL, Kawartha Lakes (Mariposa), Ontario, K0M2C0
MLS: X12749964 | Vacant Land
$399,900


























Property Description
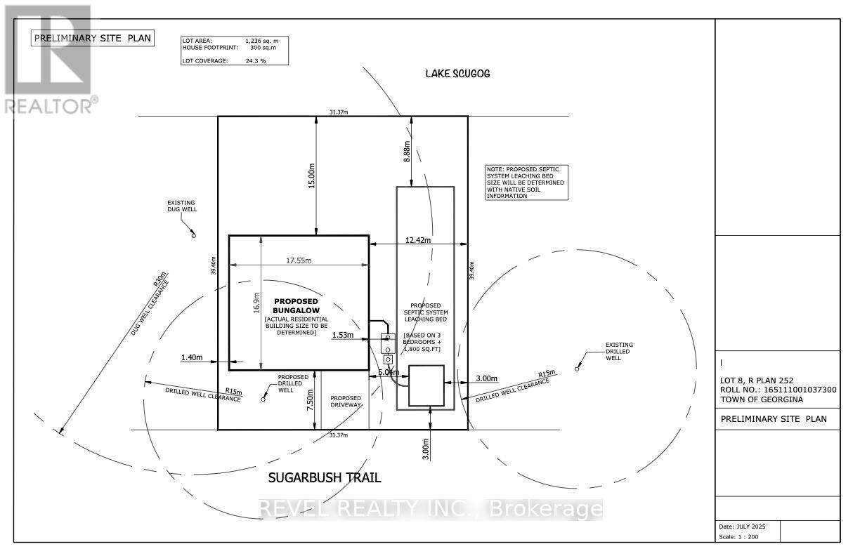
Discover the perfect canvas for your dream home with this remarkable 100-foot waterfront lot on picturesque Lake Scugog. Nestled in a serene, forested setting, this property offers unparalleled privacy and breathtaking lake views, ensuring a tranquil retreat from the everyday hustle. Panoramic views of Lake Scugog's shimmering waters right from your future doorstep. The lot is surrounded by lush forests, providing a peaceful escape and a sense of seclusion. The property behind is undeveloped. Located on a quiet street, this property promises a serene atmosphere while still being conveniently close to amenities. Just minutes away from the charming towns of Port Perry and Lindsay, offering a variety of dining, shopping, and recreational options. Embrace the beauty of the Trent-Severn Waterway and enjoy easy access to numerous lakes for boating, fishing, and outdoor adventures.This is a rare opportunity to own a slice of paradise on Lake Scugog, perfect for those seeking privacy, natural beauty, and a gateway to all the water activities you can imagine. Seize the chance to create your lakeside sanctuary. **MINOR VARIANCE FOR ROAD & BUILDING AREA APPROVED BY COMITY OF ADJUSTMENTS** (id:64974)
Quick Facts
- Property Type: Vacant Land
- Bedrooms: None
- Bathrooms: 0
- Frontage: 100 ft (30.5 m)
Costs
- Annual Taxes: $1,563.00 (2025)
Listing Provided by: REVEL REALTY INC.
Board: Central Lakes Association of REALTORS®
Data provided via CREA DDF®.
Detailed Features
Interior & Systems
- Utilities: Electricity, Cable
Lot & Land
- Frontage: 100 ft (30.5 m)
- View: View of water, Direct Water View
- Waterfront: Waterfront on lake
- Water Body: Lake Scugog
- Zoning: RR3
Community & Neighbourhood
- Neighbourhood: Mariposa
Listing Information
Listing History
Buy/Sell/Terminated/Expired listing history for 23 SUGARBUSH TRAIL, Kawartha Lakes (Mariposa), Ontario, K0M2C0
Location & Neighborhood
🚗 Travel times
Neighborhood Walkability
Mortgage & Cost Calculators
Similar Homes
Similar Properties
No rental comparables found in this area.
Sold Comparables
Access to sold property data requires a registered and verified account with TRREB DDF integration.
Coming SoonRented Comparables
Access to rented property data requires a registered and verified account with TRREB DDF integration.
Coming Soon









