226 DUNDAS STREET, London East (East F), Ontario, N6A1H3
MLS: X12860958 | Retail
$12.00 / square feet











Property Description
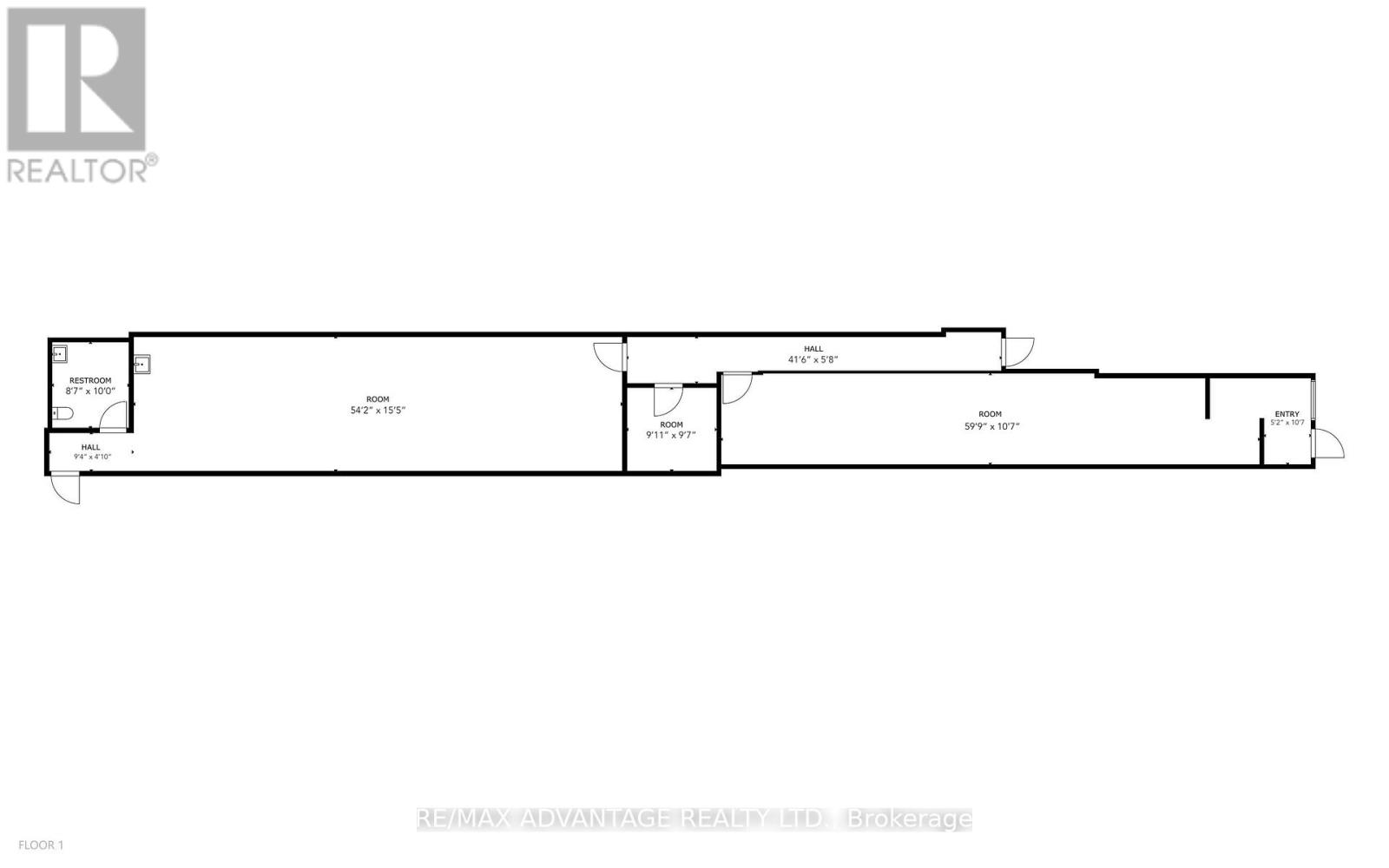
2000sf main floor retail/office/studio/spa/gym in a completely renovated 3 storey with historically restored frontage located in the heart of London, on Dundas, east of Clarence, west of Wellington. Excellent visibility, making it an ideal property for business seeking high traffic area. DA 1 Zoning offers a wide range of uses including, but not limited to; Studios, retail, restaurants, bake shops, clinics, commercial recreation, medical/dental, taverns and much more. Competitive rate at $12/sf net and Additional rents at $7.50/sf plus HST plus utilities. (id:64974)
Quick Facts
- Property Type: Retail
- Bedrooms: None
- Bathrooms: None
- Living Area: 2,000 sq ft (185.8 m²)
- Frontage: 17 ft (5 m)
Costs
- Annual Taxes: $26,000.00
Listing Provided by: RE/MAX ADVANTAGE REALTY LTD.
Board: London and St. Thomas Association of REALTORS®
Data provided via CREA DDF®.
Detailed Features
Interior & Systems
- Heating: Other
- Cooling: Fully air conditioned
Exterior & Construction
- Water: Municipal water
Lot & Land
- Frontage: 17 ft (5 m)
- Zoning: DA1
Community & Neighbourhood
- Neighbourhood: East F
Listing Information
Listing History
Buy/Sell/Terminated/Expired listing history for 226 DUNDAS STREET, London East (East F), Ontario, N6A1H3
Location & Neighborhood
🚗 Travel times
Neighborhood Walkability
Mortgage & Cost Calculators
Similar Properties
No active comparables found in this area.
Sold Comparables
Access to sold property data requires a registered and verified account with TRREB DDF integration.
Coming SoonRented Comparables
Access to rented property data requires a registered and verified account with TRREB DDF integration.
Coming Soon














