2202 BROOKHAVEN CRESCENT, Oakville (WM Westmount), Ontario, L6M5B8
MLS: W12891746 | House (Freehold)
$1,939,000
















































Property Description
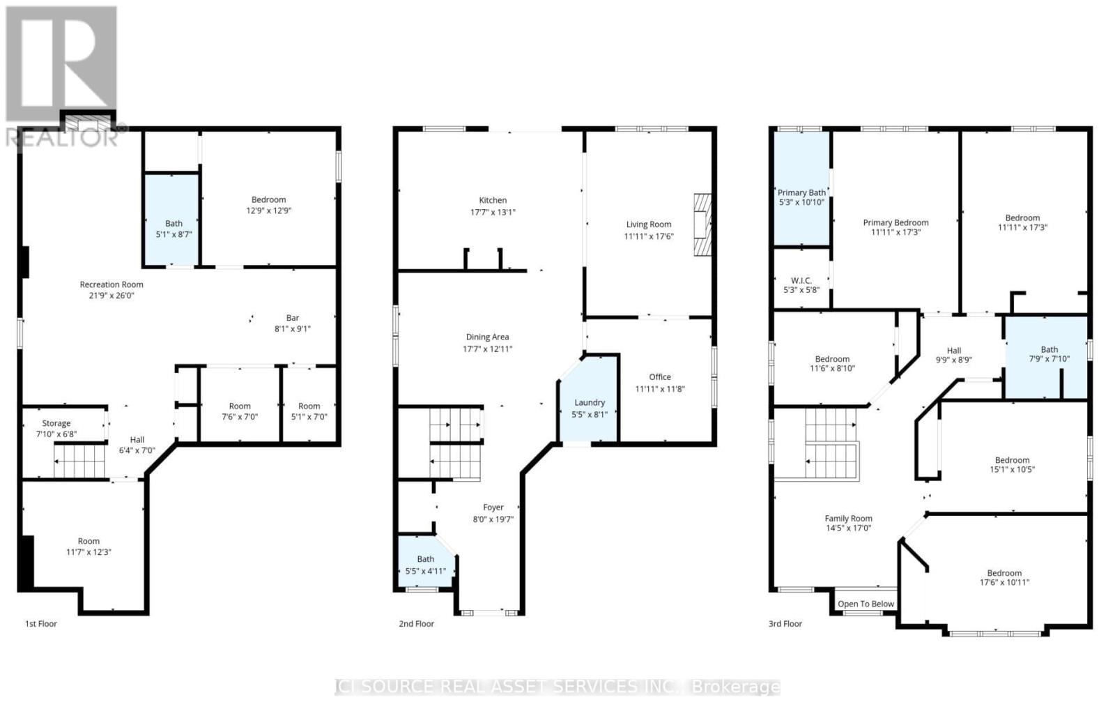
Beautiful east-facing home situated on a highly sought-after street in Westmount, this elegant Markay-built 5+1 bedroom, 4-bathroom home offers exceptional space and family living in one of Oakville's most desirable communities. Walking distance to top-ranked Garth Webb Secondary School, scenic parks, ponds, and trails, and minutes to Glen Abbey Community Centre, Oakville Trafalgar Memorial Hospital, Abbey Plaza, and major highways. Beautiful brick and stone exterior with double driveway and attached garage. Private backyard oasis featuring a saltwater pool, wrap-around stone patio, mature evergreens, landscape lighting, and built-in outdoor speakers. The interior features 9-ft ceilings, hardwood floors, pot lights, California shutters, and custom wall details. The main level offers a sun-filled living room with gas fireplace, formal dining room, private office with French doors, and main-floor laundry. Bright kitchen with white cabinetry, granite counters, stainless steel appliances, pantry, and centre island with breakfast bar leading to the backyard. Upstairs offers a spacious family room, five bedrooms, and two full baths including a primary retreat with walk-in closet and updated ensuite. Newly finished basement (2025) includes recreation room with fireplace, second kitchen, bedroom, bath, and laundry-ideal for extended family. *For Additional Property Details Click The Brochure Icon Below* (id:64974)
Quick Facts
- Property Type: House (Freehold)
- Bedrooms: 6 (5 above, 1 below)
- Bathrooms: 4 (1 half)
- Ownership: Freehold
- Attached: No
- Fireplaces: Yes
- Parking: 6.0 spaces (Attached Garage, Garage)
- Frontage: 40 ft (12.2 m)
Costs
- Annual Taxes: $7,745.39 (2025)
Listing Provided by: ICI SOURCE REAL ASSET SERVICES INC.
Board: Toronto Regional Real Estate Board
Data provided via CREA DDF®.
Detailed Features
Interior & Systems
- Heating: Forced air, Natural gas
- Cooling: Central air conditioning
- Basement: Finished, N/A
- Appliances: Washer, Refrigerator, Central Vacuum, Dishwasher, Stove, Dryer, Window Coverings, Water Heater
- Utilities: Sewer, Electricity
Exterior & Construction
- Exterior: Brick
- Foundation: Unknown
- Sewer: Sanitary sewer
- Water: Municipal water
Lot & Land
- Frontage: 40 ft (12.2 m)
- Features: In-Law Suite
- Pool: Inground pool
Community & Neighbourhood
- Neighbourhood: 1019 - WM Westmount
Room Details (12 rooms)
Listing Information
Listing History
MLS listing activity for 2202 BROOKHAVEN CRESCENT, Oakville (WM Westmount), Ontario, L6M5B8 — dates reflect when changes were recorded in the DDF
🚗 Travel times
Neighborhood Walkability
Mortgage & Cost Calculators
Nearby Homes ?Nearby Homes — Search CriteriaSearch Radius1 kmPrice Range±5%Match BedroomsYesMatch BathroomsYes

2343 FALLING GREEN DRIVE, Oakville (WM Westmount)
House$1,844,900
$7,128/yr taxListing Courtesy of HOMELIFE/MIRACLE REALTY LTD

2170 BROOKHAVEN CRESCENT, Oakville (WM Westmount)
House$1,629,000
$7,178/yr taxListing Courtesy of ROYAL LEPAGE REAL ESTATE SERVICES LTD.

2353 WOODCREST DRIVE, Oakville (WM Westmount)
House$1,749,000
$8,146/yr taxListing Courtesy of ROYAL LEPAGE REAL ESTATE SERVICES LTD.

2293 WOODCREST DRIVE, Oakville (WM Westmount)
House$1,899,000
$8,883/yr taxListing Courtesy of RE/MAX GOLD REALTY INC.

13 - 2184 POSTMASTER DRIVE, Oakville (WM Westmount)
Row / Townhouse$3,700/mo
Listing Courtesy of HOMELIFE/MIRACLE REALTY LTD

13 - 2184 POSTMASTER DRIVE, Oakville (WM Westmount)
Row / Townhouse$1,299,000
$3,939/yr taxListing Courtesy of HOMELIFE/MIRACLE REALTY LTD

2142 MEADOWGLEN DRIVE, Oakville (WM Westmount)
House$1,525,000
$6,644/yr taxListing Courtesy of Century 21 Miller Real Estate Ltd.

2312 FOXFIELD ROAD, Oakville (WM Westmount)
House$1,449,000
$5,597/yr taxListing Courtesy of MODERN SOLUTION REALTY INC.

36 - 2189 POSTMASTER DRIVE, Oakville (WM Westmount)
Condo - Row / Townhouse$974,900
$4,240/yr taxListing Courtesy of ROYAL LEPAGE REAL ESTATE SERVICES LTD.

2370 STILLMEADOW ROAD, Oakville (WM Westmount)
House$1,399,900
$6,978/yr taxListing Courtesy of ROYAL LEPAGE REAL ESTATE SERVICES LTD.

2128 ARBOURVIEW DRIVE, Oakville (WM Westmount)
House$2,279,900
$10,583/yr taxListing Courtesy of Century 21 Miller Real Estate Ltd.

2066 SHADY GLEN ROAD, Oakville (WM Westmount)
House$3,650/mo
Listing Courtesy of HOMELIFE LANDMARK REALTY INC.

2187 MARIPOSA ROAD, Oakville (WM Westmount)
House$1,999,900
$8,780/yr taxListing Courtesy of Royal LePage Real Estate Services Ltd., Brokerage

2062 WESTMOUNT DRIVE, Oakville (WM Westmount)
House$1,268,888
$5,197/yr taxListing Courtesy of RE/MAX ESCARPMENT REALTY INC.

2062 WESTMOUNT Drive, Oakville
House$1,268,888
$5,197/yr taxListing Courtesy of RE/MAX Escarpment Realty Inc.
Similar Homes ?Similar Homes — Search CriteriaSearch Radius5 kmPrice Range±5%Match Home TypeYesMatch BedroomsYes

3225 SALTAIRE CRESCENT, Oakville (BC Bronte Creek)
Single Family$1,995,000
$8,830/yr taxListing Courtesy of RE/MAX REALTRON BARRY COHEN HOMES INC.

2196 HIGHCLIFFE WAY, Oakville (WM Westmount)
House$1,999,000
$8,263/yr taxListing Courtesy of HOMELIFE LANDMARK REALTY INC.

2204 CARPENTERS CIRCLE, Oakville (GA Glen Abbey)
House$1,850,000
$7,726/yr taxListing Courtesy of RIGHT AT HOME REALTY

2069 NIPIGON DRIVE, Oakville (RO River Oaks)
Single Family$1,849,900
$9,331/yr taxListing Courtesy of Re/Max Hallmark Alliance Realty

1426 REDWING COURT, Oakville (WT West Oak Trails)
House$1,849,000
$8,680/yr taxListing Courtesy of REAL ONE REALTY INC.

2343 FALLING GREEN DRIVE, Oakville (WM Westmount)
House$1,844,900
$7,128/yr taxListing Courtesy of HOMELIFE/MIRACLE REALTY LTD
Similar Properties ?Active Comparables — Search CriteriaSearch Radius2 kmPrice Range±5%Match Home TypeYesMatch BedroomsYes

2196 HIGHCLIFFE WAY, Oakville (WM Westmount)
House$1,999,000
$8,263/yr taxListing Courtesy of HOMELIFE LANDMARK REALTY INC.

2204 CARPENTERS CIRCLE, Oakville (GA Glen Abbey)
House$1,850,000
$7,726/yr taxListing Courtesy of RIGHT AT HOME REALTY

1426 REDWING COURT, Oakville (WT West Oak Trails)
House$1,849,000
$8,680/yr taxListing Courtesy of REAL ONE REALTY INC.

2343 FALLING GREEN DRIVE, Oakville (WM Westmount)
House$1,844,900
$7,128/yr taxListing Courtesy of HOMELIFE/MIRACLE REALTY LTD
No rental comparables found in this area.
Sold Comparables
Access to sold property data requires a registered and verified account with TRREB DDF integration.
Coming SoonRented Comparables
Access to rented property data requires a registered and verified account with TRREB DDF integration.
Coming SoonBook a Viewing
2202 BROOKHAVEN CRESCENT, Oakville (WM Westmount), Ontario, L6M5B8
