215 PARK STREET, Orillia, Ontario, L3V5V7
MLS: S12948182 | House (Freehold)
$699,900


















































Property Description
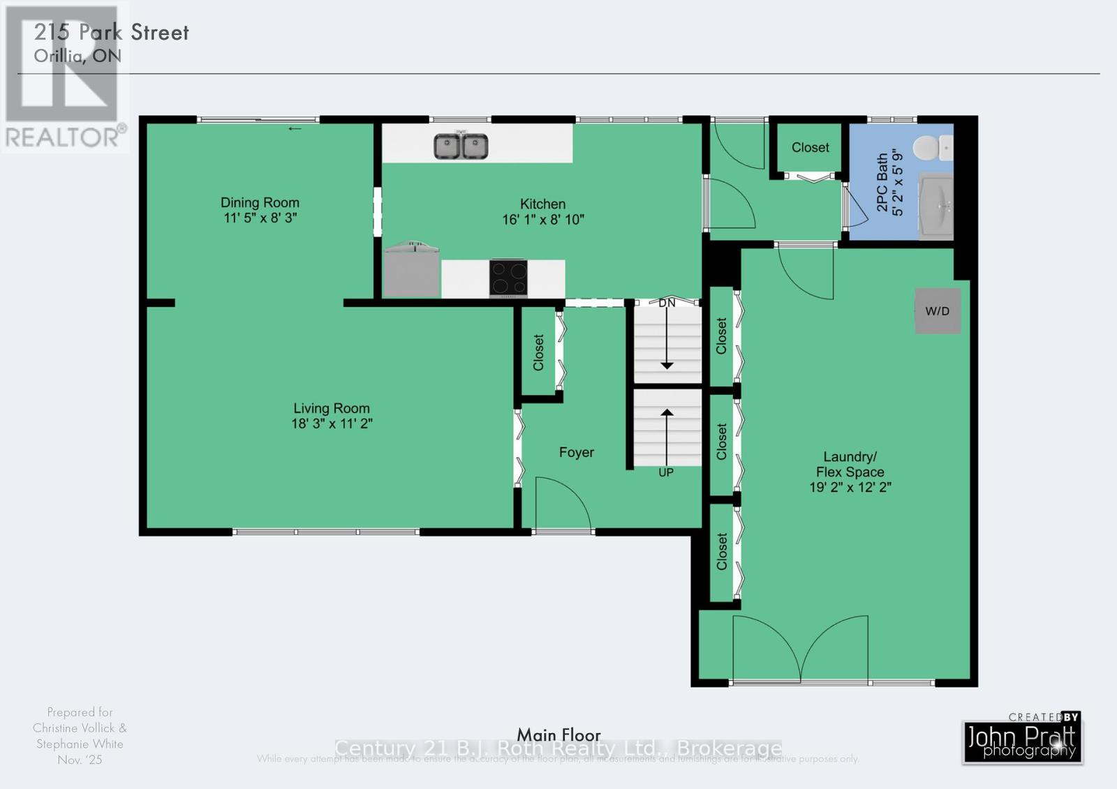
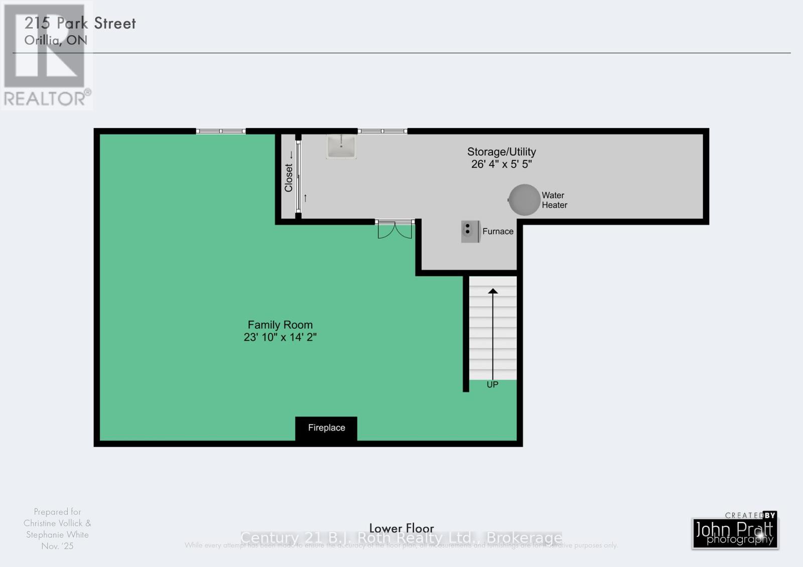
Now is your chance to raise your family in one of the most sought-after North Ward neighbourhoods! This well-maintained 4-bedroom, 1.5-bath, 2-storey home offers comfort, convenience, and fantastic outdoor living-perfect for today's busy family.A welcoming covered entry leads into the bright main floor featuring gleaming hardwood floors throughout. The spacious living room with bay window fills the space with natural light, while the adjacent dining area overlooks the picturesque back yard. The efficient galley-style kitchen boasts classic oak cabinetry, a cozy breakfast nook, and direct access to your fully fenced backyard oasis. A convenient 2-piece powder room is located on the main level. The original garage has been converted into a versatile space currently used as a main-floor laundry, but it would easily function as a playroom, home office, recreation room-or be converted back to a garage if desired. Upstairs, you'll find a beautifully updated 4-piece bathroom and four bedrooms, including one with a charming built-in desk/craft area and a spacious walk-in closet. The mostly finished basement offers a cozy family retreat complete with a gas fireplace and a bar area, ideal for relaxing or entertaining. Step outside to your private, treed, fully fenced backyard, featuring an expansive updated deck overlooking the inground pool, complete with a newer gas heater. Relax in the sunshine under the Pergola or choose to sit under one of the 2 Gazebos. It's the perfect setting for summer gatherings and family fun. Additional updates include windows & shingles. The home is equipped with natural gas heating and central air conditioning for year-round comfort. Located close to parks, schools, shopping, and just a short walk to downtown, this property offers the ideal blend of lifestyle and location. (id:64974)
Quick Facts
- Property Type: House (Freehold)
- Bedrooms: 4 (4 above)
- Bathrooms: 2 (1 half)
- Ownership: Freehold
- Attached: No
- Fireplaces: 1
- Parking: 4.0 spaces (No Garage)
- Frontage: 60 ft (18.3 m)
Costs
- Annual Taxes: $3,960.77
Listing Provided by: Century 21 B.J. Roth Realty Ltd.
Board: OnePoint Association of REALTORS®
Data provided via CREA DDF®.
Detailed Features
Interior & Systems
- Heating: Forced air, Natural gas
- Cooling: Central air conditioning
- Basement: Partially finished, Full
- Appliances: Washer, Refrigerator, Dishwasher, Stove, Dryer, Water Heater
- Flooring: Hardwood
- Utilities: Sewer, Electricity, Cable
- Security: Smoke Detectors
Exterior & Construction
- Exterior: Brick, Aluminum siding
- Foundation: Block
- Fencing: Fenced yard, Fully Fenced
- Sewer: Sanitary sewer
- Water: Municipal water
Lot & Land
- Frontage: 60 ft (18.3 m)
- Features: Level lot, Level, Carpet Free
- Pool: Inground pool
- Zoning: R2
Community & Neighbourhood
- Building: Fireplace(s)
- Neighbourhood: Orillia
Room Details (12 rooms)
Listing Information
Listing History
MLS listing activity for 215 PARK STREET, Orillia, Ontario, L3V5V7 — dates reflect when changes were recorded in the DDF
🚗 Travel times
Neighborhood Walkability
Mortgage & Cost Calculators
Nearby Homes ?Nearby Homes — Search CriteriaSearch Radius1 kmPrice Range±5%Match BedroomsYesMatch BathroomsYes

220 BELMORAL DRIVE, Orillia
House$899,999
$5,745/yr taxListing Courtesy of RE/MAX RIGHT MOVE

15 WATSON COURT, Orillia
House$799,900
$4,671/yr taxListing Courtesy of RE/MAX RIGHT MOVE

195 NOTTAWASAGA STREET, Orillia
House$349,000
$3,401/yr taxListing Courtesy of FARIS TEAM REAL ESTATE BROKERAGE

321 PARK STREET, Orillia
House$645,000
$4,490/yr taxListing Courtesy of FARIS TEAM REAL ESTATE BROKERAGE

44 WILLIAM STREET, Orillia
House$379,900
$2,494/yr taxListing Courtesy of Century 21 B.J. Roth Realty Ltd.

99 JOHNSON STREET, Orillia
House$824,900
$5,292/yr taxListing Courtesy of REAL BROKER ONTARIO LTD.

110 MARY STREET, Orillia
House$729,900
$5,823/yr taxListing Courtesy of RE/MAX RIGHT MOVE

33 COLDWATER ROAD W, Orillia
House$529,000
$3,099/yr taxListing Courtesy of RE/MAX RIGHT MOVE

17 CHAMPLAIN STREET, Orillia
House$877,000
$2,706/yr taxListing Courtesy of REMAX YOUR COMMUNITY REALTY

29 TECUMSETH STREET, Orillia
House$899,000
$4,278/yr taxListing Courtesy of Royal LePage Locations North

37 LOUISE LANE, Orillia
House$579,900
$3,492/yr taxListing Courtesy of CENTURY 21 B.J. ROTH REALTY LTD.

UPPER - 97 ALBERT STREET S, Orillia
House$1,750/mo
Listing Courtesy of REAL BROKER ONTARIO LTD.
Similar Homes ?Similar Homes — Search CriteriaSearch Radius5 kmPrice Range±5%Match Home TypeYesMatch BedroomsYes

61 PEARL DRIVE, Orillia
House$724,999
$4,716/yr taxListing Courtesy of COLDWELL BANKER THE REAL ESTATE CENTRE

17 WALKER AVENUE, Orillia
House$669,900
$5,503/yr taxListing Courtesy of RE/MAX HALLMARK PEGGY HILL GROUP REALTY

110 MARY STREET, Orillia
House$729,900
$5,823/yr taxListing Courtesy of RE/MAX RIGHT MOVE

70 PEARL DRIVE, Orillia
House$669,888
$4,100/yr taxListing Courtesy of Royal LePage Lakes Of Muskoka Realty
Similar Properties ?Active Comparables — Search CriteriaSearch Radius2 kmPrice Range±5%Match Home TypeYesMatch BedroomsYes

61 PEARL DRIVE, Orillia
House$724,999
$4,716/yr taxListing Courtesy of COLDWELL BANKER THE REAL ESTATE CENTRE

17 WALKER AVENUE, Orillia
House$669,900
$5,503/yr taxListing Courtesy of RE/MAX HALLMARK PEGGY HILL GROUP REALTY

110 MARY STREET, Orillia
House$729,900
$5,823/yr taxListing Courtesy of RE/MAX RIGHT MOVE

70 PEARL DRIVE, Orillia
House$669,888
$4,100/yr taxListing Courtesy of Royal LePage Lakes Of Muskoka Realty
No rental comparables found in this area.
Sold Comparables
Access to sold property data requires a registered and verified account with TRREB DDF integration.
Coming SoonRented Comparables
Access to rented property data requires a registered and verified account with TRREB DDF integration.
Coming SoonBook a Viewing
215 PARK STREET, Orillia, Ontario, L3V5V7
