2147 KING STREET E, Hamilton (Glenview), Ontario, L8K1W5
MLS: X12860798 | Business
$89,000




























Property Description
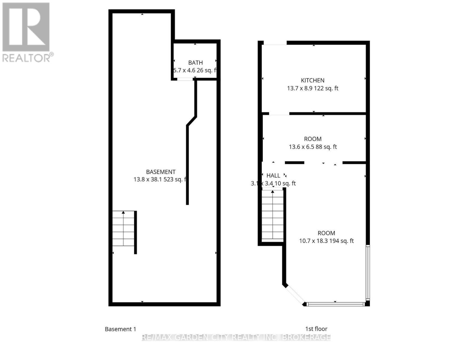
Prime East Hamilton commercial turn key restaurant setup. C2 zoning suitable for take out, bakery, variety/convenience store, etc. Approx 500 square feet ground level plus a full basement. High exposure & pedestrian foot traffic. All existing fixtures & chattels included. 1 washroom in the basement. (id:64974)
Quick Facts
- Property Type: Business
- Bedrooms: None
- Bathrooms: 1
- Living Area: 491 sq ft (45.6 m²)
- Frontage: 49 ft (14.9 m)
Listing Provided by: RE/MAX GARDEN CITY REALTY INC, BROKERAGE
Board: Niagara Association of REALTORS®
Data provided via CREA DDF®.
Detailed Features
Interior & Systems
- Heating: Forced air, Natural gas, Other
- Cooling: Fully air conditioned
Exterior & Construction
- Water: Municipal water
Lot & Land
- Frontage: 49 ft (14.9 m)
- Zoning: C2
Community & Neighbourhood
- Neighbourhood: Glenview
Listing Information
Listing History
Buy/Sell/Terminated/Expired listing history for 2147 KING STREET E, Hamilton (Glenview), Ontario, L8K1W5
Location & Neighborhood
🚗 Travel times
Neighborhood Walkability
Mortgage & Cost Calculators
Nearby Homes (Within 2km)
Similar Homes
Similar Properties
No rental comparables found in this area.
Sold Comparables
Access to sold property data requires a registered and verified account with TRREB DDF integration.
Coming SoonRented Comparables
Access to rented property data requires a registered and verified account with TRREB DDF integration.
Coming Soon













