214 - 690 KING STREET W, Kitchener, Ontario, N2G0B9
MLS: X12939896 | Apartment (Condo)
$349,900


































Property Description
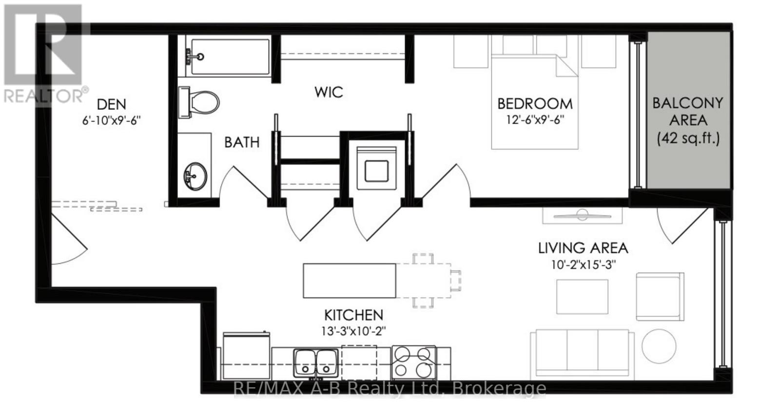
Welcome to Midtown Lofts, where modern condo living meets unbeatable convenience. This thoughtfully designed 1 bedroom + den, 1 bathroom suite offers a functional layout ideal for professionals, first-time buyers, or investors. The versatile den is perfect for a home office or guest space, while the open-concept living and dining area is ideal for everyday living and entertaining. The unit features upgraded dimmable pot lights in the main living area and den, as well as stylish dimmable lighting over the kitchen island. The bathroom has been updated with a new light fixture, upgraded medicine cabinet providing additional storage, and modern shower fixture. Enjoy a quiet setting on the desirable side of the building away from King Street, along with excellent sound insulation for added privacy. Ideally located between Downtown Kitchener and Uptown Waterloo, you're just steps to restaurants, cafés, shopping, parks, and transit, with easy access to the ION LRT and major commuter routes. Amenities include a fitness centre, resident lounge, outdoor BBQ terrace, and bike storage. This unit includes an underground parking space and storage locker. A fantastic opportunity to enjoy low-maintenance living in one of Kitchener-Waterloo's most connected communities. (id:64974)
Quick Facts
- Property Type: Apartment (Condo)
- Style: Multi-level
- Bedrooms: 2 (1 above, 1 below)
- Bathrooms: 1
- Ownership: Condo/Strata
- Attached: Yes
- Parking: 1.0 space (Garage, Underground)
Costs
- Annual Taxes: $3,744.36
- Condo/HOA Fee: $641.23 / monthly
- Corp: Sanderson Management Inc.
- Includes: Common Area Maintenance, Heat, Water, Insurance, Parking
Listing Provided by: RE/MAX A-B Realty Ltd
Board: OnePoint Association of REALTORS®
Data provided via CREA DDF®.
Detailed Features
Interior & Systems
- Heating: Forced air, Natural gas
- Cooling: Central air conditioning
- Basement: None
- Appliances: Washer, Refrigerator, Intercom, Dishwasher, Stove, Dryer, Window Coverings
- Security: Controlled entry
Exterior & Construction
- Style: Multi-level
- Exterior: Concrete
Lot & Land
- Features: Elevator, Balcony, Carpet Free, In suite Laundry
- Zoning: C5
Community & Neighbourhood
- Community: Pets Allowed With Restrictions
- Building: Storage - Locker, Exercise Centre, Separate Heating Controls, Party Room, Visitor Parking
Room Details (4 rooms)
Listing Information
Listing History
MLS listing activity for 214 - 690 KING STREET W, Kitchener, Ontario, N2G0B9 — dates reflect when changes were recorded in the DDF
🚗 Travel times
Neighborhood Walkability
Mortgage & Cost Calculators
Nearby Homes ?Nearby Homes — Search CriteriaSearch Radius1 kmPrice Range±5%Match BedroomsYesMatch BathroomsYes

411 - 5 WELLINGTON STREET S, Kitchener
Condo - Apartment$349,900
$2,686/yr taxListing Courtesy of CMI REAL ESTATE INC.

15 WELLINGTON Street S Unit# 1810, Kitchener
Condo - Apartment$349,999
$2,768/yr taxListing Courtesy of eXp Realty

1810 - 15 WELLINGTON STREET S, Kitchener
Condo - Apartment$349,999
$2,768/yr taxListing Courtesy of EXP REALTY

207 - 410 KING STREET W, Kitchener
Condo - Apartment$359,900
$3,582/yr taxListing Courtesy of RE/MAX WEST REALTY INC.

801 - 60 CHARLES STREET W, Kitchener
Condo - Apartment$349,900
$3,365/yr taxListing Courtesy of KINGSWAY REAL ESTATE

60 CHARLES Street W Unit# 801, Kitchener
Condo - Apartment$349,900
$3,365/yr taxListing Courtesy of KINGSWAY REAL ESTATE BROKERAGE
Similar Homes ?Similar Homes — Search CriteriaSearch Radius5 kmPrice Range±5%Match Home TypeYesMatch BedroomsYes

223 ERB Street W Unit# 405, Waterloo
Condo - Apartment$349,900
$4,438/yr taxListing Courtesy of RE/MAX TWIN CITY REALTY INC.

249 CEDARBRAE Avenue Unit# 18, Waterloo
Condo - Row / Townhouse$349,900
$2,260/yr taxListing Courtesy of RE/MAX TWIN CITY FAISAL SUSIWALA REALTY

24 MIDLAND Drive Unit# 708, Kitchener
Condo - Apartment$349,900
$0/yr taxListing Courtesy of RE/MAX TWIN CITY REALTY INC.

708 - 24 MIDLAND DRIVE, Kitchener
Apartment$349,900
Listing Courtesy of RE/MAX TWIN CITY REALTY INC.

411 - 5 WELLINGTON STREET S, Kitchener
Condo - Apartment$349,900
$2,686/yr taxListing Courtesy of CMI REAL ESTATE INC.

60 CHARLES Street W Unit# 801, Kitchener
Condo - Apartment$349,900
$3,365/yr taxListing Courtesy of KINGSWAY REAL ESTATE BROKERAGE

45 WESTMOUNT Road N Unit# 703, Waterloo
Condo - Apartment$349,900
$2,349/yr taxListing Courtesy of Royal LePage Wolle Realty

801 - 60 CHARLES STREET W, Kitchener
Condo - Apartment$349,900
$3,365/yr taxListing Courtesy of KINGSWAY REAL ESTATE

F504 - 275 LARCH STREET, Waterloo
Condo - Apartment$349,999
$2,274/yr taxListing Courtesy of EXP REALTY

15 WELLINGTON Street S Unit# 1810, Kitchener
Condo - Apartment$349,999
$2,768/yr taxListing Courtesy of eXp Realty

1810 - 15 WELLINGTON STREET S, Kitchener
Condo - Apartment$349,999
$2,768/yr taxListing Courtesy of EXP REALTY

18 HOLBORN Court Unit# 610, Kitchener
Condo - Apartment$350,000
$1,886/yr taxListing Courtesy of RE/MAX TWIN CITY FAISAL SUSIWALA REALTY

1007 - 128 KING STREET N, Waterloo
Condo - Apartment$348,000
$3,761/yr taxListing Courtesy of RE/MAX REAL ESTATE CENTRE INC.

265 WESTCOURT Place Unit# 309, Waterloo
Condo - Apartment$355,000
$3,288/yr taxListing Courtesy of Re/Max Icon Realty

185 KEHL Street Unit# 410, Kitchener
Condo - Apartment$339,900
$1,913/yr taxListing Courtesy of RE/MAX TWIN CITY REALTY INC.
Similar Properties ?Active Comparables — Search CriteriaSearch Radius2 kmPrice Range±5%Match Home TypeYesMatch BedroomsYes

411 - 5 WELLINGTON STREET S, Kitchener
Condo - Apartment$349,900
$2,686/yr taxListing Courtesy of CMI REAL ESTATE INC.

60 CHARLES Street W Unit# 801, Kitchener
Condo - Apartment$349,900
$3,365/yr taxListing Courtesy of KINGSWAY REAL ESTATE BROKERAGE

801 - 60 CHARLES STREET W, Kitchener
Condo - Apartment$349,900
$3,365/yr taxListing Courtesy of KINGSWAY REAL ESTATE

15 WELLINGTON Street S Unit# 1810, Kitchener
Condo - Apartment$349,999
$2,768/yr taxListing Courtesy of eXp Realty

1810 - 15 WELLINGTON STREET S, Kitchener
Condo - Apartment$349,999
$2,768/yr taxListing Courtesy of EXP REALTY

1007 - 128 KING STREET N, Waterloo
Condo - Apartment$348,000
$3,761/yr taxListing Courtesy of RE/MAX REAL ESTATE CENTRE INC.

207 - 410 KING STREET W, Kitchener
Condo - Apartment$359,900
$3,582/yr taxListing Courtesy of RE/MAX WEST REALTY INC.

1712 - 1 VICTORIA STREET S, Kitchener
Condo - Apartment$2,300/mo
Listing Courtesy of HOMELIFE/FUTURE REALTY INC.

60 CHARLES Street W Unit# 2712, Kitchener
Condo - Apartment$2,200/mo
Listing Courtesy of THE AGENCY

139 BRIGHTON Street Unit# 8D, Waterloo
Condo - Row / Townhouse$2,195/mo
$2,567/yr taxListing Courtesy of MCINTYRE REAL ESTATE SERVICES INC.

19 DOWNEY Street Unit# 2, Kitchener
House$2,150/mo
Listing Courtesy of Chestnut Park Realty Southwestern Ontario Limited

60 CHARLES Street W Unit# 2512, Kitchener
Condo - Apartment$2,150/mo
Listing Courtesy of RE/MAX TWIN CITY REALTY INC.

115 MARLBOROUGH Avenue Unit# 3, Kitchener
House$2,150/mo
Listing Courtesy of RE/MAX REAL ESTATE CENTRE INC. BROKERAGE-3

109 - 107 ROGER STREET, Waterloo
Condo - Apartment$2,100/mo
Listing Courtesy of RE/MAX PROFESSIONALS INC.

85 DUKE Street W Unit# 1001, Kitchener
Condo - Apartment$2,100/mo
Listing Courtesy of RE/MAX REAL ESTATE CENTRE INC., BROKERAGE

904 - 5 WELLINGTON STREET S, Kitchener
Condo - Apartment$2,100/mo
Listing Courtesy of RE/MAX REAL ESTATE CENTRE INC.

201 - 103 ROGER STREET, Waterloo
Condo - Apartment$2,100/mo
Listing Courtesy of EXP REALTY

109 - 103 ROGER STREET, Waterloo
Condo - Apartment$2,095/mo
Listing Courtesy of RE/MAX ESCARPMENT REALTY INC.

25 WELLINGTON Street S Unit# 3208, Kitchener
Single Family$2,095/mo
Listing Courtesy of CONDO CULTURE INC. - BROKERAGE 2

218 - 690 KING STREET, Kitchener
Condo - Apartment$2,000/mo
Listing Courtesy of RIGHT AT HOME REALTY

213 UNION Street E Unit# lower, Waterloo
House$1,995/mo
Listing Courtesy of RE/MAX TWIN CITY REALTY INC.

709 - 128 KING STREET, Waterloo
Condo - Apartment$1,995/mo
Listing Courtesy of KINGSWAY REAL ESTATE
Sold Comparables
Access to sold property data requires a registered and verified account with TRREB DDF integration.
Coming SoonRented Comparables
Access to rented property data requires a registered and verified account with TRREB DDF integration.
Coming SoonBook a Viewing
214 - 690 KING STREET W, Kitchener, Ontario, N2G0B9
