214 - 220 ERIE STREET, Port Colborne (Main Street), Ontario, L3K0A6
MLS: X12927934 | Vacant Land
$1,550 / monthly








Property Description
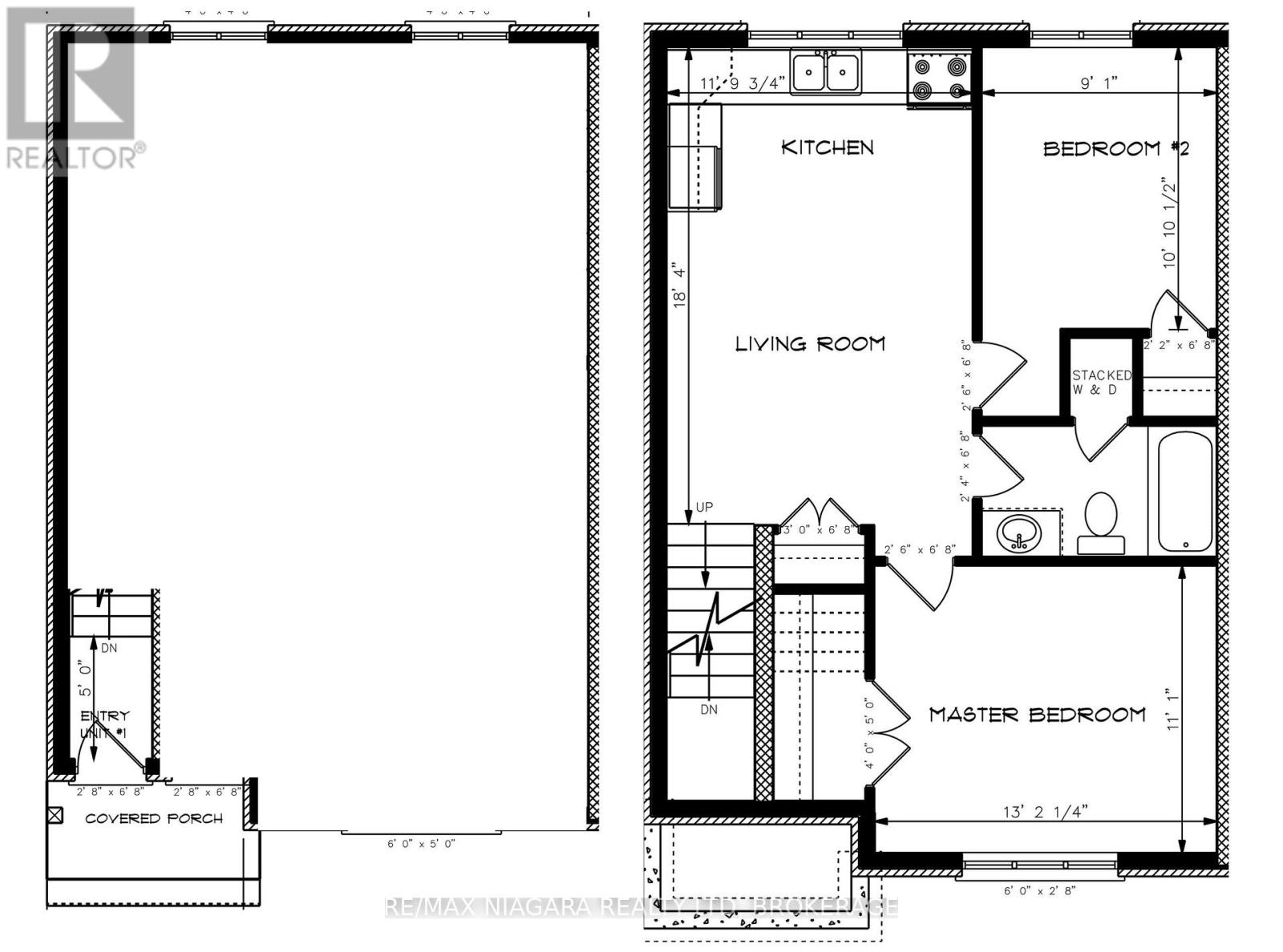
Discover this beautifully renovated 2-bedroom basement suite, designed with both style and comfort in mind. Unlike typical lower-level units, this home features ample natural lighting that creates a bright, airy atmosphere throughout the open-concept living space.Highlights of This Home:Fully Renovated: Enjoy a fresh, modern aesthetic with high-quality finishes and contemporary flooring.Spacious Layout: Two well-proportioned bedrooms offering plenty of closet space.Professional Management: Situated in a meticulously maintained building, ensuring a clean and quiet environment for all residents.Convenience Included: Comes with private parking and is located in a highly sought-after, friendly neighborhood.Whether you are a professional looking for a quiet retreat or a small family seeking a move-in-ready home, this unit offers the perfect blend of quality and value. (id:64974)
Quick Facts
- Property Type: Vacant Land
- Bedrooms: 2 (2 above)
- Bathrooms: 1
- Frontage: 176 ft (53.6 m)
Listing Provided by: RE/MAX NIAGARA REALTY LTD, BROKERAGE
Board: Niagara Association of REALTORS®
Data provided via CREA DDF®.
Detailed Features
Interior & Systems
- Heating: Not known, Electric
- Utilities: Sewer, Electricity
Lot & Land
- Frontage: 176 ft (53.6 m)
- Features: In suite Laundry
Community & Neighbourhood
- Neighbourhood: 877 - Main Street
Listing Information
Listing History
MLS listing activity for 214 - 220 ERIE STREET, Port Colborne (Main Street), Ontario, L3K0A6 — dates reflect when changes were recorded in the DDF
🚗 Travel times
Neighborhood Walkability
Mortgage & Cost Calculators
Nearby Homes ?Nearby Homes — Search CriteriaSearch Radius1 kmPrice Range±5%Match BedroomsYesMatch BathroomsYes

LOWER - 300 KNOLL STREET, Port Colborne (Main Street)
House$1,600/mo
Listing Courtesy of RE/MAX ESCARPMENT REALTY INC.

300 KNOLL Street Unit# Lower, Port Colborne
House$1,600/mo
$4,352/yr taxListing Courtesy of RE/MAX Escarpment Realty Inc.

652 STEELE STREET, Port Colborne (Main Street)
Vacant Land$184,900
$1,600/yr taxListing Courtesy of COLDWELL BANKER MOMENTUM REALTY, BROKERAGE

W/S FIELDEN AVENUE, Port Colborne (Main Street)
Vacant Land$224,900
$791/yr taxListing Courtesy of COLDWELL BANKER MOMENTUM REALTY, BROKERAGE

64 KNOLL STREET, Port Colborne (Main Street)
Vacant Land$119,000
$2,580/yr taxListing Courtesy of KELLER WILLIAMS COMPLETE REALTY

126 OAKWOOD STREET, Port Colborne (Main Street)
Vacant Land$89,900
Listing Courtesy of ROYAL LEPAGE NRC REALTY

LT 113 OAKWOOD STREET, Port Colborne (Main Street)
Vacant Land$129,900
$574/yr taxListing Courtesy of RE/MAX NIAGARA REALTY LTD, BROKERAGE

LT 114 OAKWOOD STREET, Port Colborne (Main Street)
Vacant Land$129,900
$628/yr taxListing Courtesy of RE/MAX NIAGARA REALTY LTD, BROKERAGE

LOT 2 KILLALY STREET E, Port Colborne (Sherkston)
Vacant Land$249,999
$1/yr taxListing Courtesy of RE/MAX NIAGARA REALTY LTD, BROKERAGE
Similar Homes ?Similar Homes — Search CriteriaSearch Radius5 kmPrice Range±5%Match Home TypeYesMatch BedroomsYes

18 WOLFORD CENTRE AVENUE, Merrickville-Wolford
Vacant Land$1,500/mo
Listing Courtesy of RE/MAX ABSOLUTE REALTY INC.

401 DOLPH Street N Unit# LOT (B), Cambridge
Vacant Land$1,500/mo
Listing Courtesy of THE AGENCY

LOT B - 401 DOLPH STREET, Waterloo
Vacant Land$1,500/mo
Listing Courtesy of THE AGENCY

60 GLENDALE AVENUE, Niagara-on-the-Lake (Glendale)
Vacant Land$1,500/mo
$15,000/yr taxListing Courtesy of BAY STREET GROUP INC.

317080 HIGHWAY 6 & 10 HIGHWAY, Chatsworth
Vacant Land$1,500/mo
$4,318/yr taxListing Courtesy of Sutton Group Incentive Realty Inc.

1324 COLBORNE Street E Unit# 2, Brantford
Vacant Land$1,600/mo
Listing Courtesy of Re/Max Twin City Realty Inc.
Similar Properties ?Active Comparables — Search CriteriaSearch Radius2 kmPrice Range±5%Match Home TypeYesMatch BedroomsYes

18 WOLFORD CENTRE AVENUE, Merrickville-Wolford
Vacant Land$1,500/mo
Listing Courtesy of RE/MAX ABSOLUTE REALTY INC.

401 DOLPH Street N Unit# LOT (B), Cambridge
Vacant Land$1,500/mo
Listing Courtesy of THE AGENCY

LOT B - 401 DOLPH STREET, Waterloo
Vacant Land$1,500/mo
Listing Courtesy of THE AGENCY

60 GLENDALE AVENUE, Niagara-on-the-Lake (Glendale)
Vacant Land$1,500/mo
$15,000/yr taxListing Courtesy of BAY STREET GROUP INC.

317080 HIGHWAY 6 & 10 HIGHWAY, Chatsworth
Vacant Land$1,500/mo
$4,318/yr taxListing Courtesy of Sutton Group Incentive Realty Inc.

1324 COLBORNE Street E Unit# 2, Brantford
Vacant Land$1,600/mo
Listing Courtesy of Re/Max Twin City Realty Inc.
No rental comparables found in this area.
Sold Comparables
Access to sold property data requires a registered and verified account with TRREB DDF integration.
Coming SoonRented Comparables
Access to rented property data requires a registered and verified account with TRREB DDF integration.
Coming SoonBook a Viewing
214 - 220 ERIE STREET, Port Colborne (Main Street), Ontario, L3K0A6
