2105 - 219 DUNDAS STREET E, Toronto (Moss Park), Ontario, M5A1Z6
MLS: C12968644 | Apartment (Condo)
$448,888











Property Description
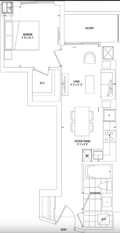
One-bedroom unit at desirable In.De Condo by Menkes. Functional layout with bright primary bedroom featuring oversized windows and a walk-in closet. Open-concept living/dining with balcony access. Includes stove, fridge, dishwasher, microwave, and ensuite laundry with stacked washer/dryer. Prime location steps to TMU, OCAD, George Brown, Eaton Centre, Financial District, and streetcar at your doorstep. One Locker Included in Selling Price. Locker Mgmt Fee is $37.68 per month. (id:64974)
Quick Facts
- Property Type: Apartment (Condo)
- Bedrooms: 1 (1 above)
- Bathrooms: 1
- Ownership: Condo/Strata
- Attached: Yes
Costs
- Annual Taxes: $2,805.00
- Condo/HOA Fee: $489.16 / monthly
- Corp: Maners Property Management
- Includes: Common Area Maintenance, Insurance
Listing Provided by: FOREST HILL REAL ESTATE INC.
Board: Toronto Regional Real Estate Board
Data provided via CREA DDF®.
Detailed Features
Interior & Systems
- Heating: Forced air, Natural gas
- Cooling: Central air conditioning
- Basement: None
- Appliances: Washer, Dishwasher, Stove, Dryer, Microwave, Oven - Built-In
- Security: Smoke Detectors
Exterior & Construction
- Exterior: Concrete
Lot & Land
- Features: Irregular lot size, Balcony, Carpet Free, In suite Laundry
- Zoning: CR1.5
Community & Neighbourhood
- Community: Pets Allowed With Restrictions
- Building: Storage - Locker, Party Room, Security/Concierge, Visitor Parking
- Neighbourhood: Moss Park
Room Details (3 rooms)
Listing Information
Listing History
MLS listing activity for 2105 - 219 DUNDAS STREET E, Toronto (Moss Park), Ontario, M5A1Z6 — dates reflect when changes were recorded in the DDF
🚗 Travel times
Neighborhood Walkability
Mortgage & Cost Calculators
Nearby Homes ?Nearby Homes — Search CriteriaSearch Radius1 kmPrice Range±5%Match BedroomsYesMatch BathroomsYes

2506 - 77 MUTUAL STREET, Toronto (Church-Yonge Corridor)
Condo - Apartment$439,000
$2,194/yr taxListing Courtesy of REMAX YOUR COMMUNITY REALTY

1005 - 319 JARVIS STREET, Toronto (Moss Park)
Condo - Apartment$430,000
Listing Courtesy of UNION CAPITAL REALTY

5011 - 319 JARVIS STREET, Toronto (Moss Park)
Condo - Apartment$435,000
$2,968/yr taxListing Courtesy of CENTURY 21 ATRIA REALTY INC.

3106 - 47 MUTUAL STREET, Toronto (Church-Yonge Corridor)
Condo - Apartment$459,203
$3,051/yr taxListing Courtesy of ROYAL LEPAGE SIGNATURE REALTY

2215 - 82 DALHOUSIE STREET, Toronto (Church-Yonge Corridor)
Condo - Apartment$449,000
$3,039/yr taxListing Courtesy of CENTURY 21 ATRIA REALTY INC.

1715 - 40 HOMEWOOD AVENUE, Toronto (Cabbagetown-South St. James Town)
Single Family$455,000
$2,277/yr taxListing Courtesy of RE/MAX HALLMARK REALTY LTD.

413 - 200 SACKVILLE STREET, Toronto (Regent Park)
Condo - Apartment$469,000
$2,316/yr taxListing Courtesy of THE AGENCY

501 - 39 SHERBOURNE STREET, Toronto (Moss Park)
Condo - Apartment$468,000
$2,700/yr taxListing Courtesy of UNION CAPITAL REALTY

501 - 38 ELM STREET, Toronto (Bay Street Corridor)
Condo - Apartment$445,000
$2,669/yr taxListing Courtesy of CENTURY 21 ATRIA REALTY INC.

914 - 50 POWER STREET, Toronto (Moss Park)
Condo - Apartment$449,000
$2,436/yr taxListing Courtesy of RIGHT AT HOME REALTY

2115 - 158 FRONT STREET E, Toronto (Moss Park)
Condo - Apartment$439,000
$2,255/yr taxListing Courtesy of RE/MAX CONDOS PLUS CORPORATION

608 - 158 FRONT STREET, Toronto (Moss Park)
Condo - Apartment$469,000
$2,345/yr taxListing Courtesy of REMAX YOUR COMMUNITY REALTY

531 - 60 PRINCESS STREET, Toronto (Waterfront Communities)
Condo - Apartment$439,900
$2,338/yr taxListing Courtesy of RE/MAX ROUGE RIVER REALTY LTD.

1113 - 170 SUMACH STREET, Toronto (Regent Park)
Condo - Apartment$459,000
$2,187/yr taxListing Courtesy of ATV REALTY INC

2801 - 50 WELLESLEY E STREET, Toronto (Church-Yonge Corridor)
Condo - Apartment$449,000
$2,617/yr taxListing Courtesy of BAY STREET INTEGRITY REALTY INC.
Similar Homes ?Similar Homes — Search CriteriaSearch Radius5 kmPrice Range±5%Match Home TypeYesMatch BedroomsYes

523 - 560 KING STREET W, Toronto (Waterfront Communities)
Condo - Apartment$448,800
$2,662/yr taxListing Courtesy of ROYAL LEPAGE TERREQUITY REALTY

2215 - 82 DALHOUSIE STREET, Toronto (Church-Yonge Corridor)
Condo - Apartment$449,000
$3,039/yr taxListing Courtesy of CENTURY 21 ATRIA REALTY INC.

1110 - 270 DUFFERIN STREET, Toronto (South Parkdale)
Condo - Apartment$449,000
$2,466/yr taxListing Courtesy of DREAM HOME REALTY INC.

1309 - 130 RIVER STREET, Toronto (Regent Park)
Condo - Apartment$449,000
$1,961/yr taxListing Courtesy of RE/MAX PREMIER INC.

2801 - 50 WELLESLEY E STREET, Toronto (Church-Yonge Corridor)
Condo - Apartment$449,000
$2,617/yr taxListing Courtesy of BAY STREET INTEGRITY REALTY INC.

914 - 50 POWER STREET, Toronto (Moss Park)
Condo - Apartment$449,000
$2,436/yr taxListing Courtesy of RIGHT AT HOME REALTY

741 - 10 LAIDLAW STREET, Toronto (South Parkdale)
Condo - Row / Townhouse$449,000
$2,436/yr taxListing Courtesy of INTERCITY REALTY INC.

810 - 375 KING STREET W, Toronto (Waterfront Communities)
Condo - Apartment$449,000
$2,564/yr taxListing Courtesy of RE/MAX NOBLECORP REAL ESTATE

805 - 15 BRUYERES MEWS, Toronto (Niagara)
Condo - Apartment$449,900
$1,930/yr taxListing Courtesy of CENTURY 21 ATRIA REALTY INC.

205 - 725 KING STREET W, Toronto (Niagara)
Condo - Apartment$449,900
$2,436/yr taxListing Courtesy of RE/MAX WEST REALTY INC.

312 - 38 JOE SHUSTER WAY, Toronto (South Parkdale)
Condo - Apartment$449,990
$2,247/yr taxListing Courtesy of POPE REAL ESTATE LIMITED

612 - 88 COLGATE AVENUE, Toronto (South Riverdale)
Condo - Apartment$450,000
$2,354/yr taxListing Courtesy of PROPERTY.CA INC.

201 - 630 QUEEN STREET E, Toronto (South Riverdale)
Condo - Apartment$450,000
$2,262/yr taxListing Courtesy of ROYAL LEPAGE TERREQUITY REALTY

1506 - 426 UNIVERSITY AVENUE, Toronto (University)
Condo - Apartment$451,900
$2,639/yr taxListing Courtesy of WORLD CLASS REALTY POINT

501 - 38 ELM STREET, Toronto (Bay Street Corridor)
Condo - Apartment$445,000
$2,669/yr taxListing Courtesy of CENTURY 21 ATRIA REALTY INC.
Similar Properties ?Active Comparables — Search CriteriaSearch Radius2 kmPrice Range±5%Match Home TypeYesMatch BedroomsYes

810 - 375 KING STREET W, Toronto (Waterfront Communities)
Condo - Apartment$449,000
$2,564/yr taxListing Courtesy of RE/MAX NOBLECORP REAL ESTATE

914 - 50 POWER STREET, Toronto (Moss Park)
Condo - Apartment$449,000
$2,436/yr taxListing Courtesy of RIGHT AT HOME REALTY

2801 - 50 WELLESLEY E STREET, Toronto (Church-Yonge Corridor)
Condo - Apartment$449,000
$2,617/yr taxListing Courtesy of BAY STREET INTEGRITY REALTY INC.

2215 - 82 DALHOUSIE STREET, Toronto (Church-Yonge Corridor)
Condo - Apartment$449,000
$3,039/yr taxListing Courtesy of CENTURY 21 ATRIA REALTY INC.

1309 - 130 RIVER STREET, Toronto (Regent Park)
Condo - Apartment$449,000
$1,961/yr taxListing Courtesy of RE/MAX PREMIER INC.

201 - 630 QUEEN STREET E, Toronto (South Riverdale)
Condo - Apartment$450,000
$2,262/yr taxListing Courtesy of ROYAL LEPAGE TERREQUITY REALTY

1506 - 426 UNIVERSITY AVENUE, Toronto (University)
Condo - Apartment$451,900
$2,639/yr taxListing Courtesy of WORLD CLASS REALTY POINT

501 - 38 ELM STREET, Toronto (Bay Street Corridor)
Condo - Apartment$445,000
$2,669/yr taxListing Courtesy of CENTURY 21 ATRIA REALTY INC.

1715 - 40 HOMEWOOD AVENUE, Toronto (Cabbagetown-South St. James Town)
Single Family$455,000
$2,277/yr taxListing Courtesy of RE/MAX HALLMARK REALTY LTD.

702 - 115 BLUE JAYS WAY, Toronto (Waterfront Communities)
Condo - Apartment$440,000
$2,262/yr taxListing Courtesy of HOMELIFE LANDMARK REALTY INC.

531 - 60 PRINCESS STREET, Toronto (Waterfront Communities)
Condo - Apartment$439,900
$2,338/yr taxListing Courtesy of RE/MAX ROUGE RIVER REALTY LTD.

1807 - 14 YORK STREET, Toronto (Waterfront Communities)
Condo - Apartment$458,000
$3,258/yr taxListing Courtesy of HOMELIFE LANDMARK REALTY INC.

3508 - 87 PETER STREET, Toronto (Waterfront Communities)
Condo - Apartment$439,000
$2,338/yr taxListing Courtesy of REMAX YC REALTY

406 - 555 YONGE STREET, Toronto (Church-Yonge Corridor)
Condo - Apartment$439,000
$2,111/yr taxListing Courtesy of SUTTON GROUP-ASSOCIATES REALTY INC.

2506 - 77 MUTUAL STREET, Toronto (Church-Yonge Corridor)
Condo - Apartment$439,000
$2,194/yr taxListing Courtesy of REMAX YOUR COMMUNITY REALTY

306 - 188 CUMBERLAND STREET, Toronto (Annex)
Condo - Apartment$5,295/mo
Listing Courtesy of ROYAL LEPAGE TERREQUITY REALTY

4704 - 180 UNIVERSITY AVENUE, Toronto (Bay Street Corridor)
Condo - Apartment$4,600/mo
Listing Courtesy of HOMELIFE LANDMARK REALTY INC.

3708 - 80 JOHN STREET, Toronto (Waterfront Communities)
Condo - Apartment$3,600/mo
Listing Courtesy of SUTTON GROUP-ADMIRAL REALTY INC.

216 - 365 DUNDAS STREET E, Toronto (Moss Park)
Condo - Apartment$3,300/mo
Listing Courtesy of ROYAL LEPAGE ESTATE REALTY

2504 - 11 YORKVILLE AVENUE, Toronto (Annex)
Condo - Apartment$3,200/mo
Listing Courtesy of REMAX YOUR COMMUNITY REALTY

512 - 55 HARBOUR SQUARE, Toronto (Waterfront Communities)
Condo - Apartment$3,150/mo
Listing Courtesy of ROYAL LEPAGE SIGNATURE REALTY

810 - 57 SPADINA AVENUE, Toronto (Waterfront Communities)
Condo - Apartment$3,014/mo
Listing Courtesy of DIGI

2305 - 81 WELLESLEY STREET E, Toronto (Church-Yonge Corridor)
Condo - Apartment$2,999/mo
Listing Courtesy of COMFREE

1106 - 21 BALMUTO STREET, Toronto (Bay Street Corridor)
Condo - Apartment$2,990/mo
Listing Courtesy of REMAX YOUR COMMUNITY REALTY

1430 - 33 HARBOUR SQUARE, Toronto (Waterfront Communities)
Condo - Apartment$2,950/mo
Listing Courtesy of PMT REALTY INC.

701 - 115 RICHMOND STREET E, Toronto (Church-Yonge Corridor)
Condo - Apartment$2,950/mo
Listing Courtesy of FOREST HILL REAL ESTATE INC.

408 - 15 BEVERLEY STREET, Toronto (Kensington-Chinatown)
Condo - Apartment$2,900/mo
Listing Courtesy of COLDWELL BANKER THE REAL ESTATE CENTRE

2903 - 327 KING STREET W, Toronto (Waterfront Communities)
Condo - Apartment$2,850/mo
Listing Courtesy of REAL ESTATE HOMEWARD

3201 - 110 CHARLES STREET E, Toronto (Church-Yonge Corridor)
Condo - Apartment$2,800/mo
Listing Courtesy of RIGHT AT HOME REALTY INVESTMENTS GROUP

1104 - 25 DALHOUSIE STREET, Toronto (Church-Yonge Corridor)
Condo - Apartment$2,775/mo
Listing Courtesy of RARE REAL ESTATE
Sold Comparables
Access to sold property data requires a registered and verified account with TRREB DDF integration.
Coming SoonRented Comparables
Access to rented property data requires a registered and verified account with TRREB DDF integration.
Coming SoonBook a Viewing
2105 - 219 DUNDAS STREET E, Toronto (Moss Park), Ontario, M5A1Z6
