2101 - 3883 QUARTZ ROAD, Mississauga (City Centre), Ontario, L5B0M4
MLS: W12810426 | Apartment (Condo)
$2,600.00 / monthly


























Property Description
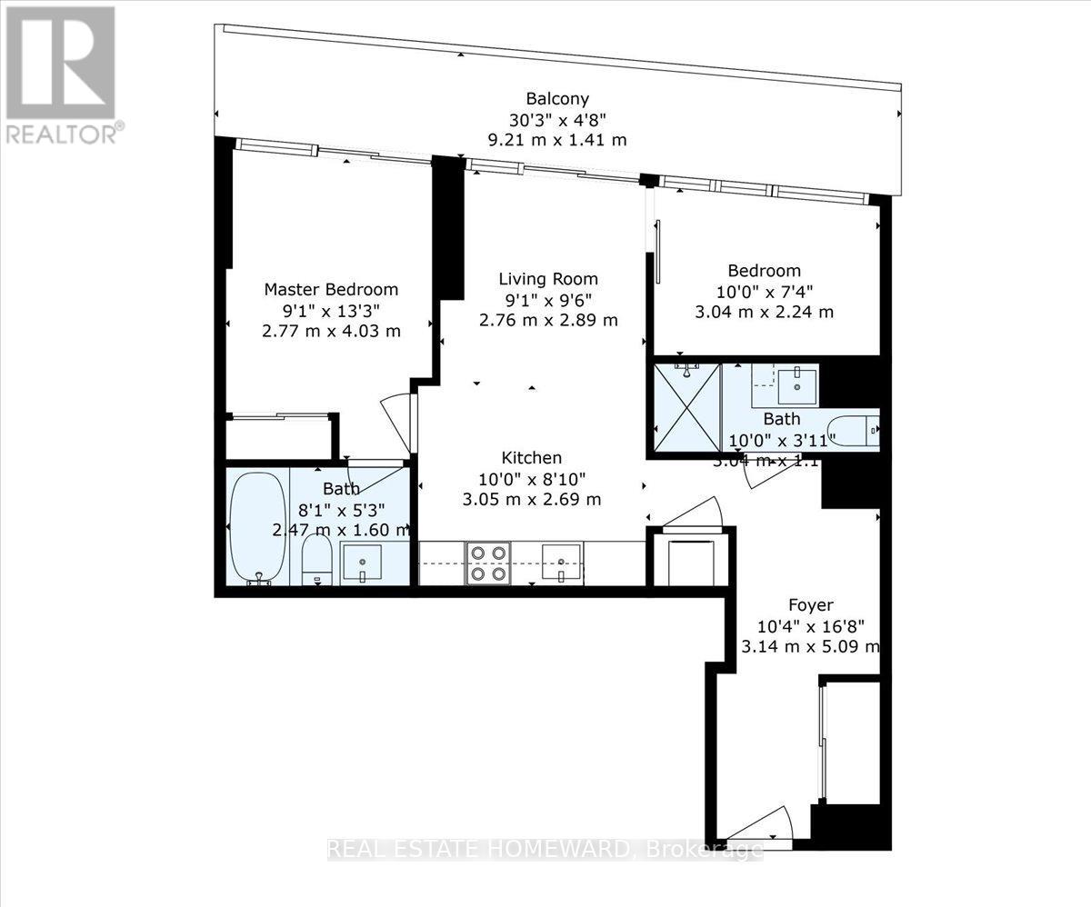
Live at the Iconic & Award Wining M City 2 Condo Located In The Heart Of Mississauga. A Must See Spacious 2 Bedroom + 2 Washroom + Den Condo With Beautiful Open Concept Living / Dining / Kitchen and Laminate Floors Throughout. Spectacular Kitchen With Quartz Counter Tops & Stainless Steel Appliances - Including Built In Dishwasher. Stacked Washer & Dryer In Unit. Large 140 SqFt Balcony with 2 Entrances. Parking and Locker Included. AAA Location Is Steps To: GO / MiWay Public Transit, School, Restaurants, Square One Mall, Civic Centre, Theatre, YMCA, Library, Sheridan College, & Living Art Center. Quick Access to Hwy 403 / 401 / QEW. Parking and Locker Included. (id:64974)
Quick Facts
- Property Type: Apartment (Condo)
- Bedrooms: 3 (2 above, 1 below)
- Bathrooms: 2
- Ownership: Condo/Strata
- Attached: Yes
- Parking: 1 space (Garage, Underground)
Listing Provided by: REAL ESTATE HOMEWARD
Board: Toronto Regional Real Estate Board
Data provided via CREA DDF®.
Detailed Features
Interior & Systems
- Heating: Forced air, Natural gas
- Cooling: Central air conditioning
- Basement: None
- Appliances: Washer, Refrigerator, Dishwasher, Stove, Range, Dryer, Microwave, Blinds
- Flooring: Tile, Laminate
Exterior & Construction
- Exterior: Concrete
Lot & Land
- Features: Balcony, Carpet Free
Community & Neighbourhood
- Community: Pets Allowed With Restrictions
- Building: Storage - Locker
- Neighbourhood: City Centre
Room Details (9 rooms)
Listing Information
Listing History
Buy/Sell/Terminated/Expired listing history for 2101 - 3883 QUARTZ ROAD, Mississauga (City Centre), Ontario, L5B0M4
Location & Neighborhood
🚗 Travel times
Neighborhood Walkability
Mortgage & Cost Calculators
Nearby Homes (Within 2km)
Similar Homes
Similar Properties
Sold Comparables
Access to sold property data requires a registered and verified account with TRREB DDF integration.
Coming SoonRented Comparables
Access to rented property data requires a registered and verified account with TRREB DDF integration.
Coming Soon


































