21 VALLEYWEST ROAD, Brampton (Vales of Castlemore), Ontario, L6P2J9
MLS: W12977132 | Vacant Land
$2,600,000






Property Description
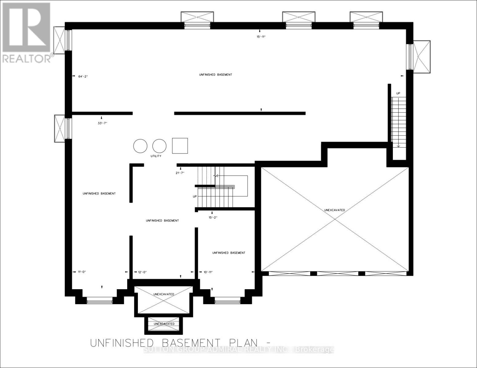
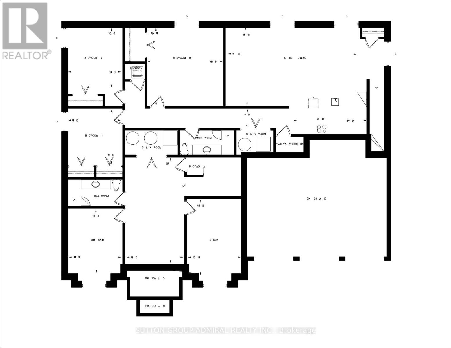
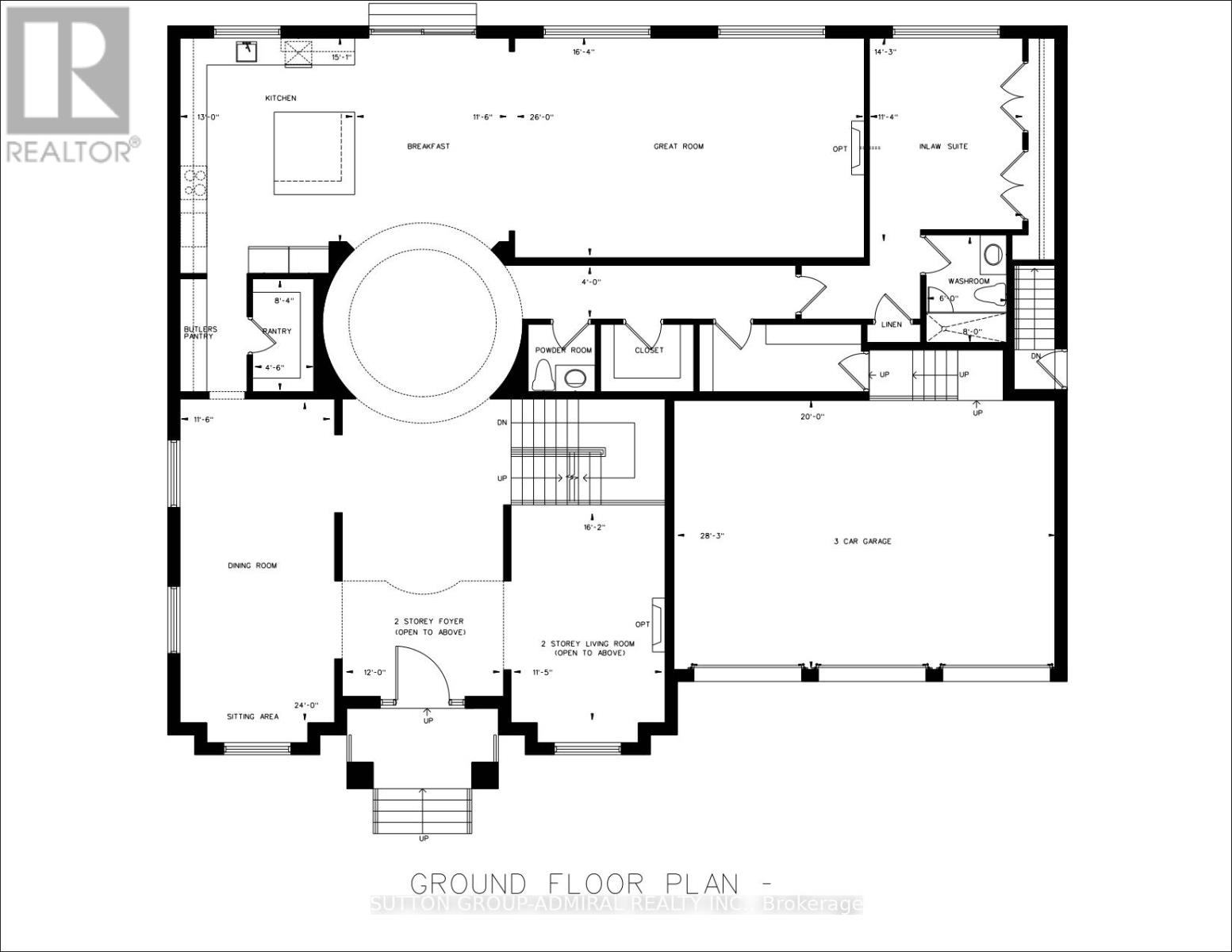
Welcome to 21 Valleywest Rd. This premium lot in a quiet neighbourhood awaits your forever dream home . Take the opportunity to customize the 5000sq/ft design provided by the builder, or work with him the create your totally custom luxury home. The list of luxurious finishes is included in this listing, plus get $50,000 of upgrades free with your purchase. The quality of the construction and finishes can best be appreciated by visiting this builder's model home across the street. (id:64974)
Quick Facts
- Property Type: Vacant Land
- Bedrooms: None
- Bathrooms: 0
- Frontage: 77 ft (23.5 m)
Costs
- Annual Taxes: $2,254.15
Listing Provided by: SUTTON GROUP-ADMIRAL REALTY INC.
Board: Toronto Regional Real Estate Board
Data provided via CREA DDF®.
Detailed Features
Interior & Systems
- Utilities: Sewer
Lot & Land
- Frontage: 77 ft (23.5 m)
Community & Neighbourhood
- Neighbourhood: Vales of Castlemore
Listing Information
Listing History
MLS listing activity for 21 VALLEYWEST ROAD, Brampton (Vales of Castlemore), Ontario, L6P2J9 — dates reflect when changes were recorded in the DDF
Location & Neighborhood
🚗 Travel times
Neighborhood Walkability
Mortgage & Cost Calculators
Similar Homes ?Similar Homes — Search CriteriaSearch Radius5 kmPrice Range±5%Match Home TypeYesMatch BedroomsYes

3505 MORGAN AVENUE, London South (South W)
Vacant Land$2,600,000
$17,500/yr taxListing Courtesy of ROYAL LEPAGE CERTIFIED REALTY

328 KING STREET E, Mississauga (Cooksville)
Vacant Land$2,699,900
Listing Courtesy of ROYAL LEPAGE CERTIFIED REALTY

906 MAIN Street W, Hamilton
Vacant Land$2,699,900
$31,966/yr taxListing Courtesy of Royal LePage State Realty Inc.

906 MAIN STREET W, Hamilton (Westdale)
Vacant Land$2,699,900
$31,966/yr taxListing Courtesy of ROYAL LEPAGE STATE REALTY

944 & 994 8 Highway, Stoney Creek
Vacant Land$2,500,000
$5,975/yr taxListing Courtesy of RE/MAX Escarpment Realty Inc.

4650 HWY 11/17, Oliver Paipoonge
Vacant Land$2,500,000
$33,287/yr taxListing Courtesy of RE/MAX ADVANTAGE REALTY LTD.

1118 PUCE ROAD, Lakeshore
Vacant Land$2,500,000
Listing Courtesy of CHRIS GIRARD REALTY LTD.

401345 GREY ROAD 4, West Grey
Vacant Land$2,499,000
$9,244/yr taxListing Courtesy of Century 21 Millennium Inc.

173 ST. CATHARINES STREET, West Lincoln (Smithville)
Vacant Land$2,499,000
$5,115/yr taxListing Courtesy of COLDWELL BANKER POWER REALTY

3237 COLLINGWOOD STREET, Clearview
Vacant Land$2,495,000
$1,090/yr taxListing Courtesy of Engel & Volkers Toronto Central

323 HORTON STREET E, London East (East K)
Vacant Land$2,495,000
$26,520/yr taxListing Courtesy of EXP REALTY

4558 LAKESIDE Drive, Beamsville
Vacant Land$2,490,000
$1/yr taxListing Courtesy of Royal LePage State Realty Inc.
Similar Properties ?Active Comparables — Search CriteriaSearch Radius2 kmPrice Range±5%Match Home TypeYesMatch BedroomsYes
No active comparables found in this area.
No rental comparables found in this area.
Sold Comparables
Access to sold property data requires a registered and verified account with TRREB DDF integration.
Coming SoonRented Comparables
Access to rented property data requires a registered and verified account with TRREB DDF integration.
Coming SoonBook a Viewing
21 VALLEYWEST ROAD, Brampton (Vales of Castlemore), Ontario, L6P2J9
